Bradleys says ..
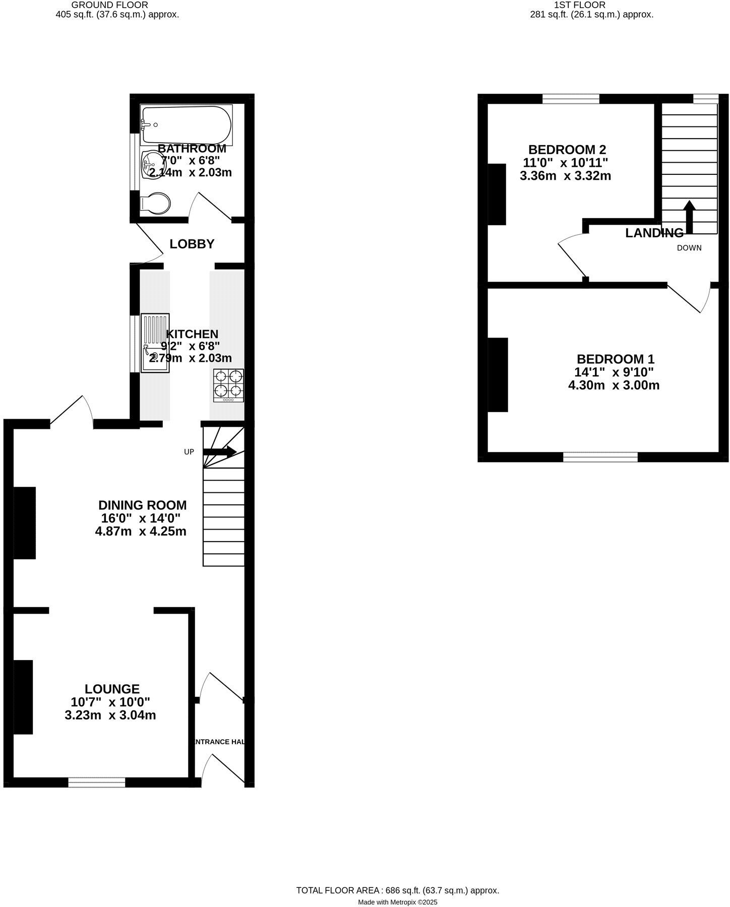
2 BEDROOM MID TERRACED HOUSE IN CENTRAL LOCATON Situated in a popular location, this mid-terraced home offers a spacious lounge-diner, kitchen, bathroom, and two bedrooms. To the rear is a private courtyard garden. The property requires some modernisation, making it an ideal opportunity...
Property Oracle says ..
The property is located on Pound Street in Exmouth, Devon. It is a terraced house with 2 bedrooms and 1 bathroom. The property appears to need renovation. The property has a small garden. The asking price seems reasonable, but it reflects the need for renovation.
Therefore, we give this property 5 / 10. *Disclaimer: This is our option and does constitute a recommendation or financial advice. Do your own research. *
- Price
- 7
- Condition
- 4
- Location
- 7
- Land
- 4
- Bedrooms
- 2
- Bathrooms
- 1
- Sqft (est)
- 696.50
The heatmap indicates the level of crime in the area. The color of the heatmap indicates the crime severity and recency.
Metrics Year-on-Year
- Average area value
- 353,125.00 £Increased by 13.69 %
- Est sale value
- 298,798.50 £Increased by 22.92 %
- Average area rental value
- 1,100.00 £/moDecreased by 4.18 %
- Est letting value
- 696.50 £/moUnchanged by 0.00 %
- Est rental Yield
- 3.74 %Decreased by 15.77 %
- Crime Rate
- 40.00 %Unchanged by 0.00 %
Agent Activity
Bradleys created the listing.
Nearby Schools
| Name | Type | Ofsted | Distance |
|---|---|---|---|
| The Beacon Church Of England (Va) Primary School | Voluntary Aided School | Good | 0.33 KM |
| Exeter Road Community Primary School | Foundation School | Good | 0.41 KM |
| Exeter Royal Academy For Deaf Education | Non-maintained Special School | Requires improvement | 0.59 KM |
| St Joseph'S Catholic Primary School, Exmouth | Academy Converter | Good | 0.70 KM |
| Exmouth Community College | Academy Converter | Requires improvement | 1.02 KM |
Images
Nearby Streets
| Name | Average Price | Average Sqft | Distance |
|---|---|---|---|
| South Street | £ 0 | 0 | 0.00 KM |
| Albion Terrace | £ 200,000 | 0 | 0.00 KM |
| Bicton Villas | £ 0 | 0 | 0.00 KM |
| Beacon Hill | £ 0 | 0 | 0.00 KM |
| Admirals Court | £ 119,488 | 0 | 0.00 KM |
Nearby Transport
| Name | NLC | TLC | Distance |
|---|---|---|---|
| Exmouth | 5756 | EXM | 0.61 KM |
| Lympstone Village | 5761 | LYM | 4.00 KM |
| Starcross | 3413 | SCS | 4.26 KM |
| Dawlish Warren | 3409 | DWW | 4.32 KM |
| Lympstone Commando | 5762 | LYC | 5.89 KM |
Nearby Listings
| Address | Price | Type | Score | Distance |
|---|---|---|---|---|
| Pound Street, Exmouth, Devon | £ 200,000 | BUY | 5 / 10 | 0.00 KM |
| Pound Street, Exmouth, Ex8 2SY | £ 250,000 | BUY | 5 / 10 | 0.01 KM |
| Pound Street, Exmouth, EX8 2SY | £ 196,000 | BUY | Unknown | 0.01 KM |
| Pound Street, Exmouth | £ 250,000 | BUY | 6 / 10 | 0.01 KM |
| Pound Street, Exmouth | £ 260,000 | BUY | 6 / 10 | 0.02 KM |
Nearby Properties
| Address | Price | Distance |
|---|---|---|
| 27 Pound Street | £ 216,950 | 0.01 KM |
| 21 Pound Street | £ 175,000 | 0.01 KM |
| 6 Pound Street | £ 170,000 | 0.01 KM |
| 10 Pound Street | £ 128,500 | 0.01 KM |
| 13 Pound Street | £ 105,000 | 0.01 KM |