Momo Homes says ..
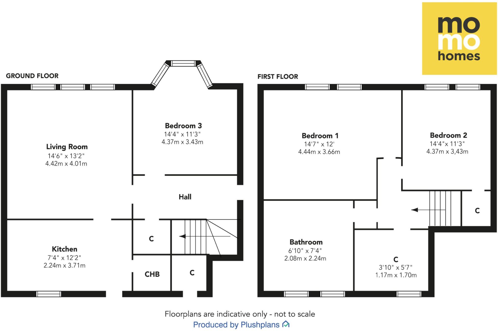
A truly outstanding three-bedroom semi-detached villa located within a quiet street in the town of Hamilton. This stunning property has been fully refurbished and benefits from luxury fittings and fixtures throughout.
Property Oracle says ..
This property is a 3 bedroom semi-detached house located in Hamilton, South Lanarkshire. The property has recently been renovated to a high standard, with modern fixtures and fittings throughout. It benefits from a good sized garden, and is conveniently located near several train stations, making it ideal for commuters. While the average price per square foot in the area is higher, the list price of £175,000 seems reasonable considering the recent renovations and the desirable location.
Therefore, we give this property 8 / 10. *Disclaimer: This is our option and does constitute a recommendation or financial advice. Do your own research. *
- Price
- 7
- Condition
- 10
- Location
- 7
- Land
- 8
- Bedrooms
- 3
- Bathrooms
- 1
- Sqft (est)
- 1,374.55
The heatmap indicates the level of crime in the area. The color of the heatmap indicates the crime severity and recency.
Metrics Year-on-Year
- Average area value
- 300,000.00 £Decreased by 54.85 %
- Est sale value
- 699,645.95 £Increased by 92.08 %
- Average area rental value
- 1,007.00 £/moDecreased by 25.41 %
- Est letting value
- 1,374.55 £/mo
- Est rental Yield
- 4.03 %Increased by 65.16 %
- Crime Rate
- 0.00 %
Agent Activity
Momo Homes created the listing.
Images
Nearby Streets
| Name | Average Price | Average Sqft | Distance |
|---|---|---|---|
| Thorntree Avenue | £ 0 | 0 | 0.00 KM |
| Queen Street | £ 0 | 0 | 0.00 KM |
| Waverley Crescent | £ 0 | 0 | 0.00 KM |
| Birdsfield Street | £ 128,500 | 0 | 0.00 KM |
| Sneddon Terrace | £ 0 | 0 | 0.00 KM |
Nearby Transport
| Name | NLC | TLC | Distance |
|---|---|---|---|
| Blantyre | 9716 | BLT | 2.13 KM |
| Hamilton West | 9727 | HNW | 2.44 KM |
| Hamilton Central | 9726 | HNC | 4.28 KM |
| Uddingston | 9776 | UDD | 4.84 KM |
| Bellshill | 9714 | BLH | 7.02 KM |
Nearby Listings
| Address | Price | Type | Score | Distance |
|---|---|---|---|---|
| Glenlee Street, Hamilton | £ 175,000 | BUY | 8 / 10 | 0.00 KM |
| Udston Road, Hamilton | £ 95,000 | BUY | 6 / 10 | 0.11 KM |
| Farm Road, Hamilton, South Lanarkshire, ML3 | £ 69,995 | BUY | Unknown | 0.21 KM |
| Anderson Street, Hamilton | £ 260,000 | BUY | 7 / 10 | 0.23 KM |
| Reid Street, Hamilton | £ 230,000 | BUY | 7 / 10 | 0.23 KM |