Upper Walden, Bridge of Weir
VA

Upper Walden, Bridge of Weir

By Vanilla Square

£ 385,000

Reviews

4 out of 5 stars

Vanilla Square says ..

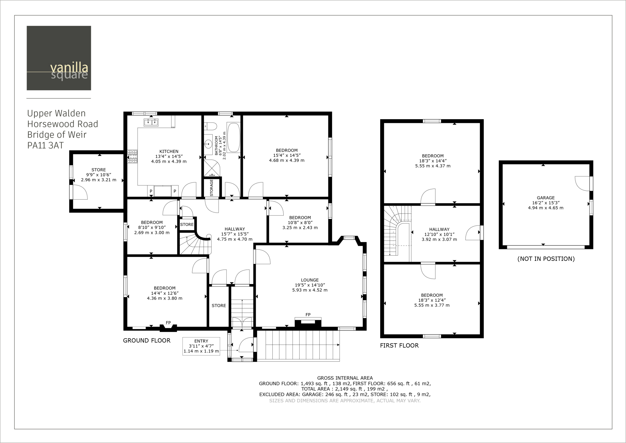
Upper Walden is a beautifully preserved 5 bedroom Victorian upper villa that artfully blends historical grandeur with modern elegance.

Property Oracle says ..

This property is a 5 bedroom villa located in Bridge of Weir, Scotland. It is a period property that has been well maintained and is in excellent condition. The property has a large garden and is located close to several train stations. The list price of £385,000 seems reasonable given the condition of the property, location, and available land.

Therefore, we give this property 8 / 10. *Disclaimer: This is our option and does constitute a recommendation or financial advice. Do your own research. *

Price
8
Condition
9
Location
8
Land
7
Bedrooms
5
Bathrooms
1
Sqft (est)
3,498.27

The heatmap indicates the level of crime in the area. The color of the heatmap indicates the crime severity and recency.

Metrics Year-on-Year

Average area value
365,379.00 £
Increased by 10.98 %
from 329,216.00 £
Est sale value
1,511,252.64 £
Increased by 55.40 %
from 972,519.06 £
Average area rental value
950.00 £/mo
Decreased by 42.42 %
from 1,650.00 £/mo
Est letting value
3,498.27 £/mo
Unchanged by 0.00 %
from 3,498.27 £/mo
Est rental Yield
3.12 %
Decreased by 48.09 %
from 6.01 %
Crime Rate
0.00 %
from 0.00 %

Agent Activity

  • Vanilla Square created the listing.

Images

5-print-Horsewood... 58-print-Upper Wa... 62-print-Upper Wa... 60-print-Upper Wa... 39-print-Upper Wa... 64-print-Upper Wa... 46-print-Upper Wa... 82-print-Upper Wa... 83-print-Upper Wa... 86-print-Upper Wa... 90-print-Upper Wa... 80-print-Upper Wa... 84-print-Upper Wa... 68-print-Upper Wa... 92-print-Upper Wa... 94-print-Upper Wa... 99-print-Upper Wa... 93-print-Upper Wa... 81-print-Upper Wa... 96-print-Upper Wa... 97-print-Upper Wa... 100-print-Upper W... 67-print-Upper Wa... 14-print-Horsewoo... 88-print-Upper Wa... 70-print-Upper Wa... 76-print-Upper Wa... 73-print-Upper Wa... 72-print-Upper Wa... 50-print-Upper Wa... 27-print-Horsewoo... 26-print-Horsewoo... 28-print-Horsewoo... 21-print-Horsewoo... 19-print-Horsewoo... 23-print-Horsewoo... 25-print-Horsewoo... 20-print-Horsewoo... 18-print-Horsewoo... 17-print-Horsewoo... 1-print-Horsewood... 32-print-Horsewoo... 22-print-Horsewoo... 29-print-Horsewoo... 30-print-Horsewoo... 31-print-Horsewoo... 33-print-Horsewoo...

Nearby Streets

NameAverage PriceAverage SqftDistance
Lomond Crescent £ 000.00 KM
Fetlar Road £ 000.00 KM
Lawmarnock Road £ 800,00000.00 KM
Collace Avenue £ 000.00 KM
Glendentan Road £ 220,00000.00 KM

Nearby Transport

NameNLCTLCDistance
Howwood (Renfrewshire)1734HOZ5.51 KM
Milliken Park9658MIN6.54 KM
Langbank9652LGB7.64 KM
Lochwinnoch9655LHW8.39 KM
Johnstone (Renfrewshire)9648JHN9.18 KM

Nearby Listings

AddressPriceTypeScoreDistance
Upper Walden, Bridge of Weir £ 385,000BUY8 / 100.00 KM
Balnagowan, Horsewood Road, Bridge of Weir £ 530,000BUY6 / 100.05 KM
St. George's Terrace, Horsewood Road, Bridge of Weir, PA11 £ 200,000BUY7 / 100.20 KM
Lomond Crescent, Bridge of Weir, Renfrewshire £ 525,000BUYUnknown0.20 KM
Prieston Road, Bridge of Weir, Renfrewshire, PA11 £ 299,999BUYUnknown0.24 KM