Becks Close, Markyate, St. Albans, Hertfordshire, AL3
By Frost's Estate Agents
£ 375,000
Reviews
3 out of 5 stars
Frost's Estate Agents says ..
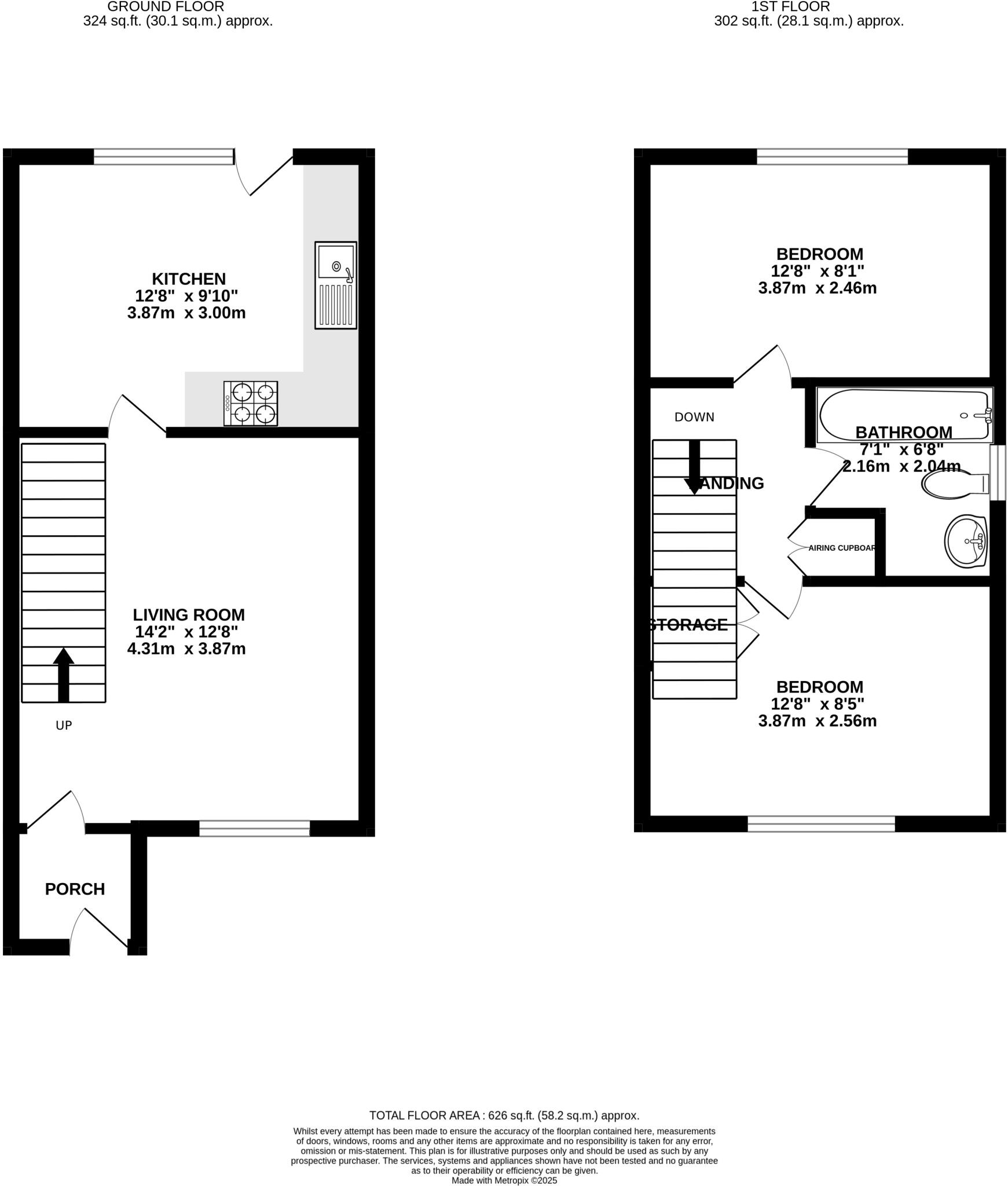
This well-presented, two bedroom, semi detached home is offered chain free and set within a quiet cul-de-sac location in Markyate. With bright interiors, a private rear garden and convenient access to village amenities, it makes an ideal first home or downsize.
Property Oracle says ..
This end-of-terrace property on Becks Close in Markyate offers a blend of comfortable living and convenient location. The house features two bedrooms and one bathroom, making it suitable for a small family or couple. The interior appears well-maintained, with a modern bathroom and functional kitchen. The garden, though not expansive, provides valuable outdoor space. Markyate itself offers a village atmosphere with access to local schools and amenities, balancing rural charm with accessibility. The asking price of £375,000 seems reasonable when compared to average property values and price per square foot in the area, making it a competitive option for potential buyers.
Therefore, we give this property 6 / 10. *Disclaimer: This is our option and does constitute a recommendation or financial advice. Do your own research. *
- Price
- 7
- Condition
- 7
- Location
- 7
- Land
- 6
- Bedrooms
- 2
- Bathrooms
- 1
- Sqft (est)
- 626.00
The heatmap indicates the level of crime in the area. The color of the heatmap indicates the crime severity and recency.
Metrics Year-on-Year
- Average area value
- 590,421.00 £Increased by 34.04 %
- Est sale value
- 320,512.00 £Increased by 31.96 %
- Average area rental value
- 1,427.00 £/moDecreased by 43.31 %
- Est letting value
- 626.00 £/moDecreased by 50.00 %
- Est rental Yield
- 2.90 %Decreased by 57.73 %
- Crime Rate
- 35.00 %Unchanged by 0.00 %
Agent Activity
Frost's Estate Agents created the listing.
Nearby Schools
| Name | Type | Ofsted | Distance |
|---|---|---|---|
| Markyate Village School And Nursery | Community School | Good | 0.16 KM |
| Beechwood Park School | Other Independent School | 2.78 KM | |
| Kensworth Church Of England Academy | Academy Sponsor Led | 3.37 KM | |
| Caddington Village School | Community School | Good | 3.59 KM |
| Gaddesden Row Jmi School | Community School | Good | 3.65 KM |
Images
Nearby Streets
| Name | Average Price | Average Sqft | Distance |
|---|---|---|---|
| Buckwood Road | £ 0 | 0 | 0.00 KM |
| Grange Close | £ 0 | 0 | 0.00 KM |
| Cavendish Road | £ 490,000 | 0 | 0.00 KM |
| Park View Drive | £ 0 | 0 | 0.00 KM |
| Telephone Exchange | £ 0 | 0 | 0.00 KM |
Nearby Transport
| Name | NLC | TLC | Distance |
|---|---|---|---|
| Leagrave | 1534 | LEA | 7.69 KM |
| Luton | 1536 | LUT | 7.74 KM |
| Luton Airport Parkway | 3645 | LTN | 8.79 KM |
Nearby Listings
| Address | Price | Type | Score | Distance |
|---|---|---|---|---|
| Becks Close, Markyate | £ 260,000 | BUY | 5 / 10 | 0.00 KM |
| Becks Close, Markyate, St. Albans, Hertfordshire, AL3 | £ 375,000 | BUY | 6 / 10 | 0.00 KM |
| Becks Close, Markyate, St. Albans | £ 330,000 | BUY | 6 / 10 | 0.01 KM |
| Becks Close, Markyate, St. Albans, Hertfordshire, AL3 | £ 325,000 | BUY | 7 / 10 | 0.02 KM |
| Cowper Road, Markyate, AL3 | £ 395,000 | BUY | 6 / 10 | 0.06 KM |
Nearby Properties
| Address | Price | Distance |
|---|---|---|
| 23 Becks Close | £ 330,000 | 0.01 KM |
| 9 Becks Close | £ 184,600 | 0.01 KM |
| 3 Becks Close | £ 321,000 | 0.01 KM |
| 7 Becks Close | £ 272,000 | 0.01 KM |
| 15 Becks Close | £ 60,000 | 0.01 KM |