BR
The Warren, Reading
By Bridges Estate Agents
£ 1,550,000
Reviews
3 out of 5 stars
Bridges Estate Agents says ..
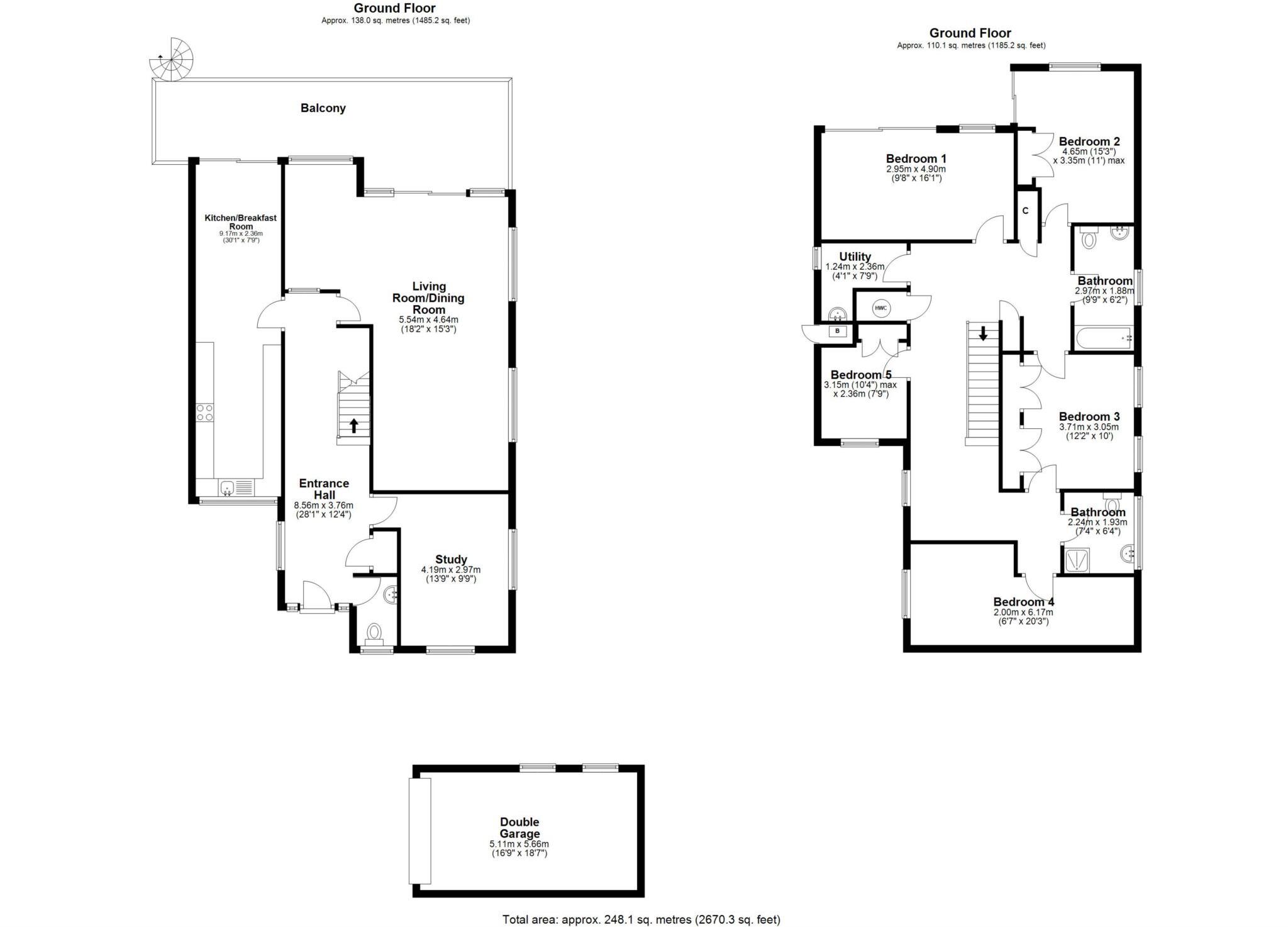
New to the market for the first time in over forty years is this five bedroomed detached house, built in the 1970s, with generous river frontage and mooring. Situated in a sought-after road in the heart of Caversham the property has a double garage and large porch area leading to the front door.
Property Oracle says ..
Therefore, we give this property 7 / 10. *Disclaimer: This is our option and does constitute a recommendation or financial advice. Do your own research. *
- Price
- 6
- Condition
- 5
- Location
- 8
- Land
- 9
- Bedrooms
- 5
- Bathrooms
- 3
- Sqft (est)
- 2,097.68
The heatmap indicates the level of crime in the area. The color of the heatmap indicates the crime severity and recency.
Metrics Year-on-Year
- Average area value
- 400,000.00 £Increased by 18.23 %
- Est sale value
- 860,048.80 £Increased by 28.93 %
- Average area rental value
- 1,395.00 £/moIncreased by 43.08 %
- Est letting value
- 2,097.68 £/mo
- Est rental Yield
- 4.18 %Increased by 20.81 %
- Crime Rate
- 0.00 %
from 338,319.00 £
from 667,062.24 £
from 975.00 £/mo
from 0.00 £/mo
from 3.46 %
from 0.00 %
Agent Activity
Bridges Estate Agents created the listing.
Nearby Schools
| Name | Type | Ofsted | Distance |
|---|---|---|---|
| The Heights Primary School | Free Schools | Outstanding | 0.72 KM |
| Wilson Primary School | Community School | Good | 1.76 KM |
| Battle Primary Academy | Academy Sponsor Led | Good | 1.87 KM |
| Oxford Road Community School | Community School | Good | 1.90 KM |
| Cranbury College | Academy Alternative Provision Converter | 1.98 KM |
Images
Nearby Streets
| Name | Average Price | Average Sqft | Distance |
|---|---|---|---|
| Woburn Close | £ 0 | 0 | 0.00 KM |
| Thornton Road | £ 0 | 0 | 0.00 KM |
| Richmond Road | £ 350,000 | 0 | 0.00 KM |
| The Grange | £ 0 | 0 | 0.00 KM |
| Meadow Road | £ 245,000 | 0 | 0.00 KM |
Nearby Transport
| Name | NLC | TLC | Distance |
|---|---|---|---|
| Reading West | 3160 | RDW | 1.77 KM |
| Reading | 3149 | RDG | 2.92 KM |
| Tilehurst | 3154 | TLH | 3.79 KM |
| Earley | 5694 | EAR | 9.18 KM |
| Theale | 3153 | THE | 9.70 KM |
Nearby Listings
| Address | Price | Type | Score | Distance |
|---|---|---|---|---|
| The Warren, Reading | £ 1,550,000 | BUY | 7 / 10 | 0.00 KM |
| The Warren, Caversham, Reading | £ 1,950,000 | BUY | 8 / 10 | 0.00 KM |
| The Warren, Caversham, Reading | £ 1,950,000 | BUY | Unknown | 0.00 KM |
| Upper Warren Avenue, Caversham, Reading, RG4 | £ 28,500 | BUY | 6 / 10 | 0.15 KM |
| Warrenside, The Warren, Reading | £ 625,000 | BUY | 7 / 10 | 0.18 KM |
Nearby Properties
| Address | Price | Distance |
|---|---|---|
| Chazey Bank | £ 1,459,000 | 0.01 KM |
| Cressida | £ 1,267,255 | 0.01 KM |
| Karinga House | £ 1,650,000 | 0.01 KM |
| Chazey End | £ 1,500,000 | 0.01 KM |
| 145 The Warren | £ 1,475,000 | 0.01 KM |