Bath Road, Buxton
Edward Mellor Ltd logo

Bath Road, Buxton

By Edward Mellor Ltd

£ 205,000

Reviews

2 out of 5 stars

Edward Mellor Ltd says ..

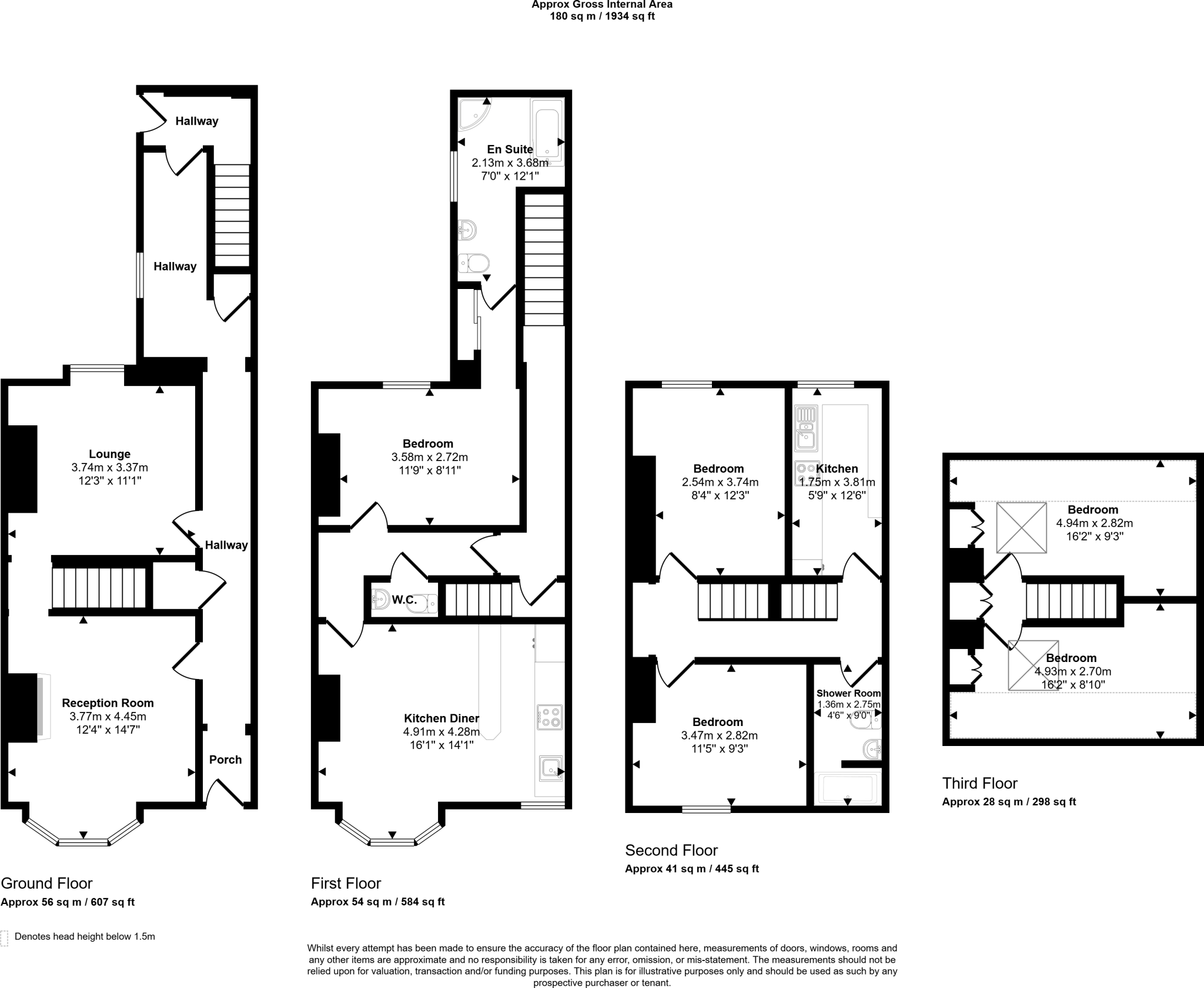
To BE SOLD BY ONLINE AUCTION ON 11th JUNE 2025 UNLESS SOLD PRIOR UNDER AUCTION TERMS. 43 Bath Road, Buxton, SK17 6HJ This impressive period property on sought-after Bath Road in Buxton has been thoughtfully converted into t...

Property Oracle says ..

The property is a block of apartments located on Bath Road, Buxton. It has 5 bedrooms and 2 bathrooms. The property is in need of renovation. The property is located close to schools and transport links. The property is priced below the average for the area, which may reflect the condition of the property.

Therefore, we give this property 5 / 10. *Disclaimer: This is our option and does constitute a recommendation or financial advice. Do your own research. *

Price
7
Condition
3
Location
7
Land
3
Bedrooms
5
Bathrooms
2

The heatmap indicates the level of crime in the area. The color of the heatmap indicates the crime severity and recency.

Metrics Year-on-Year

Average area value
256,000.00 £
Increased by 4.70 %
from 244,515.00 £
Average area rental value
995.00 £/mo
Decreased by 24.68 %
from 1,321.00 £/mo
Est rental Yield
4.66 %
Decreased by 28.09 %
from 6.48 %
Crime Rate
39.00 %
Unchanged by 0.00 %
from 39.00 %

Agent Activity

  • Edward Mellor Ltd created the listing.

Nearby Schools

NameTypeOfstedDistance
Buxton Junior SchoolCommunity SchoolGood0.50 KM
Buxton Community SchoolVoluntary Controlled SchoolGood0.66 KM
Buxton Infant SchoolCommunity SchoolOutstanding0.66 KM
Buxton And Leek CollegeMiscellaneous0.67 KM
St Thomas More Catholic Voluntary AcademyAcademy Converter0.98 KM

Images

WhatsApp Image 2025-05-30 at 10.59.03.jpeg 1000009204.jpg 1000009197.jpg 1000009199.jpg 1000009140.jpg 1000009143.jpg 1000009145.jpg 1000009123.jpg 1000009127.jpg 1000009125.jpg 1000009118.jpg 1000009119.jpg 1000009121.jpg 1000009215.jpg 1000009214.jpg 1000009213.jpg 1000009221.jpg 1000009223.jpg

Nearby Streets

NameAverage PriceAverage SqftDistance
Saint. James Terrace £ 425,00000.00 KM
Spencer Road £ 000.00 KM
Bath Road £ 000.00 KM
Back Hall Bank £ 244,75000.00 KM
St. Annes Square £ 000.00 KM

Nearby Transport

NameNLCTLCDistance
Buxton2946BUX0.83 KM
Dove Holes2766DVH5.89 KM
Chapel-En-Le-Frith2762CEF6.47 KM

Nearby Listings

AddressPriceTypeScoreDistance
Bath Road, Buxton £ 205,000BUY5 / 100.00 KM
Rock Terrace, Buxton £ 325,000BUY6 / 100.02 KM
Rock Terrace, Buxton £ 350,000BUYUnknown0.05 KM
Torr Street, Buxton £ 150,000BUYUnknown0.05 KM
St. James Street, Buxton £ 199,995BUYUnknown0.07 KM

Nearby Properties

AddressPriceDistance
37 Bath Road £ 200,0000.01 KM
42 Bath Road £ 225,0000.01 KM
46 Bath Road £ 325,0000.01 KM
39 Bath Road £ 245,0000.01 KM
28 Bath Road £ 245,0000.01 KM