AL
Shillaw Place, Burradon
By Alexander Hudson Estates
£ 120,000
Reviews
3 out of 5 stars
Alexander Hudson Estates says ..
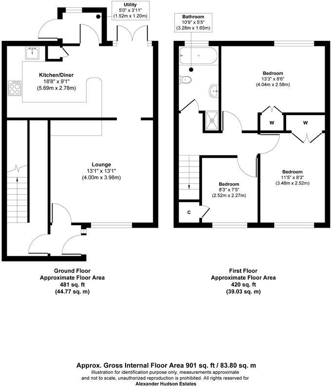
Alexander Hudson Estate are delighted to introduce to the market this three bedroom mid link home, offering light and airy accommodation throughout, whilst enjoying enclosed rear courtyard gardens and ample on street parking for both residents and visitors. Accommodation comprises; Entr...
Property Oracle says ..
Therefore, we give this property 7 / 10. *Disclaimer: This is our option and does constitute a recommendation or financial advice. Do your own research. *
- Price
- 8
- Condition
- 6
- Location
- 7
- Land
- 7
- Bedrooms
- 3
- Bathrooms
- 1
- Sqft (est)
- 690.76
The heatmap indicates the level of crime in the area. The color of the heatmap indicates the crime severity and recency.
Metrics Year-on-Year
- Average area value
- 911,990.00 £Increased by 52.54 %
- Est sale value
- 330,183.28 £Decreased by 4.59 %
- Average area rental value
- 1,200.00 £/moDecreased by 18.81 %
- Est letting value
- 0.00 £/moDecreased by 100.00 %
- Est rental Yield
- 1.58 %Decreased by 46.80 %
- Crime Rate
- 8.00 %Unchanged by 0.00 %
from 597,864.00 £
from 346,070.76 £
from 1,478.00 £/mo
from 690.76 £/mo
from 2.97 %
from 8.00 %
Agent Activity
Alexander Hudson Estates marked this listing as sold.
Alexander Hudson Estates created the listing.
Nearby Schools
| Name | Type | Ofsted | Distance |
|---|---|---|---|
| Burradon Community Primary School | Foundation School | Good | 0.29 KM |
| Bailey Green Primary School | Community School | Outstanding | 1.16 KM |
| Grasmere Academy | Academy Sponsor Led | Good | 1.22 KM |
| Fordley Primary School | Foundation School | Outstanding | 1.51 KM |
| George Stephenson High School | Foundation School | Good | 2.05 KM |
Images
Nearby Streets
| Name | Average Price | Average Sqft | Distance |
|---|---|---|---|
| Aitkin Street | £ 26,000 | 0 | 0.00 KM |
| Thompson Avenue | £ 0 | 0 | 0.00 KM |
| Eastwood Close | £ 145,000 | 0 | 0.00 KM |
| Oak Close | £ 300,000 | 0 | 0.00 KM |
| Hazel Court | £ 311,650 | 0 | 0.00 KM |
Nearby Transport
| Name | NLC | TLC | Distance |
|---|---|---|---|
| Cramlington | 7579 | CRM | 5.06 KM |
| Manors | 7603 | MAS | 8.59 KM |
| Newcastle | 7728 | NCL | 9.55 KM |
Nearby Listings
| Address | Price | Type | Score | Distance |
|---|---|---|---|---|
| Shillaw Place, Burradon | £ 120,000 | BUY | 7 / 10 | 0.00 KM |
| Shillaw Place, Burradon | £ 115,000 | BUY | 6 / 10 | 0.05 KM |
| Means Court, Cramlington | £ 150,000 | BUY | 6 / 10 | 0.09 KM |
| Means Court, Cramlington, NE23 | £ 125,000 | BUY | 6 / 10 | 0.09 KM |
| Burradon Road, Burradon, Cramlington, Tyne and Wear, NE23 7NG | £ 120,000 | BUY | 6 / 10 | 0.17 KM |
Nearby Properties
| Address | Price | Distance |
|---|---|---|
| 48 Shillaw Place | £ 89,750 | 0.03 KM |
| 28 Shillaw Place | £ 84,950 | 0.03 KM |
| 49 Shillaw Place | £ 65,000 | 0.03 KM |
| 42 Shillaw Place | £ 63,750 | 0.03 KM |
| 9 Means Drive | £ 66,000 | 0.07 KM |