Carman Friend says ..
This property occupies an attractive corner plot within the highly regarded and sought after location of Upton and is just a stone’s throw from so many local amenities.
Property Oracle says ..
Therefore, we give this property 6 / 10. *Disclaimer: This is our option and does constitute a recommendation or financial advice. Do your own research. *
- Price
- 6
- Condition
- 6
- Location
- 7
- Land
- 7
- Bedrooms
- 3
- Bathrooms
- 1
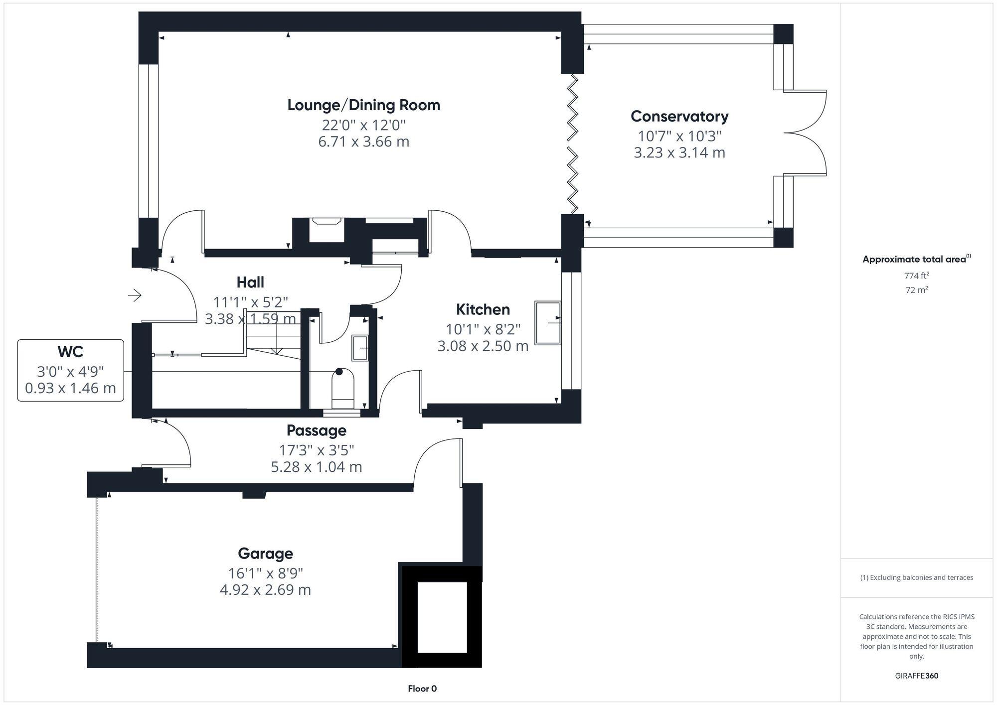
- Sqft (est)
- 775.00
The heatmap indicates the level of crime in the area. The color of the heatmap indicates the crime severity and recency.
Metrics Year-on-Year
- Average area value
- 364,766.00 £Decreased by 2.54 %
- Est sale value
- 246,450.00 £Increased by 5.30 %
- Average area rental value
- 1,277.00 £/moDecreased by 18.09 %
- Est letting value
- 775.00 £/moUnchanged by 0.00 %
- Est rental Yield
- 4.20 %Decreased by 16.00 %
- Crime Rate
- 8.00 %Unchanged by 0.00 %
from 374,277.00 £
from 234,050.00 £
from 1,559.00 £/mo
from 775.00 £/mo
from 5.00 %
from 8.00 %
Agent Activity
Carman Friend created the listing.
Nearby Schools
| Name | Type | Ofsted | Distance |
|---|---|---|---|
| Upton Westlea Primary School | Community School | Good | 0.43 KM |
| Mill View Primary School | Academy Converter | 0.44 KM | |
| Dorin Park School & Specialist Sen College | Community Special School | Good | 0.50 KM |
| Upton Heath Cofe Primary School | Academy Converter | 0.69 KM | |
| The Firs School | Other Independent School | 0.80 KM |
Images
Nearby Streets
| Name | Average Price | Average Sqft | Distance |
|---|---|---|---|
| Cornwall Road | £ 0 | 0 | 0.00 KM |
| Newhall Court | £ 0 | 0 | 0.00 KM |
| Lakeside Close | £ 0 | 0 | 0.00 KM |
| The Croft | £ 0 | 0 | 0.00 KM |
| Cotswold Close | £ 0 | 0 | 0.00 KM |
Nearby Transport
| Name | NLC | TLC | Distance |
|---|---|---|---|
| Bache | 2187 | BAC | 1.21 KM |
| Chester | 2412 | CTR | 2.02 KM |
| Ellesmere Port | 2121 | ELP | 7.67 KM |
| Capenhurst | 2186 | CPU | 8.34 KM |
| Stanlow And Thornton | 2159 | SNT | 8.38 KM |
Nearby Listings
| Address | Price | Type | Score | Distance |
|---|---|---|---|---|
| Gatesheath Drive, Upton, CH2 | £ 325,000 | BUY | 6 / 10 | 0.00 KM |
| Gatesheath Drive, Upton, Chester | £ 350,000 | BUY | Unknown | 0.09 KM |
| Oulton Avenue, Upton, CH2 | £ 400,000 | BUY | 7 / 10 | 0.14 KM |
| Rushton Drive, Upton, Chester | £ 425,000 | BUY | 7 / 10 | 0.15 KM |
| Alpraham Crescent, Upton, Chester | £ 329,950 | BUY | 5 / 10 | 0.16 KM |
Nearby Properties
| Address | Price | Distance |
|---|---|---|
| 3 Gatesheath Drive | £ 235,000 | 0.06 KM |
| 19 Gatesheath Drive | £ 282,000 | 0.06 KM |
| 15 Gatesheath Drive | £ 350,000 | 0.06 KM |
| 33 Gatesheath Drive | £ 392,000 | 0.06 KM |
| 29 Gatesheath Drive | £ 250,000 | 0.06 KM |