Back Lane, Epwell, Banbury
SH

Back Lane, Epwell, Banbury

By Sheldon Bosley Knight

£ 400,000

Reviews

3 out of 5 stars

Sheldon Bosley Knight says ..

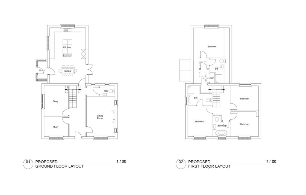
A Rare Opportunity in the Heart of Epwell An exceptional opportunity to acquire a prime building plot in the picturesque village of Epwell, nestled within the stunning North Oxfordshire countryside. With full planning permission granted for a beautifully designed 184m² (GIA) detached hom...

Property Oracle says ..

This property in Epwell, Oxfordshire, is a new build offering a blend of rural tranquility and accessibility to local amenities. The architectural drawings depict a well-designed home with a modern aesthetic. The artist’s impressions showcase a property that appears to be constructed to a high standard with appealing exterior features. The inclusion of a garden is a positive, and the availability of additional land for purchase presents a significant opportunity for expansion. However, the absence of key details such as the precise square footage of the house and plot hinders a complete assessment. The lack of information on bathroom and bedroom numbers also limits the analysis. The location is appealing for those seeking a quiet rural lifestyle, with nearby schools adding to its family-friendly appeal. The proximity to Banbury offers access to a wider range of services and transportation options. The list price of £400,000 requires further context regarding the property’s size and the cost of any additional land to determine its true value for money. Further information on the property’s internal specifications and finishes would enhance the overall assessment. Overall, the property presents a promising opportunity, but a more comprehensive data set is needed for a definitive evaluation.

Therefore, we give this property 6 / 10. *Disclaimer: This is our option and does constitute a recommendation or financial advice. Do your own research. *

Price
6
Condition
8
Location
7
Land
4
Bedrooms
0
Bathrooms
0

The heatmap indicates the level of crime in the area. The color of the heatmap indicates the crime severity and recency.

Metrics Year-on-Year

Average area value
990,500.00 £
Increased by 38.01 %
from 717,723.00 £
Average area rental value
1,536.00 £/mo
Decreased by 9.43 %
from 1,696.00 £/mo
Est rental Yield
1.86 %
Decreased by 34.51 %
from 2.84 %
Crime Rate
292.00 %
Unchanged by 0.00 %
from 292.00 %

Agent Activity

  • Sheldon Bosley Knight created the listing.

Nearby Schools

NameTypeOfstedDistance
Sibford Gower Endowed Primary SchoolAcademy ConverterGood2.80 KM
Shenington Church Of England Primary SchoolVoluntary Aided SchoolGood3.33 KM
Sibford SchoolOther Independent School3.58 KM
Tysoe Cofe Primary SchoolAcademy Converter4.31 KM
Swalcliffe Park School CioNon-maintained Special SchoolOutstanding4.81 KM

Images

Back Lane Epwell Back Lane Epwell Back Lane Epwell Back Lane Epwell Back Lane Epwell Back Lane Epwell Back Lane Epwell Back Lane Epwell Back Lane Epwell Back Lane Epwell Back Lane Epwell Back Lane Epwell Back Lane Epwell Back Lane Epwell Back Lane Epwell

Nearby Streets

NameAverage PriceAverage SqftDistance
The Close £ 1,500,00000.00 KM

Nearby Listings

AddressPriceTypeScoreDistance
Epwell, Banbury, Oxfordshire, OX15 £ 975,000BUYUnknown0.01 KM
Back Lane, Epwell, Banbury, Oxfordshire, OX15 £ 475,000BUYUnknown0.12 KM
Birds Lane, Epwell, Banbury, OX15 6LQ £ 650,000BUY7 / 100.16 KM
The Close, Epwell, Banbury, Oxfordshire, OX15 £ 625,000BUY7 / 100.22 KM
Church Lane, Epwell, Banbury, Oxfordshire, OX15 £ 850,000BUYUnknown0.22 KM

Nearby Properties

AddressPriceDistance
Capanne £ 156,0000.01 KM
Stoneleigh £ 175,0000.01 KM
Poppin £ 712,5010.01 KM
Dove Dell £ 315,0000.01 KM
Trym £ 920,0000.01 KM