Acorn says ..
NO ONWARD CHAIN! ***Guide Price: £375,000 - £400,000*** Are you looking for the best of both worlds? Then welcome to Fulwich Road, located within the Heart of the thriving Town of Dartford. This property features; Original Features Throughout, Three Sizable Bedro...
Property Oracle says ..
This three-bedroom terraced house in Dartford, Kent, presents a mixed bag of pros and cons. Its location offers easy access to Dartford train station, various primary schools rated “Good” by Ofsted, and local amenities. This makes it potentially attractive to families or commuters. The house itself has a dated aesthetic and could benefit from significant modernisation to bring it up-to-date, particularly in the interior décor, kitchen, and garden. The photos show that the house is lived-in, and some areas require some level of updating. It possesses a small garden which provides outdoor space but requires work. The price of £375,000 needs more context regarding the square footage of comparable properties to fully assess value for money in this market. Overall, it’s a habitable property, well positioned, but requiring some investment to reach its full potential. Buyers should factor in renovation costs into their decision-making process. The provided images showcase the interior and exterior aspects of the property, allowing potential buyers to make informed choices based on their individual needs and preferences. The images showcase a kitchen and bathrooms that require some updating. There is a small yard. The three bedrooms are fairly typical for homes of this size in the region. This property may appeal to those looking for a fixer-upper or investment opportunity.
Therefore, we give this property 5 / 10. *Disclaimer: This is our option and does constitute a recommendation or financial advice. Do your own research. *
- Price
- 7
- Condition
- 5
- Location
- 7
- Land
- 4
- Bedrooms
- 3
- Bathrooms
- 1
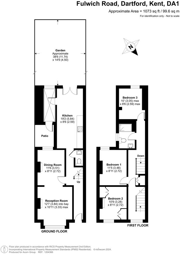
- Sqft (est)
- 1,073.00
The heatmap indicates the level of crime in the area. The color of the heatmap indicates the crime severity and recency.
Metrics Year-on-Year
- Average area value
- 245,074.00 £Decreased by 15.93 %
- Est sale value
- 252,155.00 £Decreased by 37.50 %
- Average area rental value
- 1,254.00 £/moDecreased by 5.43 %
- Est letting value
- 1,073.00 £/moUnchanged by 0.00 %
- Est rental Yield
- 6.14 %Increased by 12.45 %
- Crime Rate
- 5.00 %Unchanged by 0.00 %
Agent Activity
Acorn marked this listing as sold.
Acorn created the listing.
Nearby Schools
| Name | Type | Ofsted | Distance |
|---|---|---|---|
| St Anselm'S Catholic Primary School | Voluntary Aided School | Good | 0.56 KM |
| Dartford Primary Academy | Academy Converter | Good | 0.58 KM |
| Temple Hill Primary Academy | Academy Converter | Good | 0.71 KM |
| Temple Hill Children'S Centre | Children's Centre | 0.71 KM | |
| Brent Children'S Centre | Children's Centre | 0.96 KM |
Images
Nearby Streets
| Name | Average Price | Average Sqft | Distance |
|---|---|---|---|
| York Road | £ 375,000 | 0 | 0.00 KM |
| St Vincents Villas | £ 0 | 0 | 0.00 KM |
| Rochester Road | £ 0 | 0 | 0.00 KM |
| Brentfield Road | £ 426,250 | 0 | 0.00 KM |
| Masefield Road | £ 0 | 0 | 0.00 KM |
Nearby Transport
| Name | NLC | TLC | Distance |
|---|---|---|---|
| Dartford | 5101 | DFD | 1.19 KM |
| Stone Crossing | 5248 | SCG | 3.77 KM |
| Purfleet | 7453 | PFL | 3.92 KM |
| Slade Green | 5154 | SGR | 4.97 KM |
| Farningham Road | 5105 | FNR | 5.02 KM |
Nearby Listings
| Address | Price | Type | Score | Distance |
|---|---|---|---|---|
| Fulwich Road, Dartford, Kent | £ 375,000 | BUY | 5 / 10 | 0.00 KM |
| Fulwich Road, Dartford, Kent, DA1 | £ 375,000 | BUY | Unknown | 0.00 KM |
| Carrington Road, Dartford, Kent | £ 450,000 | BUY | 6 / 10 | 0.08 KM |
| Carrington Road, Dartford, Kent | £ 500,000 | BUY | 6 / 10 | 0.12 KM |
| Fulwich Road, Dartford, DA1 | £ 310,000 | BUY | 5 / 10 | 0.14 KM |
Nearby Properties
| Address | Price | Distance |
|---|---|---|
| 183 Fulwich Road | £ 85,000 | 0.01 KM |
| 175 Fulwich Road | £ 290,000 | 0.01 KM |
| 139 Fulwich Road | £ 407,000 | 0.01 KM |
| 167 Fulwich Road | £ 168,000 | 0.01 KM |
| 139a Fulwich Road | £ 166,500 | 0.01 KM |