Plot 1 Burlington Place, Church Hill Road, Barnet
By Lanes Exclusive Homes
£ 850,000
Reviews
3 out of 5 stars
Lanes Exclusive Homes says ..
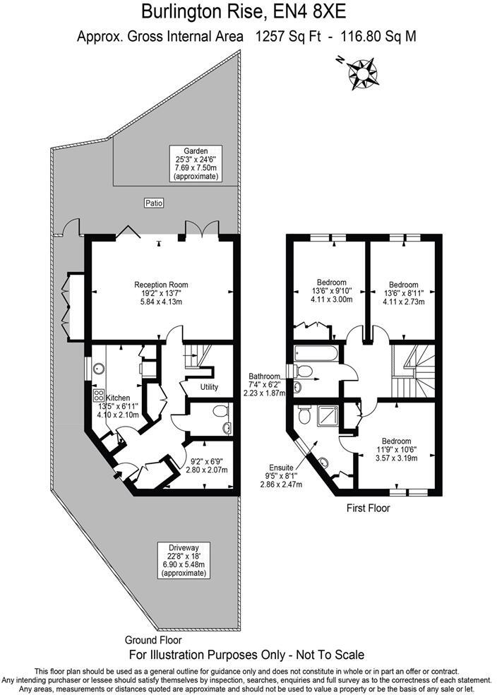
60% ALREADY SOLD! SHOW HOME AVAILABLE TO VIEW! Burlington Place is a collection of eight beautifully crafted 3 & 4 bedroom contemporary homes designed with family in mind. Plot 1 is a stylish 1,257 sqft three bedroom house featuring a stunning kitchen with integrated ap...
Property Oracle says ..
This is a modern end-of-terrace property located in East Barnet. The house features three bedrooms and two bathrooms, with a total square footage of 131.82 sqft. The interior is well-presented with a contemporary design, and the property benefits from a garden. The property is located close to local schools and amenities, with good transport links nearby. The asking price is higher than average for the area, but this may be justified by the property’s excellent condition and modern features. Overall, this property would be well-suited to families or professionals looking for a modern home in a convenient location.
Therefore, we give this property 7 / 10. *Disclaimer: This is our option and does constitute a recommendation or financial advice. Do your own research. *
- Price
- 6
- Condition
- 9
- Location
- 7
- Land
- 7
- Bedrooms
- 3
- Bathrooms
- 2
- Sqft (est)
- 131.82
The heatmap indicates the level of crime in the area. The color of the heatmap indicates the crime severity and recency.
Metrics Year-on-Year
- Average area value
- 542,389.00 £Decreased by 6.67 %
- Est sale value
- 74,741.94 £Decreased by 1.05 %
- Average area rental value
- 1,615.00 £/moDecreased by 23.10 %
- Est letting value
- 131.82 £/moDecreased by 50.00 %
- Est rental Yield
- 3.57 %Decreased by 17.74 %
- Crime Rate
- 12.00 %Unchanged by 0.00 %
Agent Activity
Lanes Exclusive Homes created the listing.
Nearby Schools
| Name | Type | Ofsted | Distance |
|---|---|---|---|
| St Mary'S Cofe Primary School, East Barnet | Voluntary Aided School | Outstanding | 0.20 KM |
| Brookhill Nursery School | Local Authority Nursery School | Outstanding | 0.37 KM |
| Danegrove Primary School | Community School | Good | 0.45 KM |
| Church Hill School | Community School | Good | 0.88 KM |
| East Barnet School | Academy Converter | Good | 0.89 KM |
Images
Nearby Streets
| Name | Average Price | Average Sqft | Distance |
|---|---|---|---|
| Pilgrim's Rise | £ 0 | 0 | 0.00 KM |
| Kingston Road | £ 0 | 0 | 0.00 KM |
| Pym Close | £ 0 | 0 | 0.00 KM |
| Astera Mews | £ 0 | 0 | 0.00 KM |
| St. James Close | £ 0 | 0 | 0.00 KM |
Nearby Transport
| Name | NLC | TLC | Distance |
|---|---|---|---|
| Oakleigh Park | 6020 | OKL | 0.66 KM |
| New Barnet | 6018 | NBA | 1.34 KM |
| Hadley Wood | 6075 | HDW | 3.27 KM |
| New Southgate | 6019 | NSG | 3.82 KM |
| Bowes Park | 6027 | BOP | 6.09 KM |
Nearby Listings
| Address | Price | Type | Score | Distance |
|---|---|---|---|---|
| Plot 1 Burlington Place, Church Hill Road, Barnet | £ 850,000 | BUY | 7 / 10 | 0.00 KM |
| Plot 5, Burlington Place, Church Hill Road, Barnet | £ 700,000 | BUY | 7 / 10 | 0.02 KM |
| Plot 3, Burlington Place, Church Hill Road, Barnet | £ 775,000 | BUY | 7 / 10 | 0.02 KM |
| Plot 2, Burlington Place, Church Hill Road, Barnet | £ 775,000 | BUY | 7 / 10 | 0.07 KM |
| Church Hill Road, Barnet, Hertfordshire, EN4 | £ 290,000 | BUY | 6 / 10 | 0.07 KM |
Nearby Properties
| Address | Price | Distance |
|---|---|---|
| 23a Church Hill Road | £ 150,000 | 0.07 KM |
| 35a Church Hill Road | £ 93,000 | 0.08 KM |
| 253a East Barnet Road | £ 173,000 | 0.08 KM |
| 27a Church Hill Road | £ 59,500 | 0.08 KM |
| 33a Church Hill Road | £ 64,000 | 0.08 KM |