Stan Mellor Close, Salford
By The Goat Residential Ltd
£ 345,000
Reviews
3 out of 5 stars
The Goat Residential Ltd says ..
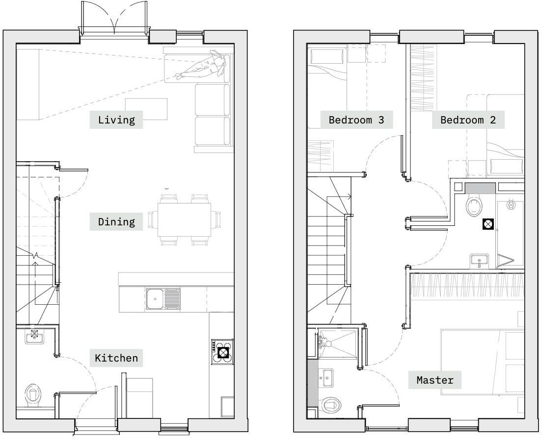
Welcome to a superb end-terrace house that combines modern living with practical family space. From the moment you arrive, the well-kept exterior and end-of-row position hint at the generous and light-filled accommodation within. Spanning two floors, the property boasts three excellent b...
Property Oracle says ..
This is a modern end-of-terrace property in Salford, offering three bedrooms and two bathrooms. The interior appears to be well-maintained, with a modern kitchen and bathrooms. The property benefits from a garden with a paved patio area and a shed. While the location isn’t the most central, it offers good access to local amenities, schools, and transportation links. The asking price of £345,000 seems reasonable given the property’s condition, size, and location within the local market.
Therefore, we give this property 7 / 10. *Disclaimer: This is our option and does constitute a recommendation or financial advice. Do your own research. *
- Price
- 7
- Condition
- 8
- Location
- 6
- Land
- 7
- Bedrooms
- 3
- Bathrooms
- 2
- Sqft (est)
- 920.00
The heatmap indicates the level of crime in the area. The color of the heatmap indicates the crime severity and recency.
Metrics Year-on-Year
- Average area value
- 228,629.00 £Increased by 9.74 %
- Est sale value
- 277,840.00 £Increased by 14.83 %
- Average area rental value
- 1,039.00 £/moDecreased by 14.34 %
- Est letting value
- 920.00 £/moUnchanged by 0.00 %
- Est rental Yield
- 5.45 %Decreased by 22.03 %
- Crime Rate
- 0.00 %
Agent Activity
The Goat Residential Ltd created the listing.
Nearby Schools
| Name | Type | Ofsted | Distance |
|---|---|---|---|
| The Albion Academy | Academy Converter | 0.41 KM | |
| Charlestown And Lower Kersal And Summerville Children'S Centre | Children's Centre Linked Site | 0.54 KM | |
| Ahavas Torah Boys Academy | Other Independent School | Requires improvement | 0.55 KM |
| Lower Kersal Community Primary School | Community School | Good | 0.61 KM |
| St Sebastian'S Rc Primary School | Voluntary Aided School | Good | 0.69 KM |
Images
Nearby Streets
| Name | Average Price | Average Sqft | Distance |
|---|---|---|---|
| Turnstile Walk | £ 0 | 0 | 0.00 KM |
| Jockey Street | £ 0 | 0 | 0.00 KM |
| Edale Street | £ 0 | 0 | 0.00 KM |
| Hope Road | £ 262,500 | 0 | 0.00 KM |
| Daffolid Street | £ 0 | 0 | 0.00 KM |
Nearby Transport
| Name | NLC | TLC | Distance |
|---|---|---|---|
| Salford Crescent | 2794 | SLD | 1.31 KM |
| Salford Central | 2798 | SFD | 2.87 KM |
| Deansgate | 2963 | DGT | 3.83 KM |
| Manchester Victoria | 2970 | MCV | 3.86 KM |
| Manchester United Football Ground | 2996 | MUF | 4.35 KM |
Nearby Listings
| Address | Price | Type | Score | Distance |
|---|---|---|---|---|
| Stan Mellor Close, Salford | £ 345,000 | BUY | 7 / 10 | 0.00 KM |
| Stan Mellor Close, Salford, M6 | £ 335,000 | BUY | 7 / 10 | 0.00 KM |
| Stan Mellor Close, Salford, Greater Manchester, M6 | £ 325,000 | BUY | 7 / 10 | 0.01 KM |
| Shergar Way, Salford, M6 | £ 430,000 | BUY | Unknown | 0.02 KM |
| Shergar Way, Salford, M6 | £ 280,000 | BUY | 6 / 10 | 0.02 KM |
Nearby Properties
| Address | Price | Distance |
|---|---|---|
| 152 Cromwell Road | £ 140,000 | 0.12 KM |
| 194 Cromwell Road | £ 76,500 | 0.12 KM |
| 156 Cromwell Road | £ 110,000 | 0.12 KM |
| 172 Cromwell Road | £ 75,000 | 0.12 KM |
| 178 Cromwell Road | £ 105,000 | 0.12 KM |