MYLOR BRIDGE
By Kimberley's Independent Estate Agents
£ 550,000
Reviews
3 out of 5 stars
Kimberley's Independent Estate Agents says ..
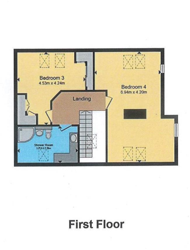
This is a well presented, detached four bedroom house set in a popular residential development within the highly desirable creekside village of Mylor Bridge, yet conveniently positioned for access by road to the harbour side towns of Falmouth, Penryn and the Cathedral City of Truro.
Property Oracle says ..
Therefore, we give this property 7 / 10. *Disclaimer: This is our option and does constitute a recommendation or financial advice. Do your own research. *
- Price
- 7
- Condition
- 6
- Location
- 8
- Land
- 8
- Bedrooms
- 4
- Bathrooms
- 2
The heatmap indicates the level of crime in the area. The color of the heatmap indicates the crime severity and recency.
Metrics Year-on-Year
- Average area value
- 856,250.00 £Increased by 50.90 %
- Average area rental value
- 1,750.00 £/moIncreased by 16.43 %
- Est rental Yield
- 2.45 %Decreased by 22.96 %
- Crime Rate
- 27.00 %Unchanged by 0.00 %
from 567,446.00 £
from 1,503.00 £/mo
from 3.18 %
from 27.00 %
Agent Activity
Kimberley's Independent Estate Agents created the listing.
Nearby Schools
| Name | Type | Ofsted | Distance |
|---|---|---|---|
| Mylor Community Primary School | Community School | Good | 0.37 KM |
| Flushing School | Voluntary Controlled School | Good | 2.94 KM |
| Penryn Children'S Centre | Children's Centre Linked Site | 2.99 KM | |
| Devoran School | Community School | Good | 3.08 KM |
| Falmouth Primary Academy | Academy Sponsor Led | Good | 3.46 KM |
Images
Nearby Streets
| Name | Average Price | Average Sqft | Distance |
|---|---|---|---|
| The Close | £ 0 | 0 | 0.00 KM |
| Bell's Hill | £ 450,000 | 0 | 0.00 KM |
| Restronguet Hill | £ 1,667,500 | 0 | 0.00 KM |
Nearby Transport
| Name | NLC | TLC | Distance |
|---|---|---|---|
| Penryn (Cornwall) | 3525 | PYN | 3.96 KM |
| Penmere | 3499 | PNM | 4.21 KM |
| Perranwell | 3528 | PRW | 4.71 KM |
| Falmouth Town | 3591 | FMT | 4.73 KM |
| Falmouth Docks | 3508 | FAL | 4.95 KM |
Nearby Listings
| Address | Price | Type | Score | Distance |
|---|---|---|---|---|
| MYLOR BRIDGE | £ 550,000 | BUY | 7 / 10 | 0.00 KM |
| Mylor Bridge | £ 495,000 | BUY | 7 / 10 | 0.02 KM |
| Cogos Park, Mylor Bridge, TR11 | £ 600,000 | BUY | Unknown | 0.03 KM |
| Cogos Park, Mylor Bridge, Falmouth, Cornwall, TR11 | £ 550,000 | BUY | 7 / 10 | 0.08 KM |
| Comfort Road, Mylor Bridge, Falmouth, Cornwall, TR11 | £ 425,000 | BUY | 5 / 10 | 0.12 KM |
Nearby Properties
| Address | Price | Distance |
|---|---|---|
| 2 Cogos Park | £ 285,000 | 0.08 KM |
| 28 Cogos Park | £ 267,000 | 0.08 KM |
| 6 Cogos Park | £ 293,000 | 0.08 KM |
| 30 Cogos Park | £ 210,000 | 0.08 KM |
| 55 Cogos Park | £ 242,000 | 0.08 KM |