Coppy Road, Steeton, Keighley, BD20
By Day & Co Estate Agents Limited
£ 200,000
Reviews
3 out of 5 stars
Day & Co Estate Agents Limited says ..
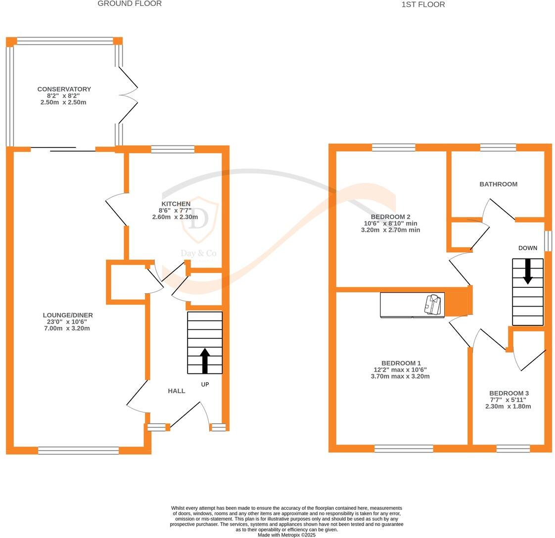
** SEMI-DETACHED HOUSE, THREE BEDROOMS, SPACIOUS THROIUGH LOUNGE/DINER, CONSERVATORY, PLEASANT GARDENS, DRIVE & ATTACHED GARAGE, PRICED TO REFLECT MODERNISATION, NO ONWARD CHAIN, EPC RATING E **
Property Oracle says ..
This is a three-bedroom semi-detached property located on Coppy Road in Steeton, West Yorkshire. The property is in need of renovation, but it offers a good-sized garden, a driveway, and a garage. The property is located in a desirable village with good schools and transportation links. The property is listed at £200,000, which is below the average price for the area, reflecting the need for modernisation. The property includes a conservatory. The property is conveniently located near Steeton and Silsden train station.
Therefore, we give this property 6 / 10. *Disclaimer: This is our option and does constitute a recommendation or financial advice. Do your own research. *
- Price
- 8
- Condition
- 4
- Location
- 7
- Land
- 7
- Bedrooms
- 3
- Bathrooms
- 1
- Sqft (est)
- 637.76
The heatmap indicates the level of crime in the area. The color of the heatmap indicates the crime severity and recency.
Metrics Year-on-Year
- Average area value
- 422,431.00 £Increased by 29.36 %
- Est sale value
- 435,590.08 £Increased by 163.71 %
- Average area rental value
- 902.00 £/moDecreased by 19.75 %
- Est letting value
- 637.76 £/mo
- Est rental Yield
- 2.56 %Decreased by 38.01 %
- Crime Rate
- 28.00 %Unchanged by 0.00 %
Agent Activity
Day & Co Estate Agents Limited created the listing.
Nearby Schools
| Name | Type | Ofsted | Distance |
|---|---|---|---|
| Steeton Primary School | Community School | Good | 1.00 KM |
| Eastburn Junior And Infant School | Community School | Good | 1.86 KM |
| Daisy Chain Children'S Centre | Children's Centre Linked Site | 2.56 KM | |
| Silsden Primary School | Community School | Good | 2.78 KM |
| Laycock Primary School | Academy Converter | 3.20 KM |
Images
Nearby Streets
| Name | Average Price | Average Sqft | Distance |
|---|---|---|---|
| Ashgrove | £ 169,950 | 0 | 0.00 KM |
| Summer Hill Lane | £ 0 | 0 | 0.00 KM |
| Heywood Drive | £ 259,950 | 0 | 0.00 KM |
| Lyon Road | £ 0 | 0 | 0.00 KM |
Nearby Transport
| Name | NLC | TLC | Distance |
|---|---|---|---|
| Steeton And Silsden | 8469 | SON | 1.45 KM |
| Cononley | 8470 | CEY | 6.65 KM |
| Keighley | 8468 | KEI | 6.75 KM |
Nearby Listings
| Address | Price | Type | Score | Distance |
|---|---|---|---|---|
| Coppy Road, Steeton, Keighley, BD20 | £ 200,000 | BUY | 6 / 10 | 0.00 KM |
| Coppy Road, Steeton | £ 225,000 | BUY | 7 / 10 | 0.01 KM |
| 10 Chapel Road, Steeton, BD20 6NU | £ 215,000 | BUY | Unknown | 0.17 KM |
| Coppy Farm Barn, Coppy Road, Steeton BD20 6PJ | £ 575,000 | BUY | 7 / 10 | 0.18 KM |
| Chapel Road, Steeton, BD20 | £ 250,000 | BUY | 7 / 10 | 0.18 KM |
Nearby Properties
| Address | Price | Distance |
|---|---|---|
| 13 Coppy Road | £ 195,000 | 0.04 KM |
| 14 Coppy Road | £ 186,500 | 0.04 KM |
| 3a Coppy Road | £ 165,000 | 0.04 KM |
| 4 Coppy Road | £ 122,000 | 0.04 KM |
| 3 Coppy Road | £ 168,000 | 0.04 KM |