Savills says ..
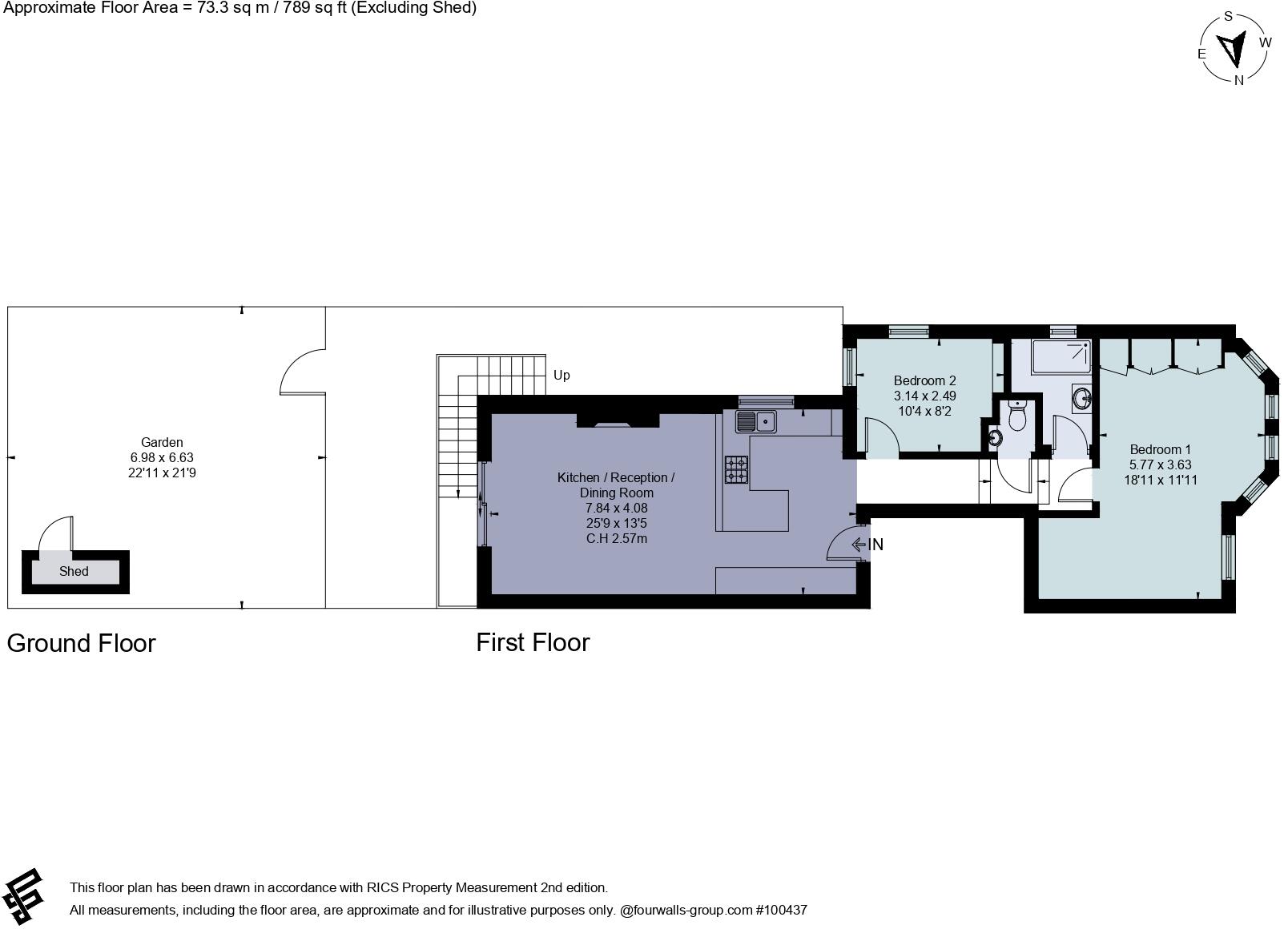
Delightful two bedroom flat with private south facing garden.
Property Oracle says ..
This is a well-presented two-bedroom apartment in a sought-after location in Putney. The property is in good condition and benefits from a garden. The price is in line with the local market. The property is well-located for families, with several good schools in the area. The property is also well-connected, with easy access to public transport.
Therefore, we give this property 7 / 10. *Disclaimer: This is our option and does constitute a recommendation or financial advice. Do your own research. *
- Price
- 7
- Condition
- 8
- Location
- 8
- Land
- 6
- Bedrooms
- 2
- Bathrooms
- 1
- Sqft (est)
- 789.00
The heatmap indicates the level of crime in the area. The color of the heatmap indicates the crime severity and recency.
Metrics Year-on-Year
- Average area value
- 939,063.00 £Decreased by 0.43 %
- Est sale value
- 641,457.00 £Increased by 0.12 %
- Average area rental value
- 3,207.00 £/moIncreased by 7.58 %
- Est letting value
- 1,578.00 £/moUnchanged by 0.00 %
- Est rental Yield
- 4.10 %Increased by 8.18 %
- Crime Rate
- 3.00 %Unchanged by 0.00 %
from 943,099.00 £
from 640,668.00 £
from 2,981.00 £/mo
from 1,578.00 £/mo
from 3.79 %
from 3.00 %
Agent Activity
Savills created the listing.
Nearby Schools
| Name | Type | Ofsted | Distance |
|---|---|---|---|
| Our Lady Of Victories Catholic Primary School | Voluntary Aided School | Outstanding | 0.28 KM |
| Hotham Primary School | Community School | Good | 0.29 KM |
| St Mary'S Cofe Primary School | Voluntary Aided School | Outstanding | 0.30 KM |
| All Saints' Cofe Primary School, Putney | Voluntary Aided School | Outstanding | 0.49 KM |
| Oasis Academy Putney | Academy Sponsor Led | Good | 0.70 KM |
Images
Nearby Streets
| Name | Average Price | Average Sqft | Distance |
|---|---|---|---|
| Jordan Court | £ 0 | 0 | 0.00 KM |
| Festive Walk | £ 0 | 0 | 0.00 KM |
| Ravenna Road | £ 0 | 0 | 0.00 KM |
| Floss Street | £ 0 | 0 | 0.00 KM |
| Kingsmere Close | £ 0 | 0 | 0.00 KM |
Nearby Transport
| Name | NLC | TLC | Distance |
|---|---|---|---|
| Putney | 5603 | PUT | 0.90 KM |
| Barnes | 5551 | BNS | 2.06 KM |
| Barnes Bridge | 5580 | BNI | 3.30 KM |
| Kensington (Olympia) | 3092 | KPA | 3.93 KM |
| West Brompton | 8875 | WBP | 3.95 KM |
Nearby Listings
| Address | Price | Type | Score | Distance |
|---|---|---|---|---|
| Hotham Road, Putney, London, SW15 | £ 795,000 | BUY | 7 / 10 | 0.00 KM |
| Hotham Road, West Putney, SW15 | £ 2,350,000 | BUY | Unknown | 0.01 KM |
| Rossdale Road, London, SW15 | £ 2,850,000 | BUY | 8 / 10 | 0.08 KM |
| Borneo Street, Putney, SW15 | £ 725,000 | BUY | Unknown | 0.09 KM |
| Borneo Street, London, SW15 | £ 1,850,000 | BUY | 6 / 10 | 0.10 KM |
Nearby Properties
| Address | Price | Distance |
|---|---|---|
| 29 Hotham Road | £ 2,015,000 | 0.01 KM |
| 15 Hotham Road | £ 2,186,360 | 0.01 KM |
| 43 Hotham Road | £ 1,850,000 | 0.01 KM |
| 11 Hotham Road | £ 1,320,000 | 0.01 KM |
| 13 Hotham Road | £ 1,050,000 | 0.01 KM |