Windsor Crescent, Wembley, HA9
EL

Windsor Crescent, Wembley, HA9

By Ellis & Co

£ 750,000

Reviews

3 out of 5 stars

Ellis & Co says ..

Boasting a 6 bedroom over three floors HMO Licence, this charming townhouse offers a spacious and well-maintained living space spanning over 1,300 square feet. The property can be used as a Airbnb or even a care home. The property has great potential for BTL investors and with a high rental yield...

Property Oracle says ..

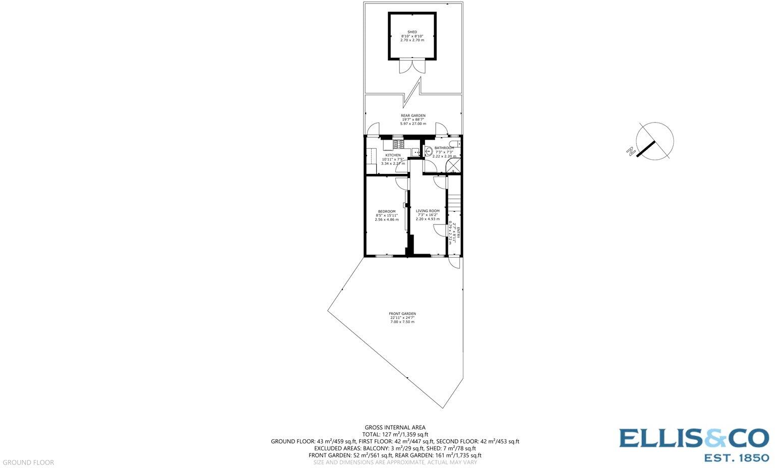
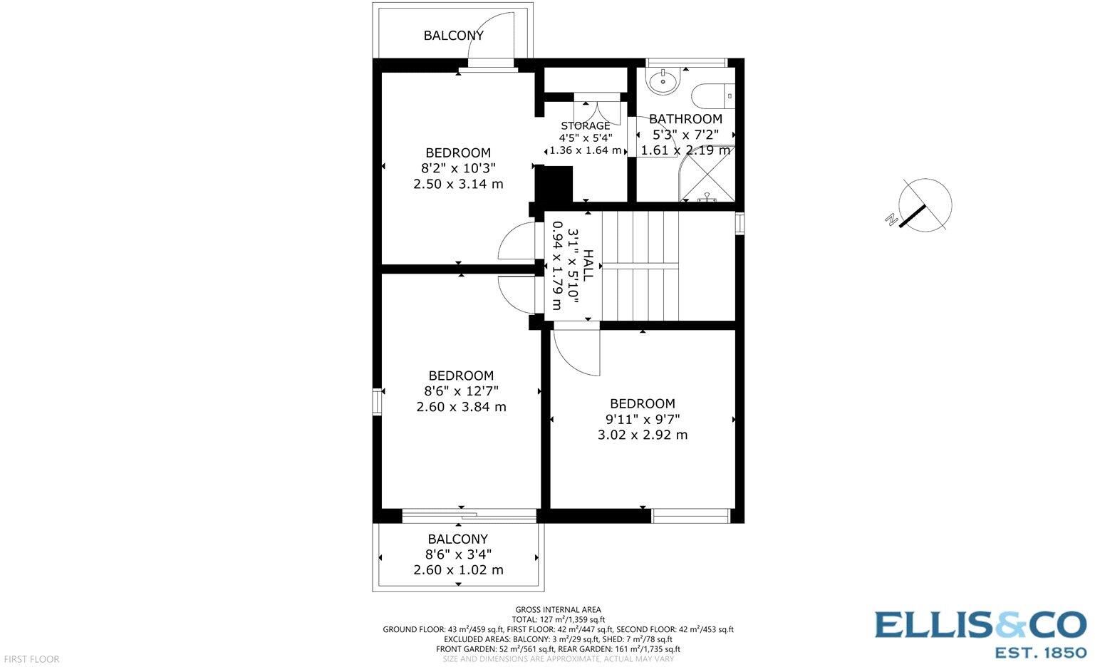
This six-bedroom, three-bathroom terraced house in Wembley, HA9 is listed at £750,000. The property boasts a sizable 3,733 sqft of living space and a 1,735 sqft plot, including a garden. The area has an average house price of £559,866 and an average price per sqft of £431. Considering the property’s size and features, the asking price is at the higher end of the market but not unreasonable given the location and size. The property appears to be in good condition based on the images provided, with modern amenities and a clean aesthetic. Its proximity to outstanding schools like Michaela Community School and Ark Academy, and transport links, adds to its appeal. The presence of a garden is a desirable feature, particularly in a densely populated area like Wembley. The property is a good family home and could be a good investment.

Therefore, we give this property 7 / 10. *Disclaimer: This is our option and does constitute a recommendation or financial advice. Do your own research. *

Price
7
Condition
8
Location
9
Land
7
Bedrooms
6
Bathrooms
3
Sqft (est)
3,733.00
Lot (est)
1,735.00

The heatmap indicates the level of crime in the area. The color of the heatmap indicates the crime severity and recency.

Metrics Year-on-Year

Average area value
626,246.00 £
Increased by 2.14 %
from 613,151.00 £
Est sale value
2,254,732.00 £
Increased by 5.78 %
from 2,131,543.00 £
Average area rental value
2,336.00 £/mo
Increased by 26.00 %
from 1,854.00 £/mo
Est letting value
7,466.00 £/mo
Increased by 100.00 %
from 3,733.00 £/mo
Est rental Yield
4.48 %
Increased by 23.42 %
from 3.63 %
Crime Rate
6.00 %
Unchanged by 0.00 %
from 6.00 %

Agent Activity

  • Ellis & Co created the listing.

Nearby Schools

NameTypeOfstedDistance
Michaela Community SchoolFree SchoolsOutstanding0.28 KM
Lycee International De LondresOther Independent School0.44 KM
Ark AcademyAcademy Sponsor LedOutstanding0.49 KM
Chalkhill Primary SchoolCommunity SchoolGood0.66 KM
Willows Children'S CentreChildren's Centre0.66 KM

Images

Picture No. 42 Picture No. 17 Picture No. 07 Picture No. 25 Picture No. 37 Picture No. 38 Picture No. 33 Picture No. 45 Picture No. 08 Picture No. 11 Picture No. 18 Picture No. 36 Picture No. 39 Picture No. 23 Picture No. 14 Picture No. 27 Picture No. 29 Picture No. 32 Picture No. 28

Nearby Streets

NameAverage PriceAverage SqftDistance
Albion Way £ 530,00000.00 KM
Bridge Road £ 000.00 KM
Marshalls Walk £ 000.00 KM
Olympic Square £ 425,00000.00 KM
Marley Street £ 000.00 KM

Nearby Transport

NameNLCTLCDistance
Wembley Stadium1509WCX1.40 KM
Stonebridge Park1454SBP2.12 KM
Wembley Central1423WMB2.51 KM
North Wembley1422NWB3.04 KM
South Kenton1453SOK3.62 KM

Nearby Listings

AddressPriceTypeScoreDistance
Windsor Crescent, Wembley, HA9 £ 700,000BUY5 / 100.03 KM
Chalkhill Road, Wembley Park, HA9 £ 375,000BUY6 / 100.07 KM
Wembley Park £ 350,000BUY6 / 100.09 KM
North End Road, Wembley Park, WEMBLEY, HA9 £ 122,500BUYUnknown0.16 KM
North End Road, Wembley Park, WEMBLEY, HA9 £ 600,000BUY7 / 100.16 KM

Nearby Properties

AddressPriceDistance
36 Windsor Crescent £ 655,0000.01 KM
44 Windsor Crescent £ 180,0000.01 KM
22 Windsor Crescent £ 600,0000.01 KM
46 Windsor Crescent £ 187,5000.01 KM
16 Windsor Crescent £ 250,0000.01 KM