Lewis King says ..
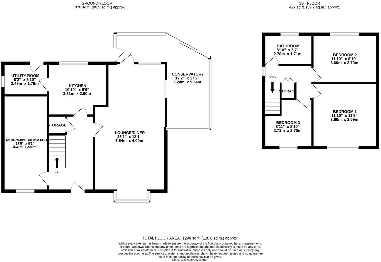
*NO ONWARD CHAIN* Welcome to your new happy place! Tucked away on the ever-popular Oak Tree Close in Crewe, this delightful 3/4 bedroom detached home is bursting with character, space, and a few surprises up its sleeve. Downstairs, the generous lounge/diner is perfect for everything ...
Property Oracle says ..
Therefore, we give this property 6 / 10. *Disclaimer: This is our option and does constitute a recommendation or financial advice. Do your own research. *
- Price
- 6
- Condition
- 6
- Location
- 7
- Land
- 7
- Bedrooms
- 4
- Bathrooms
- 1
- Sqft (est)
- 1,234.79
The heatmap indicates the level of crime in the area. The color of the heatmap indicates the crime severity and recency.
Metrics Year-on-Year
- Average area value
- 198,130.00 £Decreased by 16.97 %
- Est sale value
- 282,766.91 £Increased by 3.62 %
- Average area rental value
- 1,075.00 £/moIncreased by 14.97 %
- Est letting value
- 1,234.79 £/mo
- Est rental Yield
- 6.51 %Increased by 38.51 %
- Crime Rate
- 4.00 %Unchanged by 0.00 %
from 238,625.00 £
from 272,888.59 £
from 935.00 £/mo
from 0.00 £/mo
from 4.70 %
from 4.00 %
Agent Activity
Lewis King created the listing.
Nearby Schools
| Name | Type | Ofsted | Distance |
|---|---|---|---|
| Hungerford Primary Academy | Academy Converter | 0.42 KM | |
| Sir William Stanier Community School | Academy Sponsor Led | Requires improvement | 0.83 KM |
| Springfield School | Community Special School | Outstanding | 1.04 KM |
| Brierley Primary School | Community School | Good | 1.25 KM |
| Monks Coppenhall Children'S Centre | Children's Centre | 1.31 KM |
Images
Nearby Streets
| Name | Average Price | Average Sqft | Distance |
|---|---|---|---|
| Poplar Grove | £ 0 | 0 | 0.00 KM |
| Hillside Drive | £ 0 | 0 | 0.00 KM |
| Grange Close | £ 0 | 0 | 0.00 KM |
| Woodland Avenue | £ 0 | 0 | 0.00 KM |
| Chaucer Road | £ 0 | 0 | 0.00 KM |
Nearby Transport
| Name | NLC | TLC | Distance |
|---|---|---|---|
| Crewe | 1243 | CRE | 1.55 KM |
| Sandbach | 1261 | SDB | 6.48 KM |
Nearby Listings
| Address | Price | Type | Score | Distance |
|---|---|---|---|---|
| Oak Tree Close, Crewe | £ 295,000 | BUY | 6 / 10 | 0.00 KM |
| Oak Tree Drive, Crewe, Cheshire, CW1 | £ 180,000 | BUY | Unknown | 0.06 KM |
| Oak Tree Close, Crewe, Cheshire, CW1 | £ 190,000 | BUY | 6 / 10 | 0.07 KM |
| Coleridge Way, Crewe | £ 220,000 | BUY | 7 / 10 | 0.12 KM |
| Wordsworth Drive, Crewe | £ 175,000 | BUY | 7 / 10 | 0.14 KM |
Nearby Properties
| Address | Price | Distance |
|---|---|---|
| 8 Oaktree Drive | £ 97,500 | 0.05 KM |
| 12 Oaktree Drive | £ 123,500 | 0.05 KM |
| 26 Oaktree Drive | £ 159,950 | 0.05 KM |
| 3 Oaktree Drive | £ 115,000 | 0.05 KM |
| 18 Oaktree Drive | £ 133,000 | 0.05 KM |