Cherry Tree Lane, Ely, Soham
By Cheffins Residential
£ 175,000
Reviews
3 out of 5 stars
Cheffins Residential says ..
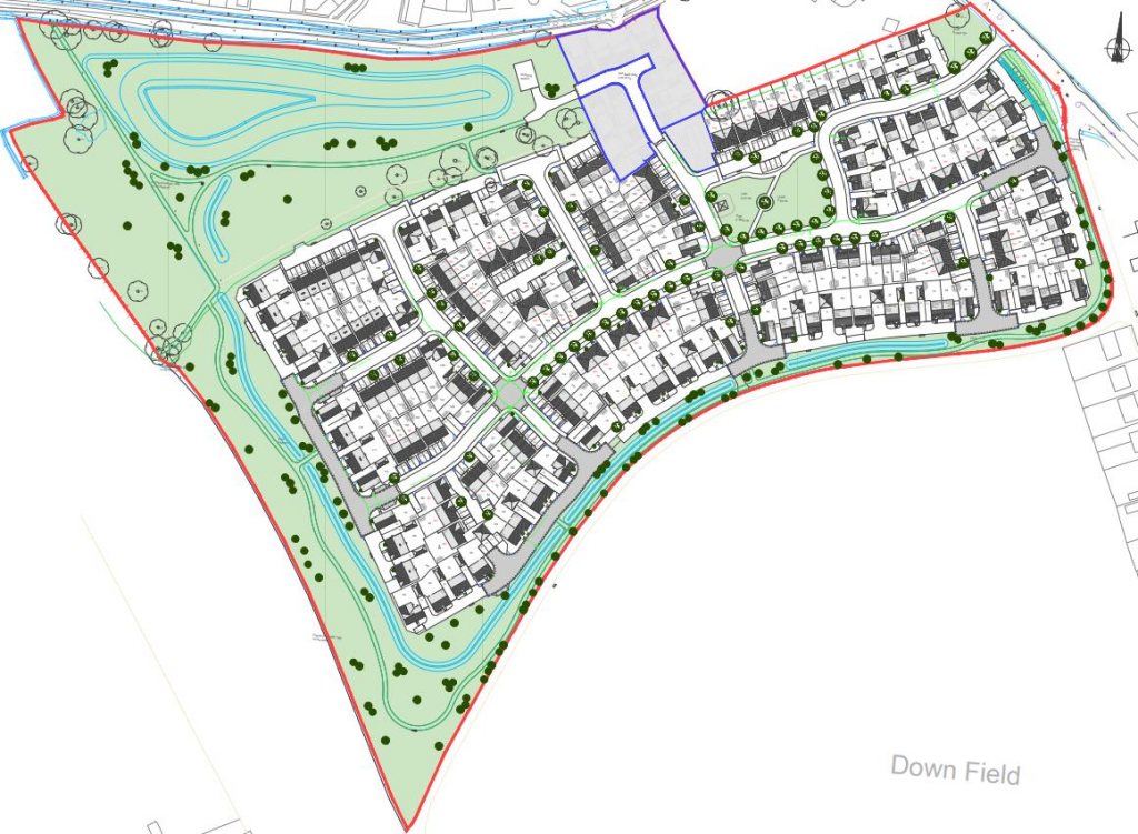
Fantastic opportunity to own one of just eleven Self-Build Plots ranging in size from 207 square metres to 511 square metres situated on the northern edge of the new development off Fordham Road, Soham. The Self-Build Plots are suitable for the construction of two storey detached houses rang...
Property Oracle says ..
The property is a new build house located in Soham South, Ely, Cambridgeshire. The property is located 1.26 KM from St Andrew’S Cofe Primary School which has a good Ofsted rating. The list price of £175,000 seems reasonable given the average price in the area.
Therefore, we give this property 6 / 10. *Disclaimer: This is our option and does constitute a recommendation or financial advice. Do your own research. *
- Price
- 8
- Condition
- 7
- Location
- 6
- Land
- 5
- Bedrooms
- 0
- Bathrooms
- 0
The heatmap indicates the level of crime in the area. The color of the heatmap indicates the crime severity and recency.
Metrics Year-on-Year
- Average area value
- 320,000.00 £Decreased by 9.25 %
- Average area rental value
- 1,225.00 £/moDecreased by 8.10 %
- Est rental Yield
- 4.59 %Increased by 1.10 %
- Crime Rate
- 4.00 %Unchanged by 0.00 %
Agent Activity
Cheffins Residential created the listing.
Nearby Schools
| Name | Type | Ofsted | Distance |
|---|---|---|---|
| St Andrew'S Cofe Primary School | Academy Converter | Good | 1.26 KM |
| Soham Village College | Academy Converter | Good | 1.34 KM |
| The Weatheralls Primary School | Academy Sponsor Led | Requires improvement | 1.84 KM |
| Soham Child And Family Zone | Children's Centre | 2.08 KM | |
| The Shade Primary School | Academy Sponsor Led | Good | 4.05 KM |
Images
Nearby Streets
| Name | Average Price | Average Sqft | Distance |
|---|---|---|---|
| The Crescent | £ 0 | 0 | 0.00 KM |
| Crucion Way | £ 0 | 0 | 0.00 KM |
| Perch Chase | £ 445,000 | 0 | 0.00 KM |
| Minnow Gardens | £ 0 | 0 | 0.00 KM |
| Windmill Close | £ 270,000 | 0 | 0.00 KM |
Nearby Listings
| Address | Price | Type | Score | Distance |
|---|---|---|---|---|
| Cherry Tree Lane, Ely, Soham | £ 175,000 | BUY | 6 / 10 | 0.00 KM |
| Cherry Tree Lane, Ely, Soham | £ 150,000 | BUY | 6 / 10 | 0.00 KM |
| Cherry Tree Lane, Ely, Soham | £ 185,000 | BUY | 7 / 10 | 0.01 KM |
| Cherry Tree Lane, Ely, Soham | £ 165,000 | BUY | 6 / 10 | 0.01 KM |
| Cherry Tree Lane, Ely, Soham | £ 150,000 | BUY | 6 / 10 | 0.01 KM |
Nearby Properties
| Address | Price | Distance |
|---|---|---|
| 52a Fordham Road | £ 490,000 | 0.36 KM |
| 64b Fordham Road | £ 485,000 | 0.36 KM |
| 60 Fordham Road | £ 377,500 | 0.36 KM |
| 23 Fordham Road | £ 285,000 | 0.36 KM |
| 58a Fordham Road | £ 330,000 | 0.36 KM |