BARNFIELD CLOSE GALMPTON BRIXHAM
By Eric Lloyd & Co
£ 420,000
Reviews
3 out of 5 stars
Eric Lloyd & Co says ..
Standing in a superb garden plot, at the top end of Barnfield Close enjoying open views across the village to countryside beyond, this two bedroom DETACHED BUNGALOW, which now requires some modernisation and updating, offers huge scope and potential for a purchaser to create their dream home. The...
Property Oracle says ..
This two-bedroom detached bungalow in Galmpton, Brixham, offers a blend of rural charm and proximity to amenities. While the location is attractive for families due to nearby schools, the village setting may lack the vibrancy of larger towns, and transportation links require some travel. The property’s interior requires significant modernisation; the décor is dated, and updating would enhance its appeal and value. The kitchen and bathroom are functional but show some wear. The exterior is presentable with a good-sized garden, providing welcome outdoor space. The list price is in line with other properties in the area, but the need for significant modernisation needs to be weighed against its desirability. Overall, this property presents potential for buyers willing to undertake renovations; a project that will reward them with a charming home in a desirable location once completed. However, the lack of precise plot size and square footage information in the listing hinders a more detailed and specific analysis.
Therefore, we give this property 6 / 10. *Disclaimer: This is our option and does constitute a recommendation or financial advice. Do your own research. *
- Price
- 7
- Condition
- 5
- Location
- 7
- Land
- 6
- Bedrooms
- 2
- Bathrooms
- 1
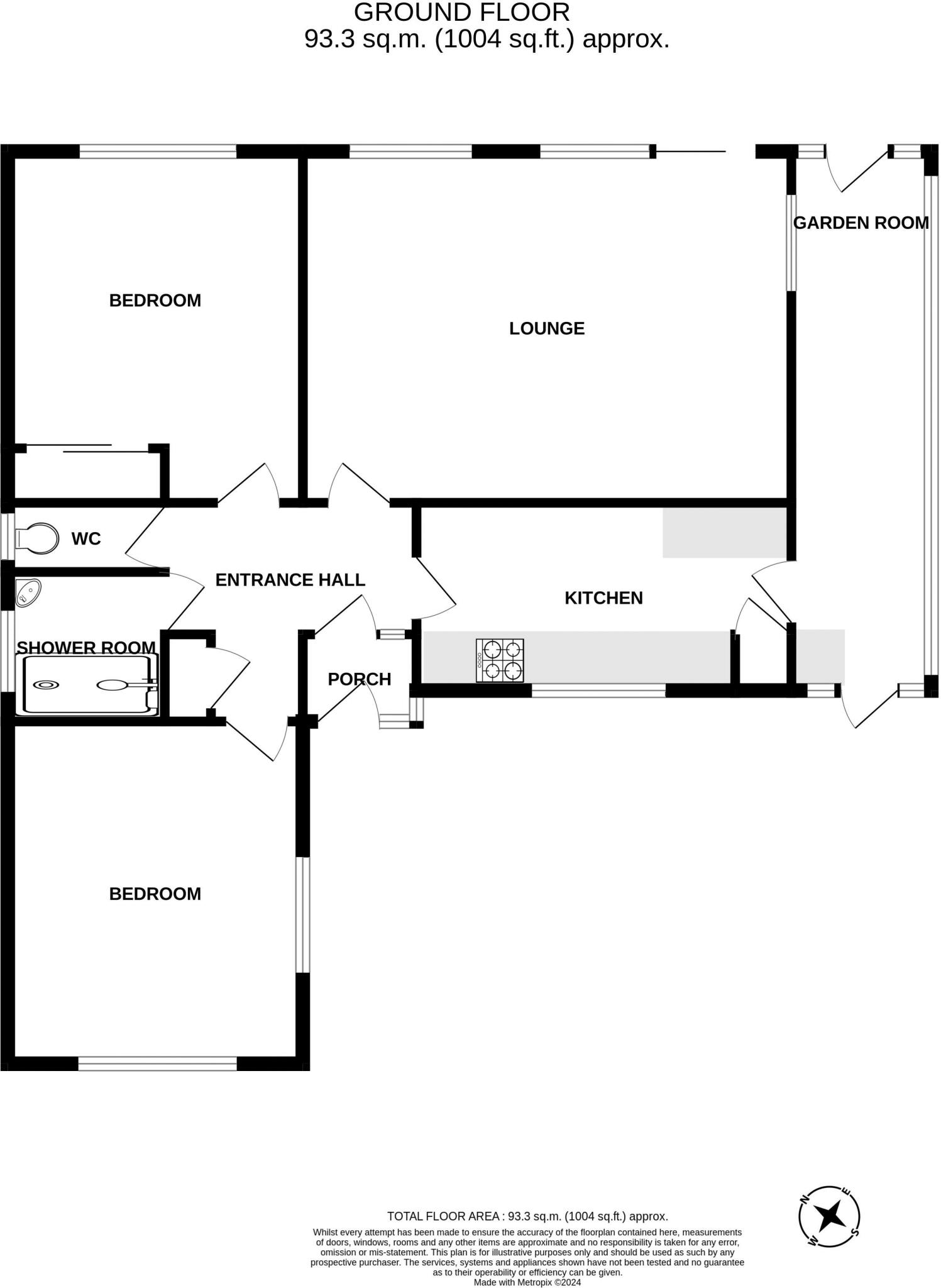
- Sqft (est)
- 1,004.27
The heatmap indicates the level of crime in the area. The color of the heatmap indicates the crime severity and recency.
Metrics Year-on-Year
- Average area value
- 419,056.00 £Increased by 8.17 %
- Est sale value
- 408,737.89 £Increased by 18.31 %
- Average area rental value
- 1,300.00 £/moUnchanged by 0.00 %
- Est letting value
- 1,004.27 £/moUnchanged by 0.00 %
- Est rental Yield
- 3.72 %Decreased by 7.69 %
- Crime Rate
- 5.00 %Unchanged by 0.00 %
Agent Activity
Eric Lloyd & Co created the listing.
Nearby Schools
| Name | Type | Ofsted | Distance |
|---|---|---|---|
| Churston Ferrers Grammar School Academy | Academy Converter | 0.38 KM | |
| Galmpton Church Of England Primary School | Academy Converter | 0.42 KM | |
| White Rock Primary School | Foundation School | Good | 2.29 KM |
| Roselands Primary School | Academy Converter | Good | 3.48 KM |
| South Devon College | Further Education | Good | 3.63 KM |
Images
Nearby Streets
| Name | Average Price | Average Sqft | Distance |
|---|---|---|---|
| Orchard Close | £ 0 | 0 | 0.00 KM |
| The Sidings | £ 0 | 0 | 0.00 KM |
| The Coombe | £ 325,000 | 0 | 0.00 KM |
| Light Lane | £ 167,475 | 0 | 0.00 KM |
| Bridge Road | £ 0 | 0 | 0.00 KM |
Nearby Transport
| Name | NLC | TLC | Distance |
|---|---|---|---|
| Paignton | 3427 | PGN | 4.46 KM |
| Torquay | 3434 | TQY | 7.66 KM |
| Torre | 3432 | TRR | 8.89 KM |
Nearby Listings
| Address | Price | Type | Score | Distance |
|---|---|---|---|---|
| BARNFIELD CLOSE GALMPTON BRIXHAM | £ 420,000 | BUY | 6 / 10 | 0.00 KM |
| Barnfield Close, Galmpton, Brixham, TQ5 | £ 525,000 | BUY | 7 / 10 | 0.09 KM |
| Orchard Close, Galmpton, Brixham | £ 1,250,000 | BUY | 8 / 10 | 0.17 KM |
| Vale Close, Galmpton, Brixham | £ 475,000 | BUY | 6 / 10 | 0.21 KM |
| VALE CLOSE GALMPTON BRIXHAM | £ 499,950 | BUY | 7 / 10 | 0.21 KM |
Nearby Properties
| Address | Price | Distance |
|---|---|---|
| 20 Barnfield Close | £ 309,000 | 0.10 KM |
| 3 Barnfield Close | £ 200,000 | 0.10 KM |
| 43 Barnfield Close | £ 310,000 | 0.10 KM |
| 13 Barnfield Close | £ 247,750 | 0.10 KM |
| 37 Barnfield Close | £ 451,000 | 0.10 KM |