Pennys says ..
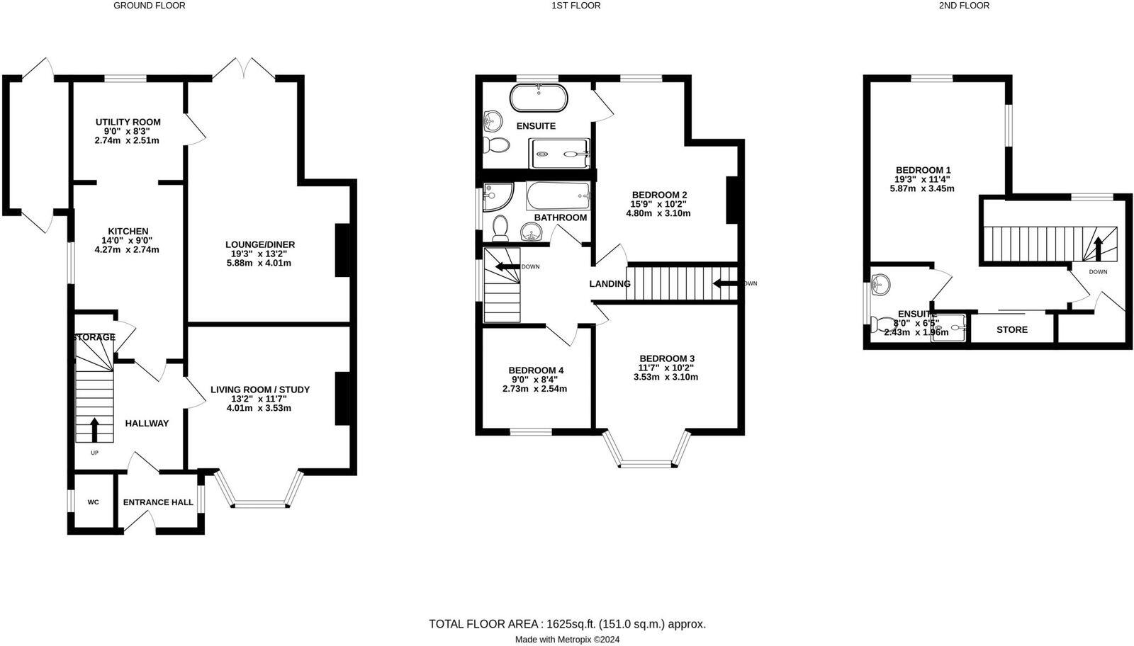
A Significantly Extended And Well Presented 1930's Semi Detached House Quietly Situated Enjoying Lovely Countryside Views With Sunny Aspect Gardens And Driveway Parking.
Property Oracle says ..
Therefore, we give this property 7 / 10. *Disclaimer: This is our option and does constitute a recommendation or financial advice. Do your own research. *
- Price
- 9
- Condition
- 7
- Location
- 7
- Land
- 7
- Bedrooms
- 4
- Bathrooms
- 3
- Sqft (est)
- 1,382.00
The heatmap indicates the level of crime in the area. The color of the heatmap indicates the crime severity and recency.
Metrics Year-on-Year
- Average area value
- 385,000.00 £Decreased by 11.33 %
- Est sale value
- 920,412.00 £Increased by 93.60 %
- Average area rental value
- 1,650.00 £/moIncreased by 37.04 %
- Est letting value
- 2,764.00 £/mo
- Est rental Yield
- 5.14 %Increased by 54.35 %
- Crime Rate
- 8.00 %Unchanged by 0.00 %
from 434,218.00 £
from 475,408.00 £
from 1,204.00 £/mo
from 0.00 £/mo
from 3.33 %
from 8.00 %
Agent Activity
Pennys marked this listing as sold.
Pennys created the listing.
Nearby Schools
| Name | Type | Ofsted | Distance |
|---|---|---|---|
| Littleham Church Of England Primary School | Voluntary Controlled School | Requires improvement | 0.19 KM |
| Bassetts Farm Primary School | Foundation School | Good | 1.38 KM |
| Marpool Primary School | Foundation School | Good | 1.99 KM |
| Exmouth & District Children'S Centre | Children's Centre | 2.17 KM | |
| Brixington Primary Academy | Academy Sponsor Led | Requires improvement | 2.42 KM |
Images
Nearby Streets
| Name | Average Price | Average Sqft | Distance |
|---|---|---|---|
| Concorde Road | £ 0 | 0 | 0.00 KM |
| Chapman Road | £ 0 | 0 | 0.00 KM |
| Buckeridge Road | £ 264,000 | 0 | 0.00 KM |
| The Crescent | £ 0 | 0 | 0.00 KM |
| Copperfield Close | £ 385,000 | 0 | 0.00 KM |
Nearby Transport
| Name | NLC | TLC | Distance |
|---|---|---|---|
| Exmouth | 5756 | EXM | 4.25 KM |
| Lympstone Village | 5761 | LYM | 6.53 KM |
| Starcross | 3413 | SCS | 7.86 KM |
| Dawlish Warren | 3409 | DWW | 7.95 KM |
| Lympstone Commando | 5762 | LYC | 8.21 KM |
Nearby Listings
| Address | Price | Type | Score | Distance |
|---|---|---|---|---|
| Capel Lane, Exmouth, EX8 2QZ | £ 440,000 | BUY | 7 / 10 | 0.00 KM |
| Capel Cottages, Littleham Road, Exmouth | £ 300,000 | BUY | 6 / 10 | 0.18 KM |
| Littleham Road, Exmouth, EX8 2RD | £ 485,000 | BUY | 7 / 10 | 0.18 KM |
| Capel Lane, Exmouth, EX8 2PW | £ 475,000 | BUY | Unknown | 0.18 KM |
| Sunnymead, Littleham Road, Exmouth, EX8 2RD | £ 450,000 | BUY | 7 / 10 | 0.23 KM |
Nearby Properties
| Address | Price | Distance |
|---|---|---|
| 5 Capel Lane | £ 275,000 | 0.01 KM |
| 42 Capel Lane | £ 323,500 | 0.01 KM |
| 22 Hawthorn Grove | £ 365,000 | 0.01 KM |
| 19 Capel Lane | £ 249,950 | 0.01 KM |
| 8 Capel Lane | £ 210,000 | 0.01 KM |