BUILDING PLOT - Palmyra Road, Bedminster, Bristol
MA

BUILDING PLOT - Palmyra Road, Bedminster, Bristol

By Maggs & Allen

£ 85,000

Reviews

3 out of 5 stars

Maggs & Allen says ..

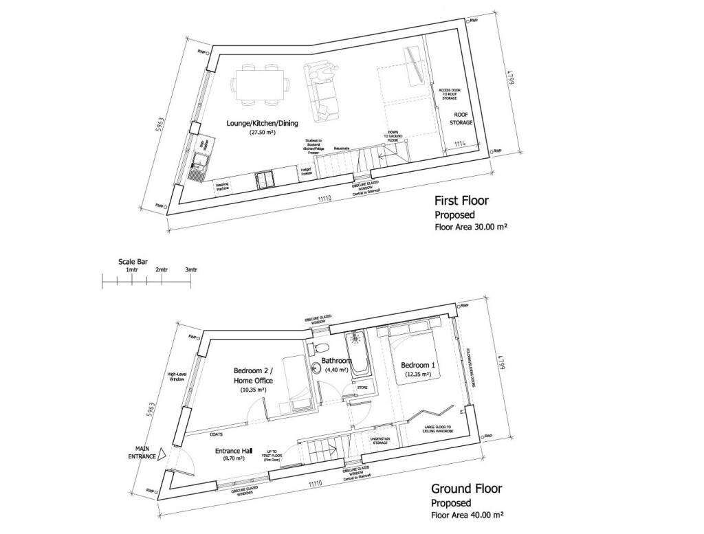
BUILDING PLOT IN THE HEART OF BEDMINSTER A rare opportunity to purchase a level building plot with full planning consent granted for the erection of a modern, detached two-bedroom house with rear garden. The site is currently occupied by a substantial garage/workshop with its own electr...

Property Oracle says ..

This is a building plot in Bedminster, Bristol, presenting a development opportunity. The existing garage requires renovation or demolition. The location is favorable, with good access to local amenities, schools, and transportation links. The asking price of £85,000 appears reasonable given the location and potential for development. The plot includes space for a garden. Proposed plans suggest a modern two-bedroom house could be built on the site.

Therefore, we give this property 6 / 10. *Disclaimer: This is our option and does constitute a recommendation or financial advice. Do your own research. *

Price
8
Condition
3
Location
7
Land
6
Bedrooms
0
Bathrooms
0
Sqft (est)
753.47

The heatmap indicates the level of crime in the area. The color of the heatmap indicates the crime severity and recency.

Metrics Year-on-Year

Average area value
331,250.00 £
Decreased by 14.00 %
from 385,168.00 £
Est sale value
388,037.05 £
Increased by 22.91 %
from 315,703.93 £
Average area rental value
1,534.00 £/mo
Decreased by 7.03 %
from 1,650.00 £/mo
Est letting value
1,506.94 £/mo
Increased by 100.00 %
from 753.47 £/mo
Est rental Yield
5.56 %
Increased by 8.17 %
from 5.14 %
Crime Rate
7.00 %
Unchanged by 0.00 %
from 7.00 %

Agent Activity

  • Maggs & Allen created the listing.

Nearby Schools

NameTypeOfstedDistance
Luckwell Primary SchoolAcademy Sponsor Led0.27 KM
Compass Point: South Street School & Children'S CentreChildren's Centre0.57 KM
Compass Point Primary SchoolAcademy Converter0.60 KM
Parson Street Primary SchoolAcademy ConverterRequires improvement0.73 KM
Ashton Gate Primary SchoolCommunity SchoolOutstanding0.89 KM

Images

1 - Building Plot for Auction, Bedminster.jpg 2 - Building Plot for Auction, Bedminster.JPG 3 - Building Plot for Auction, Bedminster.jpg 4 - Building Plot for Auction, Bedminster.JPG 5 - Building Plot for Auction, Bedminster.JPG 6 - Building Plot for Auction, Bedminster.jpg 7 - Building Plot for Auction, Bedminster.jpg 8 - Building Plot for Auction, Bedminster.JPG 9 - Building Plot for Auction, Bedminster.JPG 10 - Building Plot for Auction, Bedminster.jpg 11 - Building Plot for Auction, Bedminster.JPG 12 - Building Plot for Auction, Bedminster.jpg 13 - Building Plot for Auction, Bedminster.JPG 14 - Building Plot for Auction, Bedminster.jpg 15 - Building Plot for Auction, Bedminster.JPG

Nearby Streets

NameAverage PriceAverage SqftDistance
Longmoor Road £ 500,00000.00 KM
Kingdom View £ 000.00 KM
Trafalgar Terrace £ 335,00000.00 KM
Greenmarsh Lane £ 000.00 KM
Old School Lane £ 308,33300.00 KM

Nearby Transport

NameNLCTLCDistance
Parson Street3246PSN0.45 KM
Bedminster3245BMT1.90 KM
Clifton Down3202CFN3.18 KM
Bristol Temple Meads3231BRI3.57 KM
Redland3247RDA3.83 KM

Nearby Listings

AddressPriceTypeScoreDistance
BUILDING PLOT - Palmyra Road, Bedminster, Bristol £ 85,000BUY6 / 100.00 KM
The Old Tabernacle, Palmyra Road, Bedminster, Bristol £ 240,000BUY6 / 100.02 KM
Palmrya Road, Bristol, BS3 £ 220,000BUY5 / 100.02 KM
Elmdale Road, Bedminster, Bristol £ 520,000BUY6 / 100.03 KM
Garnet Street, Bristol, Somerset, BS3 £ 450,000BUY7 / 100.04 KM

Nearby Properties

AddressPriceDistance
49 Palmyra Road £ 375,0000.01 KM
21 Palmyra Road £ 274,0000.01 KM
60 Palmyra Road £ 207,0000.02 KM
62 Palmyra Road £ 295,5000.02 KM
70 Palmyra Road £ 305,0000.02 KM