Salisbury Road, Shipton Bellinger
By Milfords
£ 600,000
Reviews
2 out of 5 stars
Milfords says ..
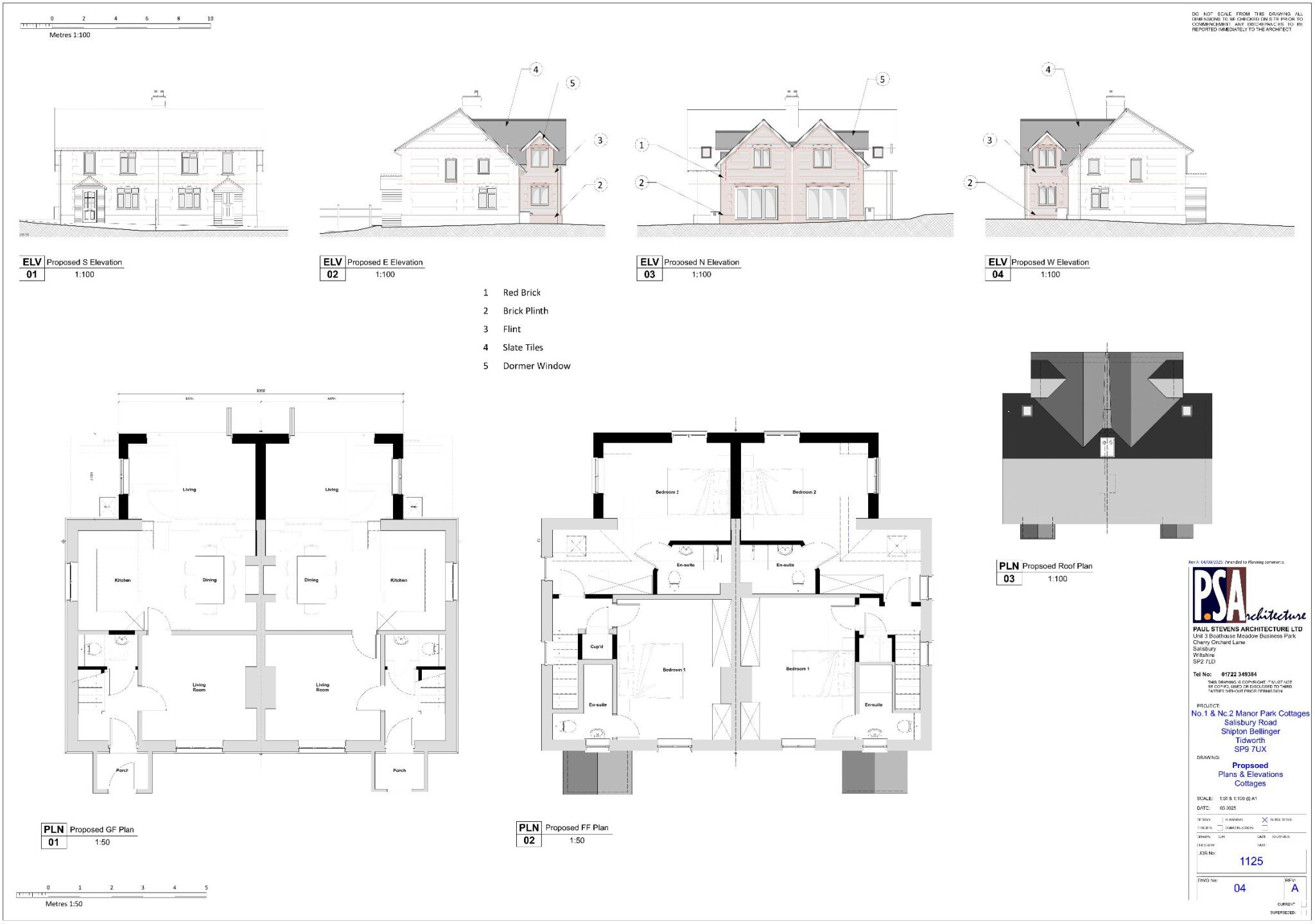
Exceptional Opportunity. Pre-Application Approval for a Detached Bungalow Building Plot and the Extension of a Pair of Character Brick and Flint Cottages that Require Renovation.
Property Oracle says ..
The cottage on Salisbury Road, Shipton Bellinger, offers a blend of rural living with convenient access to transport links and local amenities. The property features four bedrooms and two bathrooms within 888.40 sqft. While the cottage retains a traditional charm, it requires some renovation and modernisation. The property benefits from a generously sized garden with outbuildings, providing ample outdoor space. The asking price of £600,000 appears high when compared to the average property prices in the area, especially considering the condition of the property. The nearest train station is 6.13 KM away, and the nearest school is 1.12 KM away.
Therefore, we give this property 5 / 10. *Disclaimer: This is our option and does constitute a recommendation or financial advice. Do your own research. *
- Price
- 5
- Condition
- 5
- Location
- 6
- Land
- 7
- Bedrooms
- 4
- Bathrooms
- 2
- Sqft (est)
- 888.40
The heatmap indicates the level of crime in the area. The color of the heatmap indicates the crime severity and recency.
Metrics Year-on-Year
- Average area value
- 397,143.00 £Increased by 19.84 %
- Est sale value
- 345,587.60 £Increased by 89.76 %
- Average area rental value
- 950.00 £/moDecreased by 13.08 %
- Est letting value
- 0.00 £/mo
- Est rental Yield
- 2.87 %Decreased by 27.53 %
- Crime Rate
- 0.00 %
Agent Activity
Milfords created the listing.
Nearby Schools
| Name | Type | Ofsted | Distance |
|---|---|---|---|
| Shipton Bellinger Primary School | Community School | Good | 1.12 KM |
| Clarendon Infants' School | Foundation School | Good | 3.96 KM |
| Clarendon Junior School | Foundation School | Good | 3.96 KM |
| Windmill Hill Children'S Centre | Children's Centre | 4.25 KM | |
| Wellington Lions Primary Academy | Academy Sponsor Led | Requires improvement | 4.69 KM |
Images
Nearby Streets
| Name | Average Price | Average Sqft | Distance |
|---|---|---|---|
| The Orchard | £ 0 | 0 | 0.00 KM |
Nearby Transport
| Name | NLC | TLC | Distance |
|---|---|---|---|
| Grateley | 5514 | GRT | 6.13 KM |
Nearby Listings
| Address | Price | Type | Score | Distance |
|---|---|---|---|---|
| Salisbury Road, Shipton Bellinger | £ 600,000 | BUY | 5 / 10 | 0.00 KM |
| Salisbury Road, Shipton Bellinger | £ 200,000 | BUY | Unknown | 0.02 KM |
| Salisbury Road, Shipton Bellinger | £ 400,000 | BUY | 6 / 10 | 0.03 KM |
| Elm Villas, Tidworth, SP9 | £ 275,000 | BUY | 6 / 10 | 0.25 KM |
| Salisbury Road, Shipton Bellinger, SP9 | £ 259,950 | BUY | Unknown | 0.25 KM |
Nearby Properties
| Address | Price | Distance |
|---|---|---|
| Croftwood | £ 537,500 | 0.18 KM |
| Fern Cottage | £ 255,000 | 0.18 KM |
| Laburnum | £ 310,000 | 0.18 KM |
| 3 Old Farmhouse Close | £ 348,000 | 0.34 KM |
| 7 Manor Close | £ 263,500 | 0.40 KM |