Lambert & Foster Ltd says ..
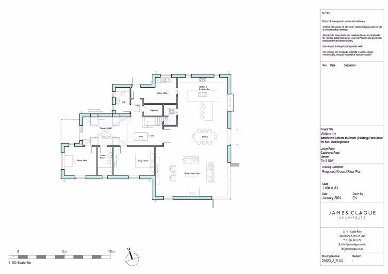
A building plot with planning permission for TWO SEPARATE SCHEMES, in a conveniently located position on the outskirts of the village of Marden in Kent. The land UNUSUALLY COMES WITH THE BENEFIT OF PLANNING PERMISSION FOR TWO SEPARATE SCHEMES (Scheme A & Scheme B) for the demolition of the existi...
Property Oracle says ..
This property represents a unique opportunity to acquire a plot of land in Marden, Kent, with the potential to build a modern home. Currently, the site houses a barn in poor condition, requiring significant renovation or demolition. Planning permission is in place for a contemporary dwelling. The location offers a balance between rural charm and accessibility, with a nearby train station and primary school. The generous plot size allows for a substantial garden and landscaping. While the initial investment is for land and a derelict structure, the potential to create a bespoke home in a sought-after area makes this an attractive prospect. The price reflects the current state and the investment needed for the new build.
Therefore, we give this property 6 / 10. *Disclaimer: This is our option and does constitute a recommendation or financial advice. Do your own research. *
- Price
- 7
- Condition
- 3
- Location
- 7
- Land
- 8
- Bedrooms
- 0
- Bathrooms
- 0
The heatmap indicates the level of crime in the area. The color of the heatmap indicates the crime severity and recency.
Metrics Year-on-Year
- Average area value
- 465,167.00 £Decreased by 23.15 %
- Average area rental value
- 1,248.00 £/moDecreased by 11.36 %
- Est rental Yield
- 3.22 %Increased by 15.41 %
- Crime Rate
- 9.00 %Unchanged by 0.00 %
Agent Activity
Lambert & Foster Ltd created the listing.
Nearby Schools
| Name | Type | Ofsted | Distance |
|---|---|---|---|
| Marden Primary Academy | Academy Converter | 0.54 KM | |
| Bethany School | Other Independent School | 3.60 KM | |
| St Margaret'S, Collier Street Church Of England Voluntary Controlled School | Voluntary Controlled School | Good | 4.21 KM |
| Colliers Green Church Of England Primary School | Voluntary Aided School | Good | 5.93 KM |
| Hunton Church Of England Primary School | Voluntary Aided School | Good | 6.26 KM |
Images
Nearby Streets
| Name | Average Price | Average Sqft | Distance |
|---|---|---|---|
| Gravel Pit Lane | £ 85,000 | 0 | 0.00 KM |
| Church Green | £ 995,000 | 0 | 0.00 KM |
| The Wickets | £ 0 | 0 | 0.00 KM |
| South Road | £ 0 | 0 | 0.00 KM |
Nearby Transport
| Name | NLC | TLC | Distance |
|---|---|---|---|
| Marden (Kent) | 5223 | MRN | 1.00 KM |
| Staplehurst | 5228 | SPU | 7.01 KM |
| East Farleigh | 5234 | EFL | 9.66 KM |
Nearby Listings
| Address | Price | Type | Score | Distance |
|---|---|---|---|---|
| Goudhurst Road, Marden | £ 395,000 | BUY | 5 / 10 | 0.00 KM |
| Goudhurst Road, Marden | £ 425,000 | BUY | 6 / 10 | 0.00 KM |
| Goudhurst Road, Marden, Tonbridge, Kent, TN12 | £ 475,000 | BUY | 7 / 10 | 0.12 KM |
| Goudhurst Road, Marden | £ 375,000 | BUY | 7 / 10 | 0.20 KM |
| Heasman Close, Marden, Kent, TN12 9FH | £ 425,000 | BUY | 5 / 10 | 0.28 KM |
Nearby Properties
| Address | Price | Distance |
|---|---|---|
| Spring Grove | £ 14,000 | 0.01 KM |
| The Lodge | £ 495,000 | 0.01 KM |
| Moleside | £ 137,500 | 0.01 KM |
| Oast Cottage | £ 742,500 | 0.01 KM |
| Branns Farmhouse | £ 725,000 | 0.19 KM |