Boulevard Avenue, Grimsby
By Farrow Estate Agent Ltd
£ 95,000
Reviews
3 out of 5 stars
Farrow Estate Agent Ltd says ..
Farrow Estate Agents are pleased to present this generously sized three bedroom family home to the market. Found in this popular Grimsby location on Boulevard Avenue, the property is ideally placed within a wide range of amenities, regular transport links, in catchment of well regarded schools ma...
Property Oracle says ..
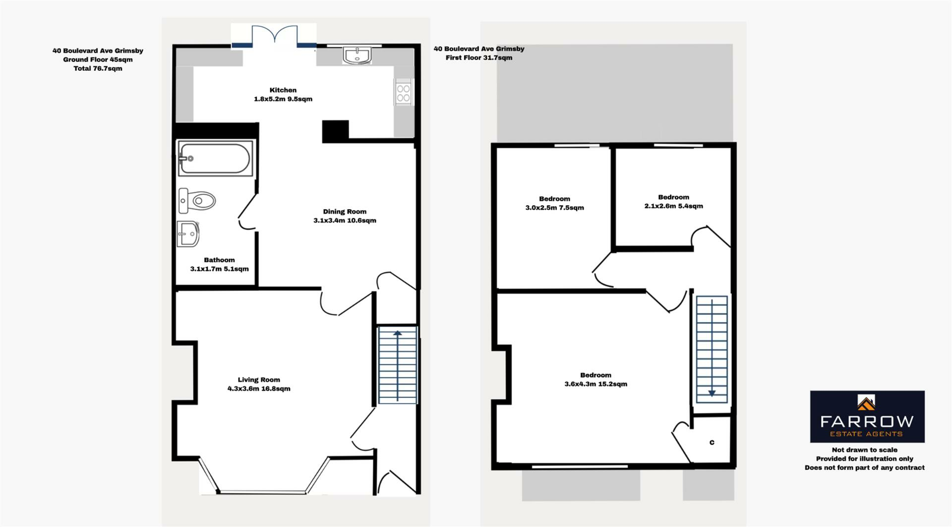
This three-bedroom terraced house located on Boulevard Avenue in Grimsby’s West Marsh area is presented to the market at £95,000. The property benefits from a relatively convenient location with access to local amenities, transportation links (Grimsby Town train station is approximately 1.5km away), and schools, including some with good Ofsted ratings. Macaulay Primary Academy and Littlecoates Primary Academy are both within less than a kilometer’s distance.
The interior of the house appears to be in good condition, featuring what looks to be a recently updated kitchen and bathroom. The flooring is modern, and the property shows a general level of maintenance. While the current decorating style might not appeal to all buyers, it does present a clean and livable space. The inclusion of a small garden adds to its appeal, although its size is modest. The lack of a precise plot size is a slight drawback in providing a full evaluation.
The price of £95,000 aligns relatively well with nearby property sales on Boulevard Avenue, where average prices appear to be close or slightly higher, indicating it’s competitively priced in the local context. However, the lack of precise price-per-square-foot data for comparable properties makes it difficult to determine definitive value for money. Overall, this property presents a solid option for first-time buyers or investors looking for a reasonably priced family home in Grimsby. Potential buyers should weigh the location’s pros and cons against their individual preferences and priorities, and factor in the possibility of minor updates or personalization to meet their taste. An independent valuation may be wise prior to making an offer.
Therefore, we give this property 6 / 10. *Disclaimer: This is our option and does constitute a recommendation or financial advice. Do your own research. *
- Price
- 7
- Condition
- 7
- Location
- 6
- Land
- 4
- Bedrooms
- 3
- Bathrooms
- 1
- Sqft (est)
- 825.59
The heatmap indicates the level of crime in the area. The color of the heatmap indicates the crime severity and recency.
Metrics Year-on-Year
- Average area value
- 63,333.00 £Decreased by 14.93 %
- Est sale value
- 70,175.15 £Decreased by 11.46 %
- Average area rental value
- 660.00 £/moIncreased by 12.24 %
- Est letting value
- 0.00 £/mo
- Est rental Yield
- 12.51 %Increased by 31.96 %
- Crime Rate
- 20.00 %Unchanged by 0.00 %
Agent Activity
Farrow Estate Agent Ltd created the listing.
Nearby Schools
| Name | Type | Ofsted | Distance |
|---|---|---|---|
| West Marsh Children'S Centre | Children's Centre | 0.37 KM | |
| Macaulay Primary Academy | Academy Sponsor Led | Requires improvement | 0.37 KM |
| Littlecoates Primary Academy | Academy Converter | Good | 0.71 KM |
| Ormiston South Parade Academy | Academy Converter | Good | 1.14 KM |
| St James' School | Other Independent School | 1.19 KM |
Images
Nearby Streets
| Name | Average Price | Average Sqft | Distance |
|---|---|---|---|
| Chestnut Avenue | £ 0 | 0 | 0.00 KM |
| Cromwell Road | £ 80,000 | 0 | 0.00 KM |
| Bramble Close | £ 0 | 0 | 0.00 KM |
| Boulevard Avenue | £ 99,950 | 0 | 0.00 KM |
| Cromwell Avenue | £ 137,500 | 0 | 0.00 KM |
Nearby Transport
| Name | NLC | TLC | Distance |
|---|---|---|---|
| Grimsby Town | 6280 | GMB | 1.50 KM |
| Grimsby Docks | 6276 | GMD | 2.68 KM |
| Great Coates | 6275 | GCT | 3.50 KM |
| New Clee | 6289 | NCE | 4.30 KM |
| Healing | 6283 | HLI | 6.93 KM |
Nearby Listings
| Address | Price | Type | Score | Distance |
|---|---|---|---|---|
| Boulevard Avenue, Grimsby | £ 95,000 | BUY | 6 / 10 | 0.00 KM |
| BOULEVARD AVENUE, GRIMSBY | £ 90,000 | BUY | 6 / 10 | 0.05 KM |
| Lister Street, Grimsby, N.E. Lincs, DN31 2JG | £ 89,950 | BUY | 6 / 10 | 0.07 KM |
| Joseph Street, Grimsby, Lincoln, Lincolnshire, DN31 2NU | £ 50,000 | BUY | 6 / 10 | 0.09 KM |
| Weelsby Road, Grimsby, Lincolnshire, DN32 | £ 60,000 | BUY | 4 / 10 | 0.10 KM |
Nearby Properties
| Address | Price | Distance |
|---|---|---|
| 20 Boulevard Avenue | £ 54,000 | 0.01 KM |
| 40 Boulevard Avenue | £ 69,950 | 0.01 KM |
| 52 Boulevard Avenue | £ 55,000 | 0.01 KM |
| 18 Boulevard Avenue | £ 62,600 | 0.01 KM |
| 34 Boulevard Avenue | £ 78,000 | 0.01 KM |