Sutherland Close, Chalk, DA12
By The Agency UK
£ 300,000
Reviews
3 out of 5 stars
The Agency UK says ..
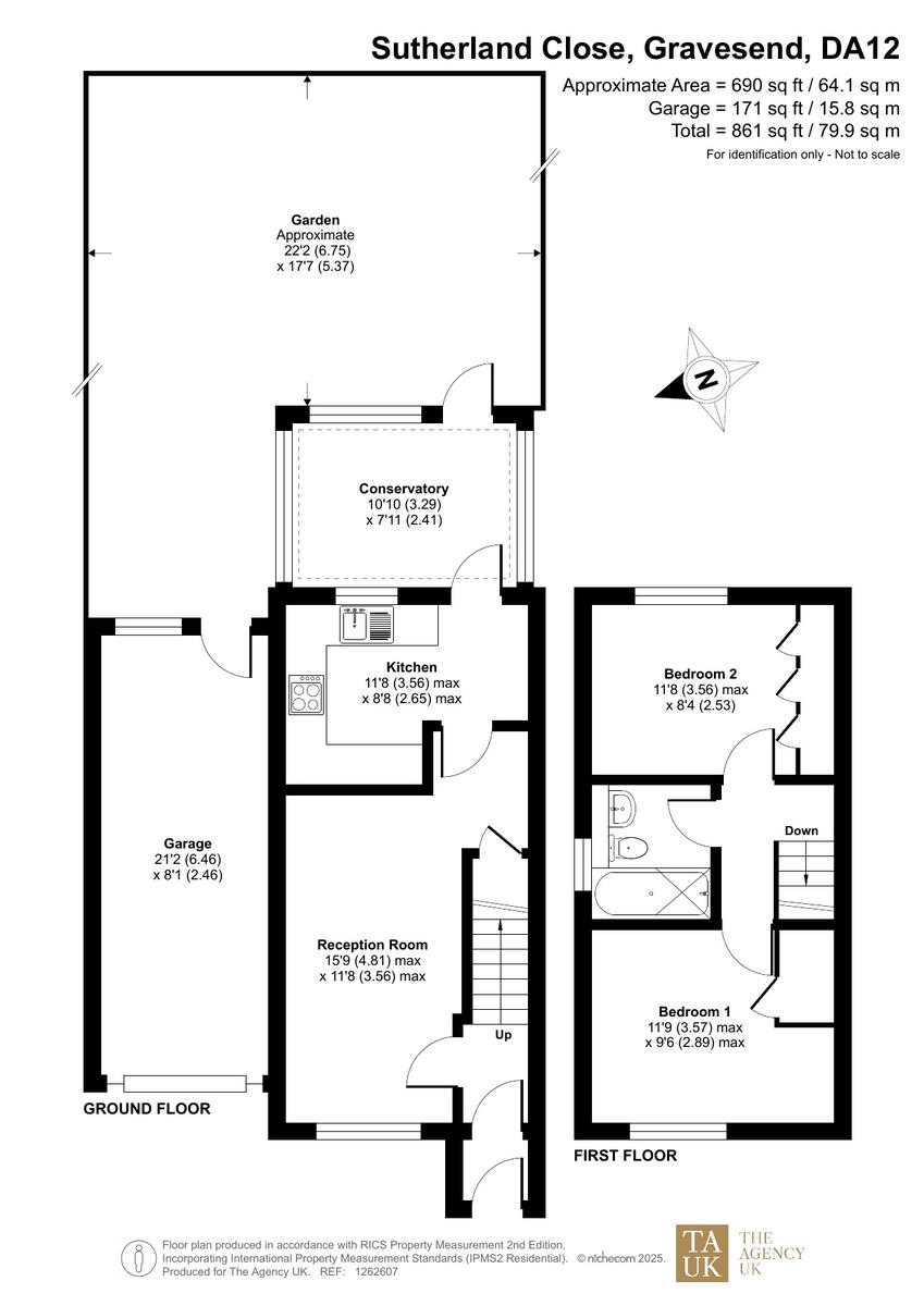
Two Double Bedrooms | Cul De Sac Position | Attached Garage plus Off Street Parking | Double Glazed Conservatory | No Onward Chain | Sought After Development | Low Maintenance Rear Garden |
Property Oracle says ..
This property is a 2-bedroom semi-detached house located in Chalk, Gravesham, Kent. The area benefits from nearby schools such as Thamesview School (rated Good by Ofsted) and several other schools within a 2km radius. Transportation links are also relatively close, with several Southeastern and c2c train stations within a 5-7km radius. The property itself appears to be in good condition, with a modern kitchen and bathroom. It includes a garage and a well-maintained garden with artificial turf. The list price of £300,000 is slightly above the average price for the area (£249,300), but considering the property’s condition, included garage, and garden, it might be considered reasonable. However, further investigation into the exact size of the plot and comparable properties in the immediate vicinity would be beneficial to confirm this.
Therefore, we give this property 7 / 10. *Disclaimer: This is our option and does constitute a recommendation or financial advice. Do your own research. *
- Price
- 7
- Condition
- 8
- Location
- 7
- Land
- 7
- Bedrooms
- 2
- Bathrooms
- 1
- Sqft (est)
- 751.60
- Lot (est)
- 690.00
The heatmap indicates the level of crime in the area. The color of the heatmap indicates the crime severity and recency.
Metrics Year-on-Year
- Average area value
- 257,500.00 £Increased by 0.03 %
- Est sale value
- 309,659.20 £Increased by 62.85 %
- Average area rental value
- 1,610.00 £/moIncreased by 45.31 %
- Est letting value
- 1,503.20 £/moIncreased by 100.00 %
- Est rental Yield
- 7.50 %Increased by 45.35 %
- Crime Rate
- 12.00 %Unchanged by 0.00 %
Agent Activity
The Agency UK created the listing.
Nearby Schools
| Name | Type | Ofsted | Distance |
|---|---|---|---|
| Thamesview School | Foundation School | Good | 1.70 KM |
| Link19 College | Special Post 16 Institution | 1.75 KM | |
| Westcourt Primary School | Academy Converter | Good | 2.04 KM |
| North West Kent Alternative Provision Service | Academy Alternative Provision Sponsor Led | 2.07 KM | |
| Riverside Children'S Centre (Gravesend) | Children's Centre | 2.18 KM |
Images
Nearby Streets
| Name | Average Price | Average Sqft | Distance |
|---|---|---|---|
| Manor Close | £ 435,000 | 0 | 0.00 KM |
| Castle Lane | £ 600,000 | 0 | 0.00 KM |
| Chalk Park | £ 0 | 0 | 0.00 KM |
| Dalefield Way | £ 180,000 | 0 | 0.00 KM |
| Oxford Close | £ 305,000 | 0 | 0.00 KM |
Nearby Transport
| Name | NLC | TLC | Distance |
|---|---|---|---|
| Gravesend | 5172 | GRV | 5.06 KM |
| East Tilbury | 7471 | ETL | 6.05 KM |
| Higham | 5202 | HGM | 6.12 KM |
| Sole Street | 5126 | SOR | 6.41 KM |
| Tilbury Town | 7462 | TIL | 7.24 KM |
Nearby Listings
| Address | Price | Type | Score | Distance |
|---|---|---|---|---|
| Sutherland Close, Chalk, Kent, DA12 | £ 300,000 | BUY | 7 / 10 | 0.02 KM |
| Shirley Close, Gravesend, Kent, DA12 | £ 550,000 | BUY | 7 / 10 | 0.06 KM |
| Lisle Close, Gravesend, Kent, DA12 4XH | £ 375,000 | BUY | 7 / 10 | 0.07 KM |
| Shirley Close, Gravesend, Kent | £ 550,000 | BUY | 7 / 10 | 0.07 KM |
| Lisle Close, Gravesend, DA12 | £ 335,000 | BUY | 6 / 10 | 0.13 KM |
Nearby Properties
| Address | Price | Distance |
|---|---|---|
| 10 Sutherland Close | £ 240,000 | 0.01 KM |
| 8 Sutherland Close | £ 250,000 | 0.01 KM |
| 2 Sutherland Close | £ 167,500 | 0.01 KM |
| 7 Sutherland Close | £ 290,000 | 0.03 KM |
| 4 Filborough Way | £ 435,000 | 0.04 KM |