Sutherland Reay says ..
This stunning terraced house, situated in the highly sought-after Buxworth location near Buxworth Basin, offers an excellent opportunity for first-time buyers or investors alike.
Property Oracle says ..
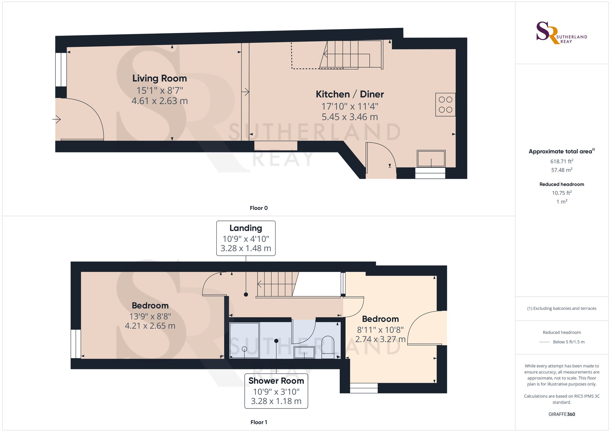
The property is a 2 bedroom, 1 bathroom terraced house located on New Road, Buxworth, Derbyshire. It is situated in the Blackbrook area and has a list price of £260,000. The property has a total area of 618.71 sqft and benefits from a small, enclosed rear garden.
The property appears to be in excellent condition, having undergone a recent modernisation. The kitchen and bathroom are modern and well-equipped. The images show a contemporary interior design, suggesting that the property is move-in ready and does not require any significant renovations.
The location is good. Buxworth Primary School, rated ‘Good’ by Ofsted, is within close proximity. Several other primary schools with ‘Good’ Ofsted ratings are also located within a reasonable distance. The property is also conveniently located near several train stations, providing easy access to commuting routes.
Considering the property’s excellent condition, desirable location near schools and transport links, and the inclusion of a garden, the list price of £260,000 appears reasonable. The average price per sqft in the area is £301, making the property competitively priced compared to similar properties in the area. While the average house price in the area is higher (£295,393), the smaller size of this property explains the lower list price. Nearby comparable properties support this assessment.
Therefore, we give this property 7 / 10. *Disclaimer: This is our option and does constitute a recommendation or financial advice. Do your own research. *
- Price
- 7
- Condition
- 9
- Location
- 8
- Land
- 6
- Bedrooms
- 2
- Bathrooms
- 1
- Sqft (est)
- 618.71
The heatmap indicates the level of crime in the area. The color of the heatmap indicates the crime severity and recency.
Metrics Year-on-Year
- Average area value
- 257,500.00 £Decreased by 19.56 %
- Est sale value
- 178,807.19 £Increased by 4.71 %
- Average area rental value
- 929.00 £/moDecreased by 8.38 %
- Est letting value
- 618.71 £/mo
- Est rental Yield
- 4.33 %Increased by 13.95 %
- Crime Rate
- 14.00 %Unchanged by 0.00 %
Agent Activity
Sutherland Reay created the listing.
Nearby Schools
| Name | Type | Ofsted | Distance |
|---|---|---|---|
| Buxworth Primary School | Community School | Good | 0.19 KM |
| Whaley Bridge Primary School | Community School | Requires improvement | 2.18 KM |
| Furness Vale Primary And Nursery School | Community School | Good | 2.64 KM |
| Taxal And Fernilee Cofe Primary School | Voluntary Controlled School | Good | 2.75 KM |
| Peak School | Academy Special Converter | 3.90 KM |
Images
Nearby Streets
| Name | Average Price | Average Sqft | Distance |
|---|---|---|---|
| Dolly Wood Close | £ 500,000 | 0 | 0.00 KM |
| Back Eccles Lane | £ 625,000 | 0 | 0.00 KM |
| B6062 | £ 350,000 | 0 | 0.00 KM |
Nearby Transport
| Name | NLC | TLC | Distance |
|---|---|---|---|
| Whaley Bridge | 2772 | WBR | 1.95 KM |
| Furness Vale | 2952 | FNV | 2.68 KM |
| Chinley | 2823 | CLY | 2.70 KM |
| New Mills Newtown | 2769 | NMN | 5.17 KM |
| New Mills Central | 2974 | NMC | 5.23 KM |
Nearby Listings
| Address | Price | Type | Score | Distance |
|---|---|---|---|---|
| New Road, Buxworth, SK23 | £ 260,000 | BUY | 7 / 10 | 0.00 KM |
| New Road, Buxworth, SK23 | £ 235,000 | BUY | Unknown | 0.01 KM |
| New Road, High Peak, SK23 | £ 210,000 | BUY | 7 / 10 | 0.04 KM |
| New Road, Buxworth, High Peak, Derbyshire, SK23 | £ 400,000 | BUY | 6 / 10 | 0.04 KM |
| Waters Reach, 3 Brookside, Buxworth, High Peak, Derbyshire SK23 7NE | £ 165,000 | BUY | 7 / 10 | 0.13 KM |
Nearby Properties
| Address | Price | Distance |
|---|---|---|
| Ribble House | £ 260,000 | 0.04 KM |
| Cherry Tree House | £ 130,000 | 0.04 KM |
| 5 New Road | £ 147,000 | 0.04 KM |
| 1 New Road | £ 133,000 | 0.04 KM |
| 3 New Road | £ 147,500 | 0.04 KM |