High Street, Totnes, Devon
By Wood's Estate Agents and Auctioneers
£ 795,000
Reviews
3 out of 5 stars
Wood's Estate Agents and Auctioneers says ..
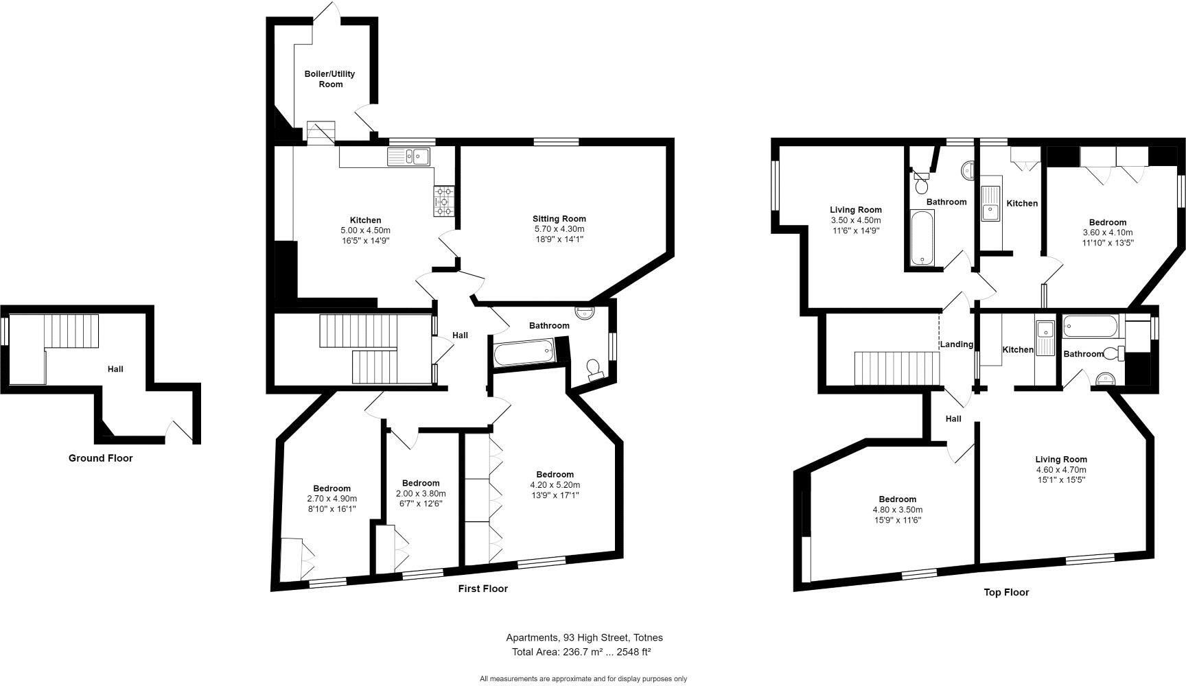
An ideal investment opportunity to acquire this freehold town centre property comprising two occupied commercial units, two one bedroom apartments, previously used as a successful holiday let business, along with a three double bedroom apartment with annexe.
Property Oracle says ..
This property comprises a mixed-use building located on High Street, Totnes. It’s described as including two commercial units, two one-bedroom apartments (previously used as holiday lets), and a three-bedroom apartment with an annexe. The photos display the residential parts showing varied levels of renovation and furnishing. Some areas appear recently upgraded (e.g., the modern bathroom), while other rooms retain more traditional features. The property benefits from a central location in Totnes, close to amenities, schools, and transport links, including Totnes train station which is less than a kilometer away. The inclusion of both commercial and residential components makes this property a potentially valuable investment, however, a detailed financial analysis of the commercial units and let potential would be necessary to determine the profitability of the business operation. The lack of plot size information makes it difficult to assess the value per square foot of land. The available evidence suggests the property has limited external space, consisting mainly of a small courtyard. Overall, the property presents an interesting blend of residential and commercial opportunity in a highly convenient, sought-after location, but potential buyers should conduct a thorough survey and review of the commercial side of the business.
Therefore, we give this property 6 / 10. *Disclaimer: This is our option and does constitute a recommendation or financial advice. Do your own research. *
- Price
- 7
- Condition
- 7
- Location
- 9
- Land
- 3
- Bedrooms
- 6
- Bathrooms
- 4
- Sqft (est)
- 2,547.82
The heatmap indicates the level of crime in the area. The color of the heatmap indicates the crime severity and recency.
Metrics Year-on-Year
- Average area value
- 418,833.00 £Increased by 5.75 %
- Est sale value
- 1,031,867.10 £Increased by 5.47 %
- Average area rental value
- 1,017.00 £/moDecreased by 11.64 %
- Est letting value
- 0.00 £/moDecreased by 100.00 %
- Est rental Yield
- 2.91 %Decreased by 16.62 %
- Crime Rate
- 45.00 %Unchanged by 0.00 %
Agent Activity
Wood's Estate Agents and Auctioneers created the listing.
Nearby Schools
| Name | Type | Ofsted | Distance |
|---|---|---|---|
| The Grove School | Community School | Outstanding | 0.37 KM |
| Totnes Progressive School | Other Independent School | 0.59 KM | |
| King Edward Vi Community College | Foundation School | Good | 0.88 KM |
| On Track Education - Totnes | Other Independent Special School | Good | 1.18 KM |
| Roc College (Part Of United Response) | Special Post 16 Institution | Good | 1.43 KM |
Images
Nearby Streets
| Name | Average Price | Average Sqft | Distance |
|---|---|---|---|
| North Street Mews | £ 325,000 | 0 | 0.00 KM |
| Priory Gardens | £ 0 | 0 | 0.00 KM |
| Heath Court | £ 0 | 0 | 0.00 KM |
| Mansion Way | £ 0 | 0 | 0.00 KM |
| Swallowfields | £ 415,000 | 0 | 0.00 KM |
Nearby Transport
| Name | NLC | TLC | Distance |
|---|---|---|---|
| Totnes | 3558 | TOT | 0.60 KM |
Nearby Listings
| Address | Price | Type | Score | Distance |
|---|---|---|---|---|
| High Street, Totnes, Devon | £ 795,000 | BUY | 6 / 10 | 0.00 KM |
| High Street, Totnes, Devon | £ 495,000 | BUY | 5 / 10 | 0.01 KM |
| 88 High Street, Totnes | £ 260,000 | BUY | 5 / 10 | 0.02 KM |
| High Street, Totnes | £ 450,000 | BUY | 7 / 10 | 0.03 KM |
| Leechwell Street, Totnes, TQ9 | £ 525,000 | BUY | 5 / 10 | 0.04 KM |
Nearby Properties
| Address | Price | Distance |
|---|---|---|
| 82a High Street | £ 315,000 | 0.03 KM |
| 74a High Street | £ 466,500 | 0.03 KM |
| 63a High Street | £ 198,000 | 0.04 KM |
| 63b High Street | £ 180,550 | 0.04 KM |
| 79a High Street | £ 205,000 | 0.04 KM |