Beaulieu Road, Christchurch, Dorset, BH23
By Slades Estate Agents
£ 325,000
Reviews
3 out of 5 stars
Slades Estate Agents says ..
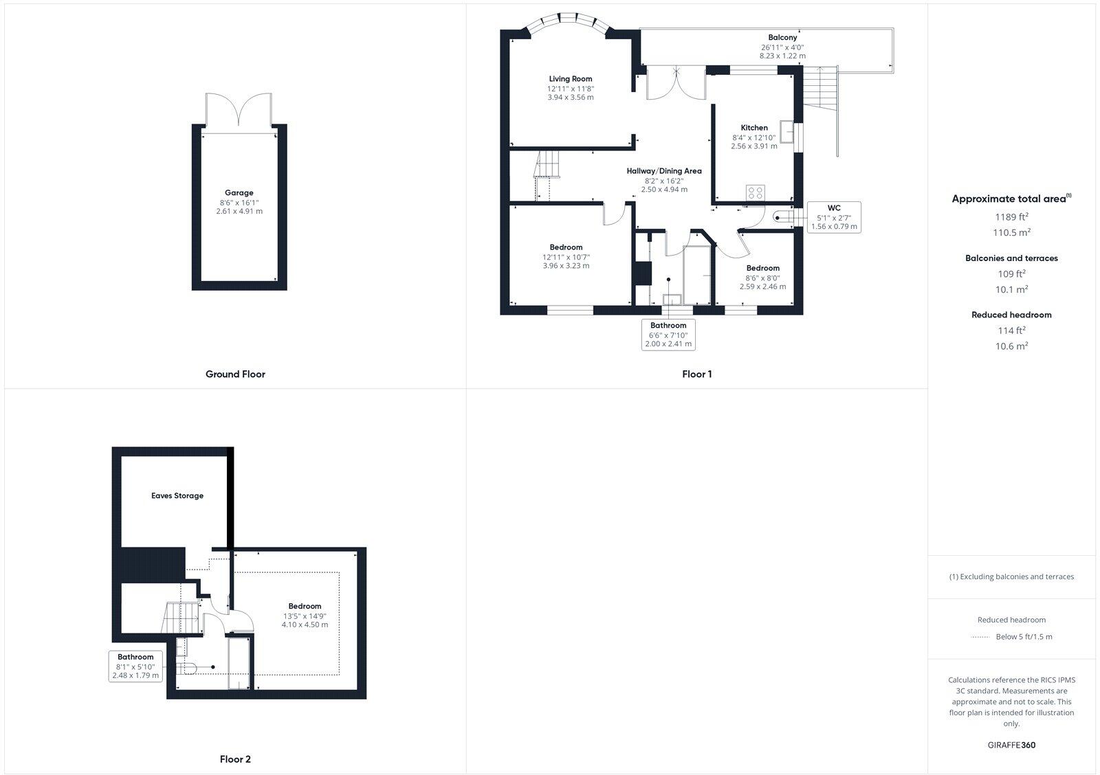
This WELL-PRESENTED THREE BEDROOM MAISONETTE offers SPACIOUS and VERSATILE accommodation arranged over two floors, A COURTYARD GARDEN, OFF ROAD PARKING & GARAGE. NO CHAIN.
Property Oracle says ..
This is a 3-bedroom maisonette located on Beaulieu Road in Christchurch, Dorset. The property offers two bathrooms and is listed for £325,000. While the interior appears to be in generally good condition, the kitchen could benefit from modernization. The property includes a small garden and a balcony. The location is convenient, with nearby schools and transportation links. The listing price appears reasonable for the area, considering the property’s features and location, but potential buyers should factor in the cost of any desired renovations.
Therefore, we give this property 6 / 10. *Disclaimer: This is our option and does constitute a recommendation or financial advice. Do your own research. *
- Price
- 7
- Condition
- 6
- Location
- 7
- Land
- 4
- Bedrooms
- 3
- Bathrooms
- 2
The heatmap indicates the level of crime in the area. The color of the heatmap indicates the crime severity and recency.
Metrics Year-on-Year
- Average area value
- 511,490.00 £Increased by 9.81 %
- Average area rental value
- 1,456.00 £/moDecreased by 21.55 %
- Est rental Yield
- 3.42 %Decreased by 28.45 %
- Crime Rate
- 6.00 %Unchanged by 0.00 %
Agent Activity
Slades Estate Agents created the listing.
Nearby Schools
| Name | Type | Ofsted | Distance |
|---|---|---|---|
| Christchurch Junior School | Academy Converter | 0.91 KM | |
| Christchurch Infant School | Community School | Outstanding | 0.99 KM |
| Christchurch Learning Centre | Pupil Referral Unit | Good | 1.28 KM |
| Stourfield Infant School | Academy Converter | Requires improvement | 1.55 KM |
| Stourfield Junior School | Academy Converter | Good | 1.55 KM |
Images
Nearby Streets
| Name | Average Price | Average Sqft | Distance |
|---|---|---|---|
| Bailey Drive | £ 0 | 0 | 0.00 KM |
| Crofton Close | £ 435,000 | 0 | 0.00 KM |
| Sherwood Close | £ 400,000 | 0 | 0.00 KM |
| Loring Road | £ 172,222 | 0 | 0.00 KM |
| Canberra Close | £ 675,000 | 0 | 0.00 KM |
Nearby Transport
| Name | NLC | TLC | Distance |
|---|---|---|---|
| Christchurch | 5879 | CHR | 1.23 KM |
| Pokesdown | 5885 | POK | 3.42 KM |
| Bournemouth | 5876 | BMH | 7.76 KM |
| Hinton Admiral | 5880 | HNA | 9.11 KM |
Nearby Listings
| Address | Price | Type | Score | Distance |
|---|---|---|---|---|
| Beaulieu Road, Christchurch, Dorset, BH23 | £ 325,000 | BUY | 6 / 10 | 0.00 KM |
| Beaulieu Road, Christchurch, Dorset, BH23 | £ 335,000 | BUY | 6 / 10 | 0.04 KM |
| CHRISTCHURCH | £ 169,500 | BUY | 6 / 10 | 0.04 KM |
| CHRISTCHURCH | £ 175,000 | BUY | 6 / 10 | 0.04 KM |
| Beaulieu Road, Christchurch, BH23 2EA | £ 175,000 | BUY | 7 / 10 | 0.04 KM |
Nearby Properties
| Address | Price | Distance |
|---|---|---|
| 30a Beaulieu Road | £ 155,000 | 0.04 KM |
| 32 Beaulieu Road | £ 222,500 | 0.04 KM |
| 8a Beaulieu Road | £ 325,000 | 0.04 KM |
| 6 Beaulieu Road | £ 250,000 | 0.04 KM |
| 24 Beaulieu Road | £ 1,050,000 | 0.04 KM |