Morgan H Lewis says ..
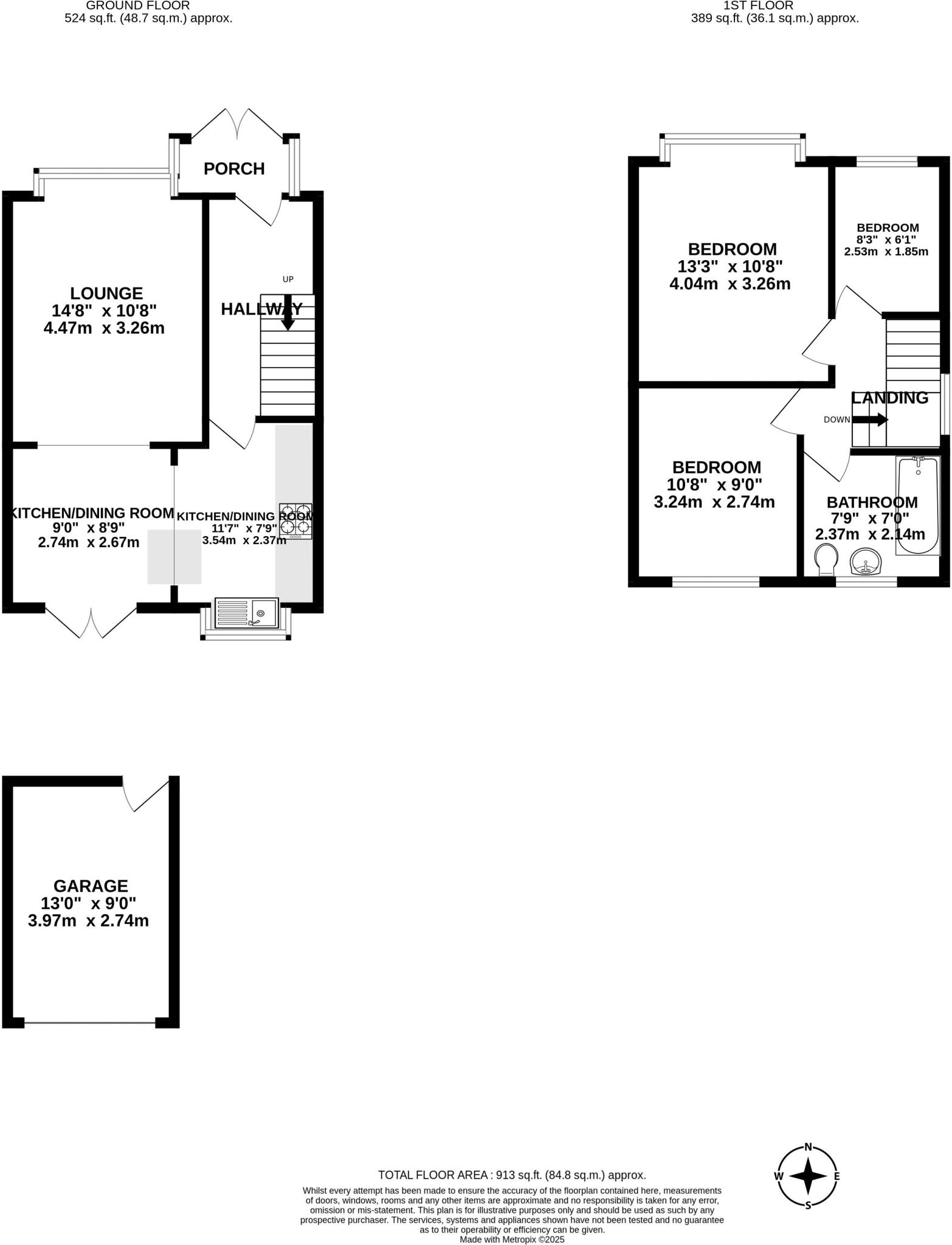
A beautifully presented three-bedroom semi-detached home, situated in a highly sought-after location on Harbury Walk, Wigan. This property offers spacious and versatile accommodation, with stylish interiors and stunning open field views to the front – making it the perfect home for famili...
Property Oracle says ..
Therefore, we give this property 7 / 10. *Disclaimer: This is our option and does constitute a recommendation or financial advice. Do your own research. *
- Price
- 6
- Condition
- 8
- Location
- 7
- Land
- 7
- Bedrooms
- 3
- Bathrooms
- 1
- Sqft (est)
- 791.44
The heatmap indicates the level of crime in the area. The color of the heatmap indicates the crime severity and recency.
Metrics Year-on-Year
- Average area value
- 177,800.00 £Increased by 0.95 %
- Est sale value
- 167,785.28 £Increased by 23.98 %
- Average area rental value
- 902.00 £/moIncreased by 19.47 %
- Est letting value
- 791.44 £/mo
- Est rental Yield
- 6.09 %Increased by 18.48 %
- Crime Rate
- 0.00 %
from 176,130.00 £
from 135,336.24 £
from 755.00 £/mo
from 0.00 £/mo
from 5.14 %
from 0.00 %
Agent Activity
Morgan H Lewis created the listing.
Nearby Schools
| Name | Type | Ofsted | Distance |
|---|---|---|---|
| St John Fisher Catholic High School | Voluntary Aided School | Good | 0.31 KM |
| Sacred Heart Catholic Primary School | Voluntary Aided School | Good | 0.41 KM |
| Beech Hill & Sacred Heart Children'S Centre | Children's Centre Linked Site | 0.59 KM | |
| Wigan St Andrew'S Cofe Junior And Infant School | Voluntary Aided School | Good | 0.66 KM |
| Beech Hill Community Primary School | Community School | Good | 0.68 KM |
Images
Nearby Streets
| Name | Average Price | Average Sqft | Distance |
|---|---|---|---|
| Waltham Avenue | £ 0 | 0 | 0.00 KM |
| Carnet Close | £ 0 | 0 | 0.00 KM |
| Doolan Crescent | £ 0 | 0 | 0.00 KM |
| Entwistle Green | £ 0 | 0 | 0.00 KM |
| Saint Andrew's Drive | £ 235,000 | 0 | 0.00 KM |
Nearby Transport
| Name | NLC | TLC | Distance |
|---|---|---|---|
| Wigan Wallgate | 2406 | WGW | 2.77 KM |
| Wigan North Western | 2363 | WGN | 2.83 KM |
| Pemberton | 2403 | PEM | 3.39 KM |
| Gathurst | 2397 | GST | 4.35 KM |
| Ince (Manchester) | 2236 | INC | 5.22 KM |
Nearby Listings
| Address | Price | Type | Score | Distance |
|---|---|---|---|---|
| Harbury Walk, Wigan | £ 235,000 | BUY | 7 / 10 | 0.00 KM |
| Waltham Avenue, Springfield, Wigan, WN6 7RU | £ 260,000 | BUY | 6 / 10 | 0.13 KM |
| Blackthorn Avenue, Springfield, Wigan, WN6 7SA | £ 170,000 | BUY | 7 / 10 | 0.18 KM |
| Springbourne, Wigan, WN6 | £ 195,000 | BUY | 7 / 10 | 0.20 KM |
| Sandway, Wigan, WN6 | £ 170,000 | BUY | 7 / 10 | 0.20 KM |
Nearby Properties
| Address | Price | Distance |
|---|---|---|
| 30 Harbury Walk | £ 95,000 | 0.01 KM |
| 28 Harbury Walk | £ 143,000 | 0.01 KM |
| 16 Harbury Walk | £ 145,000 | 0.01 KM |
| 12 Harbury Walk | £ 42,750 | 0.01 KM |
| 24 Harbury Walk | £ 97,000 | 0.01 KM |