Bahram Road, Bessacarr, Doncaster, DN4
By The Property Hive
£ 259,999
Reviews
2 out of 5 stars
The Property Hive says ..
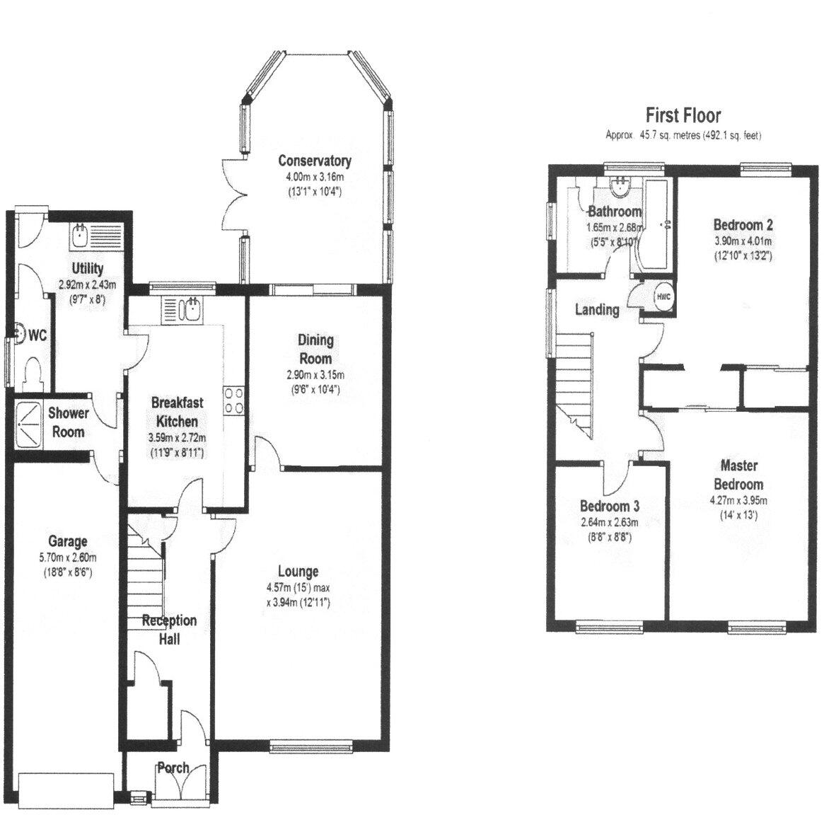
Situated in the highly sought-after residential area of Bessacarr, Doncaster, this well-proportioned 3-bedroom detached house on Bahram Road presents an excellent opportunity for buyers seeking a family home with great potential to renovate and add value. The ground floor offers versatile livi...
Property Oracle says ..
The property is a 3-bedroom, 2-bathroom detached house located in Bessacarr, Doncaster. The location benefits from relatively close proximity to several primary and secondary schools, with St Peter’s Catholic Primary School and St Wilfrid’s Academy both receiving a “Good” Ofsted rating. Doncaster train station is also within a reasonable distance, offering convenient transport links. The presence of a garden is evident in the provided images. The house itself appears to be in generally good condition, though some aspects suggest it may benefit from some modernisation. The kitchen and bathrooms show some signs of age, and the interior décor is dated. The property includes a conservatory, adding extra living space. The plot size is small. Considering the average price per square foot in the area (£272) and the property’s size (491.91 sqft), a rough estimate of its value might be around £133,700. However, the list price is significantly higher at £259,999. This suggests the price may not represent good value for money, especially considering the need for potential modernisation. The nearby comparable properties show a wide range of prices, making it difficult to establish a definitive market value without more detailed information on their condition and features. The lack of plot size information for the comparable properties also makes a direct comparison challenging.
Therefore, we give this property 5 / 10. *Disclaimer: This is our option and does constitute a recommendation or financial advice. Do your own research. *
- Price
- 4
- Condition
- 7
- Location
- 7
- Land
- 4
- Bedrooms
- 3
- Bathrooms
- 2
- Sqft (est)
- 491.91
The heatmap indicates the level of crime in the area. The color of the heatmap indicates the crime severity and recency.
Metrics Year-on-Year
- Average area value
- 253,662.00 £Increased by 0.21 %
- Est sale value
- 193,812.54 £Increased by 82.41 %
- Average area rental value
- 468.00 £/moDecreased by 50.48 %
- Est letting value
- 0.00 £/mo
- Est rental Yield
- 2.21 %Decreased by 50.67 %
- Crime Rate
- 7.00 %Unchanged by 0.00 %
Agent Activity
The Property Hive created the listing.
Nearby Schools
| Name | Type | Ofsted | Distance |
|---|---|---|---|
| Bessacarr Primary | Academy Converter | 0.52 KM | |
| Willow Primary School | Academy Sponsor Led | 1.24 KM | |
| St Peter'S Catholic Primary School | Voluntary Aided School | Good | 1.74 KM |
| St Wilfrid'S Academy, Doncaster | Free Schools Alternative Provision | Good | 1.88 KM |
| Lakeside Primary Academy | Academy Converter | 1.96 KM |
Images
Nearby Streets
| Name | Average Price | Average Sqft | Distance |
|---|---|---|---|
| Hinburn Close | £ 200,000 | 0 | 0.00 KM |
| Winscard Road | £ 0 | 0 | 0.00 KM |
| St. Eric's Road | £ 795,000 | 0 | 0.00 KM |
| Sparrow Close | £ 310,000 | 0 | 0.00 KM |
| Lapwing Close | £ 0 | 0 | 0.00 KM |
Nearby Transport
| Name | NLC | TLC | Distance |
|---|---|---|---|
| Doncaster | 6417 | DON | 5.27 KM |
| Kirk Sandall | 6527 | KKS | 6.74 KM |
| Bentley (South Yorkshire) | 8352 | BYK | 7.46 KM |
Nearby Listings
| Address | Price | Type | Score | Distance |
|---|---|---|---|---|
| Bahram Road, Bessacarr, Doncaster, DN4 | £ 259,999 | BUY | 5 / 10 | 0.00 KM |
| Thealby Gardens, Doncaster, DN4 | £ 150,000 | BUY | 7 / 10 | 0.09 KM |
| Thealby Gardens, Bessacarr, Doncaster, DN4 | £ 235,000 | BUY | 7 / 10 | 0.09 KM |
| Thealby Gardens, Doncaster, South Yorkshire, DN4 | £ 230,000 | BUY | 7 / 10 | 0.09 KM |
| 52 Thealby Gardens, Doncaster, South Yorkshire, DN4 | £ 150,000 | BUY | 4 / 10 | 0.09 KM |
Nearby Properties
| Address | Price | Distance |
|---|---|---|
| 46 Thealby Gardens | £ 140,000 | 0.09 KM |
| 116 Thealby Gardens | £ 165,000 | 0.09 KM |
| 44 Thealby Gardens | £ 107,000 | 0.09 KM |
| 26 Thealby Gardens | £ 114,950 | 0.09 KM |
| 30 Thealby Gardens | £ 120,000 | 0.09 KM |