Ryefield Avenue, Uxbridge, UB10
By Kearns Residential
£ 650,000
Reviews
3 out of 5 stars
Kearns Residential says ..
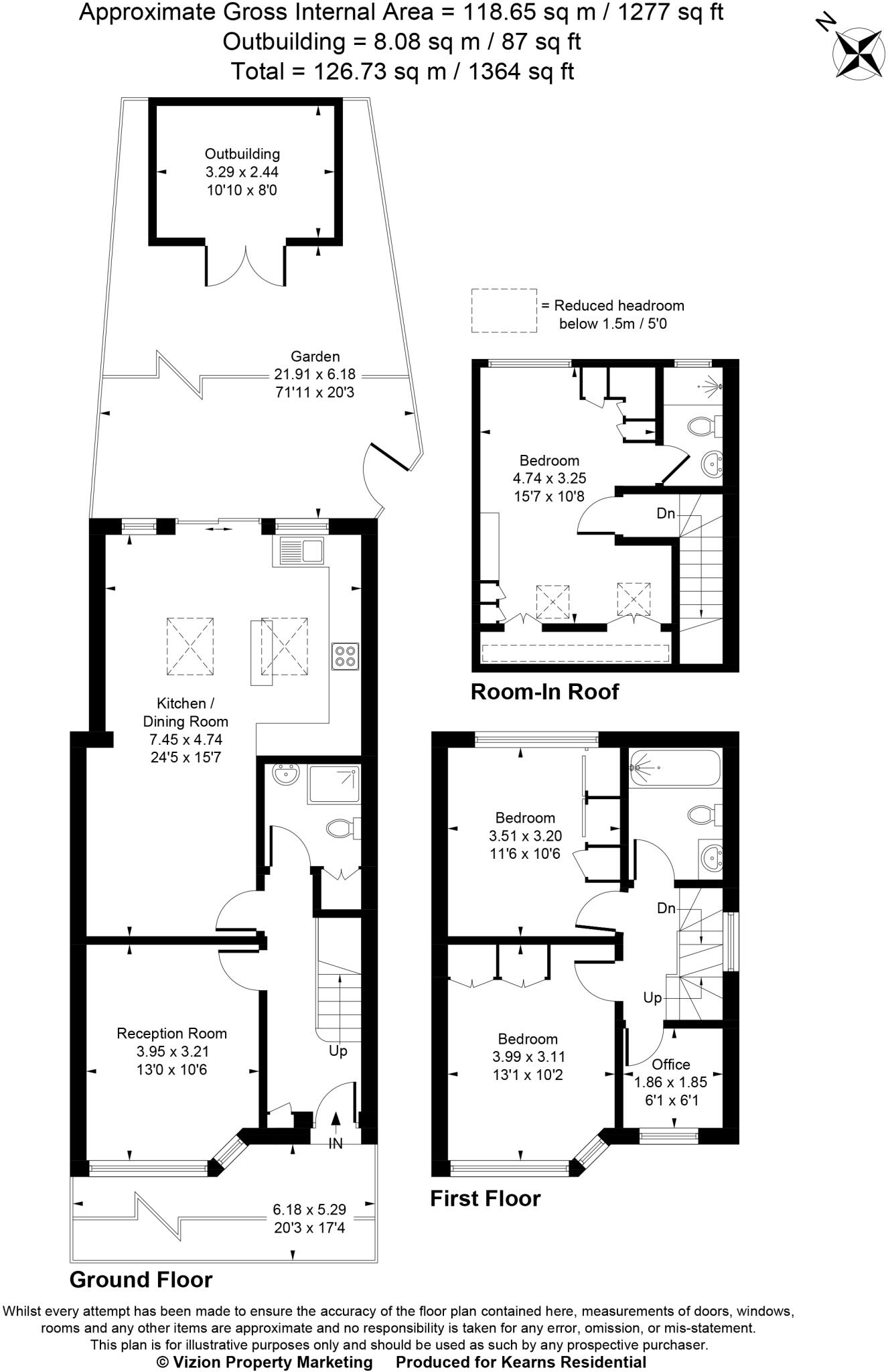
This extended three-bedroom semi-detached property with an additional study offers spacious and modern interiors, perfect for a large or growing family. It is conveniently located in Hillingdon, with local amenities and transport links just a short walk away. Upon entering, you are g...
Property Oracle says ..
This is a well-presented, modern semi-detached house in a popular residential area. The property benefits from a good-sized garden, off-street parking, and is located close to local schools and transport links. The property is in good condition and would make an ideal family home. While the price is slightly above the average for the area, the additional square footage and bathrooms may justify the higher price. Overall, this is a desirable property in a sought-after location.
Therefore, we give this property 7 / 10. *Disclaimer: This is our option and does constitute a recommendation or financial advice. Do your own research. *
- Price
- 6
- Condition
- 8
- Location
- 7
- Land
- 7
- Bedrooms
- 3
- Bathrooms
- 3
- Sqft (est)
- 1,364.00
The heatmap indicates the level of crime in the area. The color of the heatmap indicates the crime severity and recency.
Metrics Year-on-Year
- Average area value
- 491,250.00 £Decreased by 2.14 %
- Est sale value
- 766,568.00 £Increased by 21.91 %
- Average area rental value
- 1,654.00 £/moDecreased by 17.30 %
- Est letting value
- 1,364.00 £/moUnchanged by 0.00 %
- Est rental Yield
- 4.04 %Decreased by 15.48 %
- Crime Rate
- 19.00 %Unchanged by 0.00 %
Agent Activity
Kearns Residential created the listing.
Nearby Schools
| Name | Type | Ofsted | Distance |
|---|---|---|---|
| Oak Farm Primary School | Foundation School | Outstanding | 0.61 KM |
| Oak Farm Children'S Centre | Children's Centre | 0.70 KM | |
| Ryefield Primary School | Academy Converter | Good | 0.80 KM |
| St Helen'S College | Other Independent School | 0.91 KM | |
| Swakeleys School For Girls | Academy Converter | Outstanding | 1.09 KM |
Images
Nearby Streets
| Name | Average Price | Average Sqft | Distance |
|---|---|---|---|
| Auriol Drive | £ 220,909 | 0 | 0.00 KM |
| Western Avenue | £ 0 | 0 | 0.00 KM |
| The Oaks | £ 0 | 0 | 0.00 KM |
| Blake Close | £ 0 | 0 | 0.00 KM |
| Sheridan Close | £ 0 | 0 | 0.00 KM |
Nearby Transport
| Name | NLC | TLC | Distance |
|---|---|---|---|
| West Ruislip | 3059 | WRU | 2.61 KM |
| South Ruislip | 3057 | SRU | 4.98 KM |
| West Drayton | 3174 | WDT | 5.21 KM |
| Hayes And Harlington | 3186 | HAY | 5.48 KM |
| Denham | 3052 | DNM | 6.97 KM |
Nearby Listings
| Address | Price | Type | Score | Distance |
|---|---|---|---|---|
| Ryefield Avenue, Uxbridge, UB10 | £ 650,000 | BUY | 7 / 10 | 0.00 KM |
| Windsor Avenue, Hillingdon, UB10 | £ 575,000 | BUY | 6 / 10 | 0.07 KM |
| Windsor Avenue, Hillingdon, UB10 | £ 550,000 | BUY | 7 / 10 | 0.07 KM |
| Windsor Avenue, Hillingdon, UB10 | £ 575,000 | BUY | 7 / 10 | 0.08 KM |
| Windsor Avenue, Hillingdon, UB10 | £ 600,000 | BUY | 6 / 10 | 0.08 KM |
Nearby Properties
| Address | Price | Distance |
|---|---|---|
| 75 Ryefield Avenue | £ 250,000 | 0.08 KM |
| 46 Ryefield Avenue | £ 345,000 | 0.08 KM |
| 97 Ryefield Avenue | £ 427,000 | 0.08 KM |
| 70 Ryefield Avenue | £ 452,000 | 0.08 KM |
| 101b Ryefield Avenue | £ 306,500 | 0.08 KM |