Goodfellows says ..
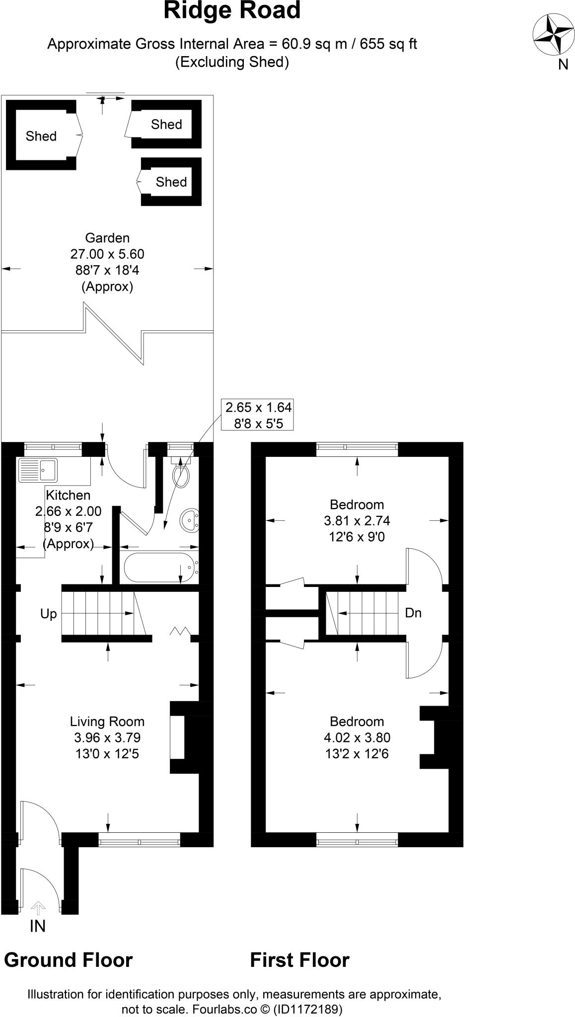
Offered to the market with the the potential to extend, is this charming two bedroom mid terraced home. Situated ideally for all, with bus stops and shops within walking distance. Also, for the growing family, there is a plethora of schooling within the locale for all ages. The pro...
Property Oracle says ..
The property is a well-presented two-bedroom terraced house in a convenient location close to schools and transport links. The interior appears well-maintained and updated, and the garden is a good size. The list price seems reasonable considering the size and condition, although more comparable data would strengthen this assessment.
Therefore, we give this property 7 / 10. *Disclaimer: This is our option and does constitute a recommendation or financial advice. Do your own research. *
- Price
- 7
- Condition
- 8
- Location
- 8
- Land
- 7
- Bedrooms
- 2
- Bathrooms
- 1
- Sqft (est)
- 2,266.88
- Lot (est)
- 655.52
The heatmap indicates the level of crime in the area. The color of the heatmap indicates the crime severity and recency.
Metrics Year-on-Year
- Average area value
- 584,167.00 £Increased by 7.05 %
- Est sale value
- 1,464,404.48 £Increased by 10.81 %
- Average area rental value
- 2,325.00 £/moIncreased by 3.33 %
- Est letting value
- 4,533.76 £/moUnchanged by 0.00 %
- Est rental Yield
- 4.78 %Decreased by 3.43 %
- Crime Rate
- 2.00 %Unchanged by 0.00 %
Agent Activity
Goodfellows created the listing.
Nearby Schools
| Name | Type | Ofsted | Distance |
|---|---|---|---|
| Brookfield Primary Academy | Academy Converter | Good | 0.18 KM |
| Cheam Park Farm Primary Academy | Academy Converter | Outstanding | 0.58 KM |
| St Cecilia'S Catholic Primary School | Voluntary Aided School | Outstanding | 0.96 KM |
| Green Oak Children'S Centre (Formally Nonsuch And Cheam Sure Start Children'S Centre) | Children's Centre | 0.99 KM | |
| Green Oak Children'S Centre (Formally Stonecot And Worcester Park Children'S Centre) | Children's Centre | 0.99 KM |
Images
Nearby Streets
| Name | Average Price | Average Sqft | Distance |
|---|---|---|---|
| Beeches Road | £ 465,438 | 0 | 0.00 KM |
| St Cecilia's Close | £ 0 | 0 | 0.00 KM |
| Poplar Road | £ 606,250 | 0 | 0.00 KM |
| Westbourne Avenue | £ 1,990,000 | 0 | 0.00 KM |
| Trafalgar Avenue | £ 396,250 | 0 | 0.00 KM |
Nearby Transport
| Name | NLC | TLC | Distance |
|---|---|---|---|
| West Sutton | 5293 | WSU | 1.83 KM |
| St Helier | 5290 | SIH | 2.00 KM |
| Sutton Common | 5436 | SUC | 2.01 KM |
| Morden South | 5291 | MDS | 2.40 KM |
| Cheam | 5352 | CHE | 2.72 KM |
Nearby Listings
| Address | Price | Type | Score | Distance |
|---|---|---|---|---|
| Beeches Road, Sutton, SM3 | £ 575,000 | BUY | 6 / 10 | 0.09 KM |
| Ridge Road, Sutton, SM3 | £ 475,000 | BUY | Unknown | 0.10 KM |
| Ridge Road, Sutton, SM3 | £ 575,000 | BUY | 7 / 10 | 0.12 KM |
| Beeches Road, Sutton | £ 500,000 | BUY | 7 / 10 | 0.16 KM |
| Ridge Road, Sutton, Surrey. SM3 | £ 550,000 | BUY | 6 / 10 | 0.17 KM |
Nearby Properties
| Address | Price | Distance |
|---|---|---|
| 179 Ridge Road | £ 92,250 | 0.06 KM |
| 194 Ridge Road | £ 375,000 | 0.06 KM |
| 185 Ridge Road | £ 350,000 | 0.06 KM |
| 179a Ridge Road | £ 330,000 | 0.06 KM |
| 199 Ridge Road | £ 250,000 | 0.06 KM |