Mayview House Lands O'barony, Ladywalk, Anstruther, KY10 3EX
MC

Mayview House Lands O'barony, Ladywalk, Anstruther, KY10 3EX

By McEwan Fraser Legal

£ 500,000

Reviews

3 out of 5 stars

McEwan Fraser Legal says ..

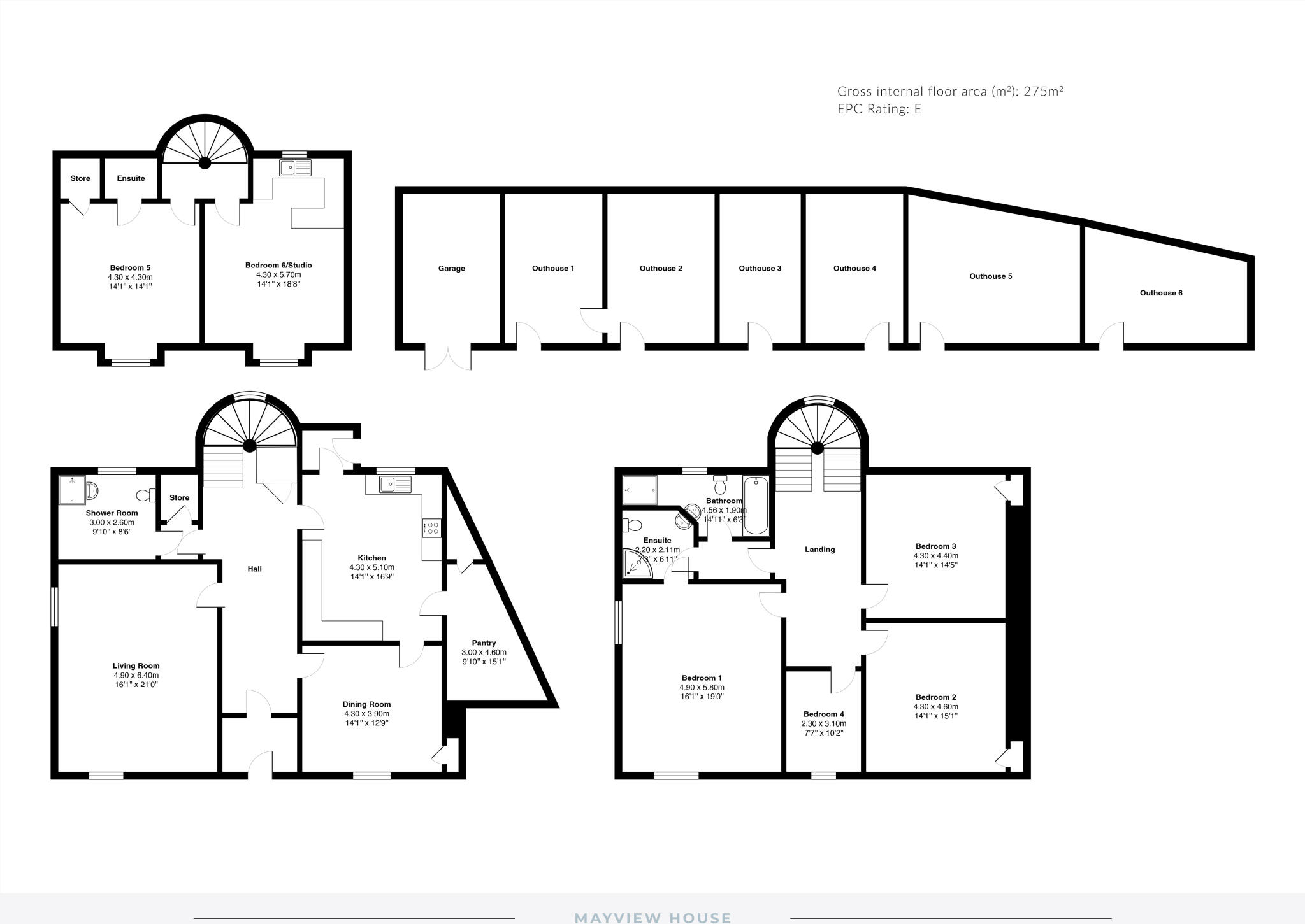
Magnificent six bedroom Family home in the heart of Anstruther

Property Oracle says ..

The property is a detached house located in Anstruther, Fife. It features six bedrooms and four bathrooms. Based on the images, the property appears to be a period property that requires renovation. The kitchen and bathrooms especially look dated. The property includes a garden and some additional land with outbuildings. The average price in the area is £546,663, with an average price per sqft of £594. The listing price of £500,000 seems reasonable, especially considering the size of the property and the potential for renovation to add value.

Therefore, we give this property 6 / 10. *Disclaimer: This is our option and does constitute a recommendation or financial advice. Do your own research. *

Price
8
Condition
4
Location
7
Land
7
Bedrooms
6
Bathrooms
4

The heatmap indicates the level of crime in the area. The color of the heatmap indicates the crime severity and recency.

Metrics Year-on-Year

Average area value
546,663.00 £
Increased by 20.32 %
from 454,336.00 £
Average area rental value
2,315.00 £/mo
Increased by 58.13 %
from 1,464.00 £/mo
Est rental Yield
5.08 %
Increased by 31.27 %
from 3.87 %
Crime Rate
0.00 %
from 0.00 %

Agent Activity

  • McEwan Fraser Legal created the listing.

Images

MFL9247909_331.jpg MFL9247909_797.jpg MFL9247909_934.jpg MFL9247909_311.jpg MFL9247909_049.jpg MFL9247909_542.jpg MFL9247909_420.jpg MFL9247909_313.jpg MFL9247909_323.jpg MFL9247909_987.jpg MFL9247909_240.jpg MFL9247909_344.jpg MFL9247909_698.jpg MFL9247909_021.jpg MFL9247909_058.jpg MFL9247909_842.jpg MFL9247909_375.jpg MFL9247909_569.jpg MFL9247909_968.jpg MFL9247909_933.jpg MFL9247909_439.jpg MFL9247909_286.jpg MFL9247909_170.jpg MFL9247909_183.jpg MFL9247909_263.jpg MFL9247909_134.jpg MFL9247909_307.jpg

Nearby Streets

NameAverage PriceAverage SqftDistance
Ladywalk £ 250,00000.00 KM
North Marches £ 235,00000.00 KM
March Road £ 000.00 KM
Mayview Road £ 94,00000.00 KM
Chalmers Brae £ 359,00000.00 KM

Nearby Listings

AddressPriceTypeScoreDistance
Mayview House Lands O'barony, Ladywalk, Anstruther, KY10 3EX £ 500,000BUY6 / 100.00 KM
Peter Howling Place, Anstruther, KY10 £ 400,000BUY7 / 100.03 KM
Mayview Avenue, Anstruther, Fife, KY10 £ 235,000BUY6 / 100.17 KM
March Road, Anstruther, KY10 £ 325,000BUYUnknown0.18 KM
Peter Howling Place, Anstruther, KY10 £ 170,000BUY7 / 100.18 KM