MADE says ..
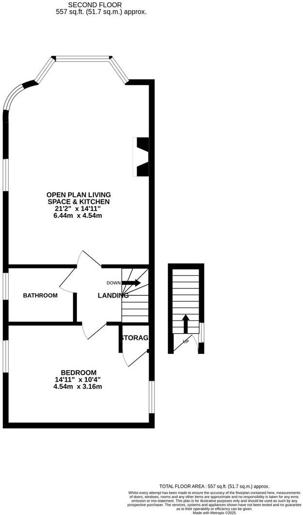
A beautifully presented ONE BEDROOM APARTMENT with SEA VIEWS enviably positioned in a CENTRAL ST LEONARDS location. It's close by to Gensing Gardens and just a short stroll into the hub of St. Leonards where there is a mainline railway station, local shops and award winning eateries, making it pe...
Property Oracle says ..
This is a one-bedroom flat located on London Road in Central St Leonards. The property is in generally good condition, with a modern kitchen and bathroom. It benefits from its proximity to local amenities, transportation links, and schools. The flat is competitively priced compared to the average price per square foot in the area. While it lacks a garden, its location and condition make it an attractive option for first-time buyers or investors.
Therefore, we give this property 6 / 10. *Disclaimer: This is our option and does constitute a recommendation or financial advice. Do your own research. *
- Price
- 8
- Condition
- 7
- Location
- 7
- Land
- 3
- Bedrooms
- 1
- Bathrooms
- 1
- Sqft (est)
- 557.00
The heatmap indicates the level of crime in the area. The color of the heatmap indicates the crime severity and recency.
Metrics Year-on-Year
- Average area value
- 225,325.00 £Decreased by 9.99 %
- Est sale value
- 220,015.00 £Increased by 32.55 %
- Average area rental value
- 1,094.00 £/moIncreased by 7.25 %
- Est letting value
- 557.00 £/moUnchanged by 0.00 %
- Est rental Yield
- 5.83 %Increased by 19.22 %
- Crime Rate
- 46.00 %Unchanged by 0.00 %
Agent Activity
MADE created the listing.
Nearby Schools
| Name | Type | Ofsted | Distance |
|---|---|---|---|
| Lansdowne Children'S Centre | Secure Units | 0.25 KM | |
| St Leonards Children'S Centre | Children's Centre | 0.35 KM | |
| St Mary Star Of The Sea Catholic Primary School | Voluntary Aided School | Good | 0.78 KM |
| Christ Church Cofe Primary And Nursery Academy | Academy Converter | Good | 1.01 KM |
| St Paul'S Church Of England Academy | Academy Converter | Good | 1.19 KM |
Images
Nearby Streets
| Name | Average Price | Average Sqft | Distance |
|---|---|---|---|
| Station Approach | £ 430,000 | 0 | 0.00 KM |
| Saint John's Road | £ 0 | 0 | 0.00 KM |
| The Uplands | £ 400,000 | 0 | 0.00 KM |
| Archery Villas | £ 0 | 0 | 0.00 KM |
| The Cloisters | £ 0 | 0 | 0.00 KM |
Nearby Transport
| Name | NLC | TLC | Distance |
|---|---|---|---|
| St Leonards Warrior Square | 5239 | SLQ | 0.31 KM |
| Hastings | 5219 | HGS | 1.94 KM |
| West St Leonards | 5242 | WLD | 2.21 KM |
| Ore | 5021 | ORE | 3.83 KM |
| Crowhurst | 5233 | CWU | 7.59 KM |
Nearby Listings
| Address | Price | Type | Score | Distance |
|---|---|---|---|---|
| London Road, St. Leonards-On-Sea | £ 175,000 | BUY | 6 / 10 | 0.00 KM |
| North Street, St. Leonards-On-Sea | £ 220,000 | BUY | 3 / 10 | 0.03 KM |
| North Street, St. Leonards-On-Sea | £ 380,000 | BUY | Unknown | 0.03 KM |
| London Road, St. Leonards-On-Sea | £ 500,000 | BUY | 6 / 10 | 0.05 KM |
| North Street, St. Leonards-On-Sea | £ 325,000 | BUY | 6 / 10 | 0.06 KM |
Nearby Properties
| Address | Price | Distance |
|---|---|---|
| 40a London Road | £ 186,000 | 0.02 KM |
| 34b London Road | £ 152,000 | 0.02 KM |
| 34a London Road | £ 89,950 | 0.02 KM |
| 44a London Road | £ 32,000 | 0.03 KM |
| 41a London Road | £ 58,000 | 0.04 KM |