Dart & Partners says ..
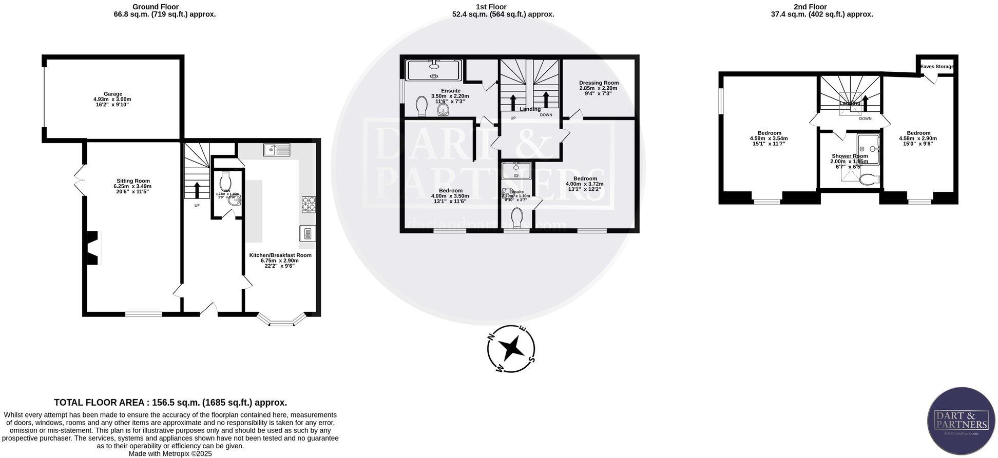
A well-presented three storey townhouse style property set within an award winning, near-waterside development and offered to the market with no onward chain. Sitting room, kitchen/dining room with integrated appliances, four good-sized bedrooms (two with en-suite shower rooms and one with a dres...
Property Oracle says ..
The property is located in the desirable coastal village of Shaldon, Devon, offering a charming and relaxed lifestyle. Its proximity to Teignmouth provides access to additional amenities and transport links. The property itself is in excellent condition, well-maintained, and recently renovated. The images show a modern interior and exterior, with a small garden. While the list price is slightly above the area average, it is justified by the property’s superior condition, size, and desirable location. Comparable properties in the area support this assessment.
Therefore, we give this property 8 / 10. *Disclaimer: This is our option and does constitute a recommendation or financial advice. Do your own research. *
- Price
- 8
- Condition
- 9
- Location
- 9
- Land
- 6
- Bedrooms
- 4
- Bathrooms
- 3
- Sqft (est)
- 1,263.79
- Lot (est)
- 1,684.55
The heatmap indicates the level of crime in the area. The color of the heatmap indicates the crime severity and recency.
Metrics Year-on-Year
- Average area value
- 305,488.00 £Decreased by 9.52 %
- Est sale value
- 444,854.08 £Increased by 33.84 %
- Average area rental value
- 1,004.00 £/moDecreased by 1.08 %
- Est letting value
- 1,263.79 £/mo
- Est rental Yield
- 3.94 %Increased by 9.14 %
- Crime Rate
- 3.00 %Unchanged by 0.00 %
Agent Activity
Dart & Partners created the listing.
Nearby Schools
| Name | Type | Ofsted | Distance |
|---|---|---|---|
| Shaldon Primary School | Academy Converter | 0.22 KM | |
| Teignmouth Children'S Centre | Children's Centre | 0.74 KM | |
| Dawlish Children'S Centre | Children's Centre | 0.74 KM | |
| Our Lady And St Patrick'S Roman Catholic Primary School | Academy Sponsor Led | Good | 1.11 KM |
| Teignmouth Community School, Mill Lane | Academy Converter | Good | 1.37 KM |
Images
Nearby Streets
| Name | Average Price | Average Sqft | Distance |
|---|---|---|---|
| The Embankment | £ 0 | 0 | 0.00 KM |
| Oystercatcher Court | £ 0 | 0 | 0.00 KM |
| Home Yards | £ 420,000 | 0 | 0.00 KM |
| Milford Close | £ 575,000 | 0 | 0.00 KM |
| Brook Lane | £ 865,000 | 0 | 0.00 KM |
Nearby Transport
| Name | NLC | TLC | Distance |
|---|---|---|---|
| Teignmouth | 3430 | TGM | 1.92 KM |
| Dawlish | 3408 | DWL | 6.71 KM |
| Torre | 3432 | TRR | 8.57 KM |
| Torquay | 3434 | TQY | 9.65 KM |
| Dawlish Warren | 3409 | DWW | 9.77 KM |
Nearby Listings
| Address | Price | Type | Score | Distance |
|---|---|---|---|---|
| Shoreside, Shaldon, TQ14 | £ 525,000 | BUY | 8 / 10 | 0.00 KM |
| Shoreside, Shaldon, Teignmouth, Devon | £ 500,000 | BUY | 6 / 10 | 0.01 KM |
| Shoreside, Shaldon, Devon | £ 475,000 | BUY | 6 / 10 | 0.01 KM |
| Shoreside, Shaldon, Teignmouth | £ 725,000 | BUY | 8 / 10 | 0.02 KM |
| Shoreside, Shaldon, Devon | £ 525,000 | BUY | Unknown | 0.04 KM |
Nearby Properties
| Address | Price | Distance |
|---|---|---|
| 19 Shoreside | £ 630,000 | 0.03 KM |
| 38 Shoreside | £ 480,000 | 0.03 KM |
| 31 Shoreside | £ 355,000 | 0.03 KM |
| 8 Shoreside | £ 445,000 | 0.03 KM |
| 9 Shoreside | £ 455,000 | 0.03 KM |