MC
Castleton Road, Oldham, OL2
By McGowan Housing
£ 500,000
Reviews
2 out of 5 stars
McGowan Housing says ..
Multi-Unit Property | Currently Vacant | Investment Opportunity | Block of 2 Flats | Well-Maintained Property | Modern Kitchen & Bathroom | Multiple Bathrooms | Town Location - Perfect for Renters!
Property Oracle says ..
A five-bedroom block of apartments located on Castleton Road, Oldham. The property is located near local schools and transportation. The property has some garden space.
Therefore, we give this property 5 / 10. *Disclaimer: This is our option and does constitute a recommendation or financial advice. Do your own research. *
- Price
- 4
- Condition
- 6
- Location
- 7
- Land
- 5
- Bedrooms
- 5
- Bathrooms
- 2
- Sqft (est)
- 801.22
The heatmap indicates the level of crime in the area. The color of the heatmap indicates the crime severity and recency.
Metrics Year-on-Year
- Average area value
- 320,980.00 £Increased by 16.50 %
- Est sale value
- 296,451.40 £Increased by 35.53 %
- Average area rental value
- 848.00 £/moDecreased by 17.19 %
- Est letting value
- 0.00 £/moDecreased by 100.00 %
- Est rental Yield
- 3.17 %Decreased by 28.92 %
- Crime Rate
- 0.00 %
from 275,512.00 £
from 218,733.06 £
from 1,024.00 £/mo
from 801.22 £/mo
from 4.46 %
from 0.00 %
Agent Activity
McGowan Housing created the listing.
Nearby Schools
| Name | Type | Ofsted | Distance |
|---|---|---|---|
| Thornham St James Cofe Primary School | Voluntary Controlled School | Good | 0.20 KM |
| Fir Bank Primary School | Academy Converter | 0.86 KM | |
| St Cuthbert'S Rc High School | Voluntary Aided School | Requires improvement | 1.11 KM |
| Thorp Primary School | Academy Converter | 1.60 KM | |
| St Mary'S Cofe Primary School High Crompton | Voluntary Aided School | Good | 2.28 KM |
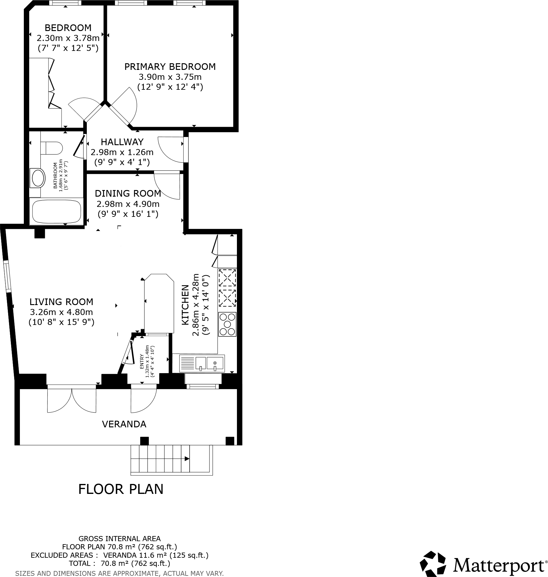
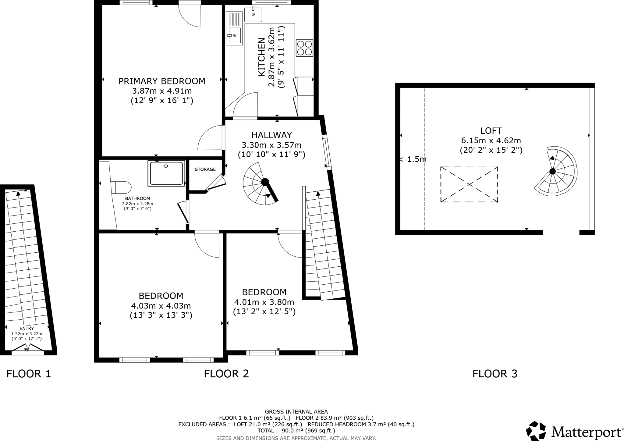
Images
Nearby Streets
| Name | Average Price | Average Sqft | Distance |
|---|---|---|---|
| Dean Bank Drive | £ 0 | 0 | 0.00 KM |
| Grasmere Road | £ 0 | 0 | 0.00 KM |
| Elmwood Drive | £ 0 | 0 | 0.00 KM |
| Bishopdale Close | £ 0 | 0 | 0.00 KM |
| All Saint's Close | £ 165,000 | 0 | 0.00 KM |
Nearby Transport
| Name | NLC | TLC | Distance |
|---|---|---|---|
| Rochdale | 2924 | RCD | 3.83 KM |
| Castleton (Manchester) | 2919 | CAS | 5.23 KM |
| Mills Hill (Manchester) | 2920 | MIH | 5.68 KM |
| Smithy Bridge | 2660 | SMB | 5.88 KM |
| Littleborough | 2661 | LTL | 7.78 KM |
Nearby Listings
| Address | Price | Type | Score | Distance |
|---|---|---|---|---|
| Castleton Road, Oldham, OL2 | £ 500,000 | BUY | 5 / 10 | 0.00 KM |
| Castleton Road, Thornham, Royton, Oldham, OL2 | £ 525,000 | BUY | 7 / 10 | 0.11 KM |
| SPRINGFIELD LANE, Royton OL2 6XW | £ 220,000 | BUY | 7 / 10 | 0.13 KM |
| Lindale Avenue, Thornham, Royton, Oldham, OL2 | £ 285,000 | BUY | 6 / 10 | 0.16 KM |
| 25 Lindale Avenue, Royton, Oldham, OL2 6UU | £ 330,000 | BUY | 7 / 10 | 0.16 KM |
Nearby Properties
| Address | Price | Distance |
|---|---|---|
| 129 Castleton Road | £ 107,000 | 0.00 KM |
| 133 Castleton Road | £ 130,000 | 0.00 KM |
| 178 Castleton Road | £ 395,000 | 0.00 KM |
| 182 Castleton Road | £ 462,500 | 0.00 KM |
| 143 Castleton Road | £ 117,000 | 0.00 KM |