Ashurst Drive, Box Hill
SE

Ashurst Drive, Box Hill

By Seymours

£ 899,950

Reviews

3 out of 5 stars

Seymours says ..

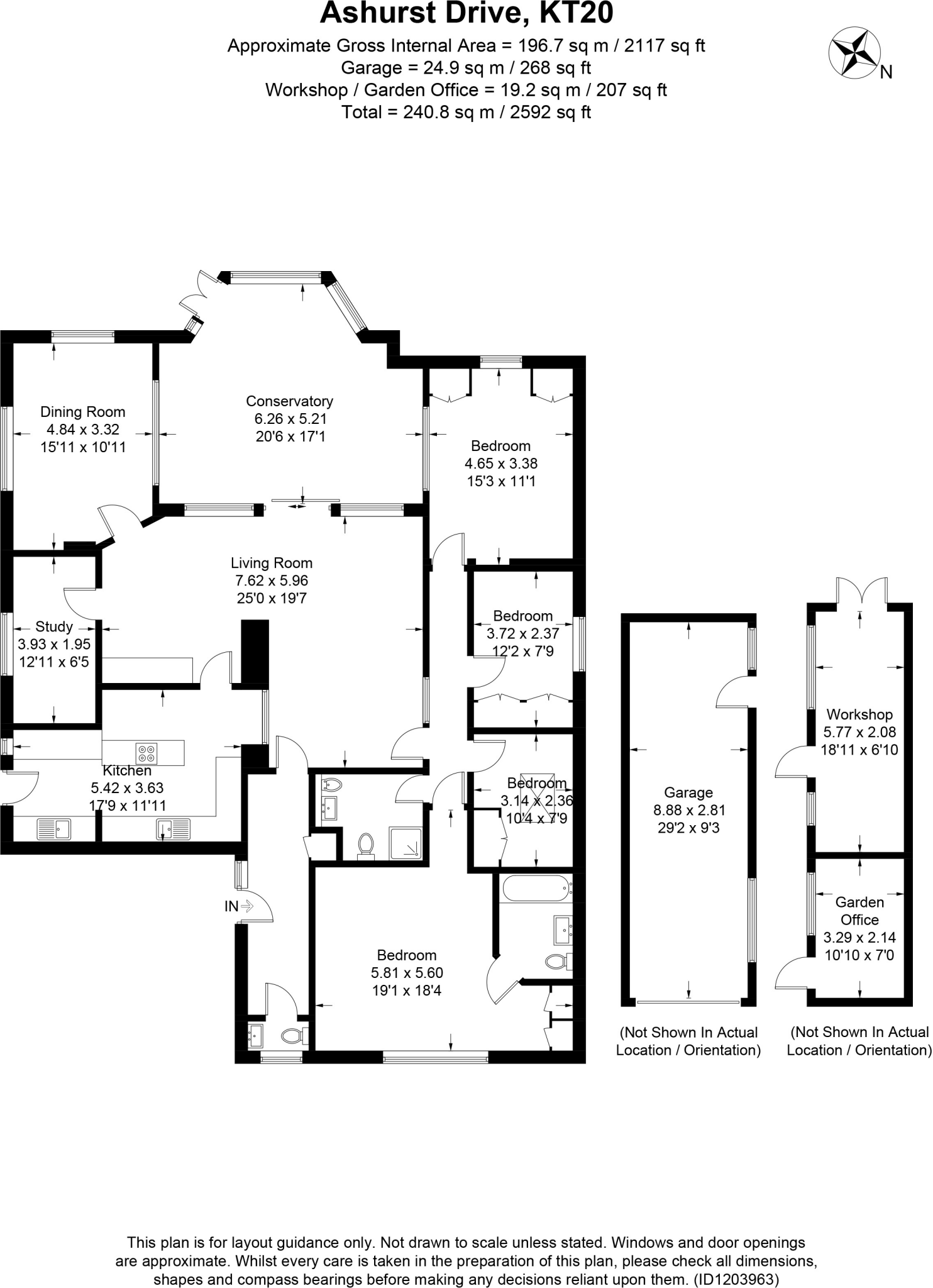
A substantial, detached 4-bedroom bungalow set within a large plot and presenting a fantastic opportunity for buyers seeking generous, flexible living spaces and the opportunity for modernisation and extending (STPP). Nestled in a quiet, semi-rural position at the top of Box Hill, an Area of Out...

Property Oracle says ..

This detached bungalow in Box Hill presents a unique opportunity. While the property requires significant renovation, it benefits from a generous plot size and a desirable location. The interior features dated decor and signs of wear, offering a blank canvas for modernization. The large garden and garage are attractive features. The property is located close to local schools and transportation links. The price reflects the potential for improvement and the value of the land.

Therefore, we give this property 6 / 10. *Disclaimer: This is our option and does constitute a recommendation or financial advice. Do your own research. *

Price
6
Condition
4
Location
7
Land
8
Bedrooms
4
Bathrooms
2
Sqft (est)
2,117.26

The heatmap indicates the level of crime in the area. The color of the heatmap indicates the crime severity and recency.

Metrics Year-on-Year

Average area value
342,500.00 £
Increased by 6.71 %
from 320,966.00 £
Est sale value
664,819.64 £
Decreased by 13.02 %
from 764,330.86 £
Average area rental value
950.00 £/mo
Decreased by 9.09 %
from 1,045.00 £/mo
Est letting value
0.00 £/mo
Decreased by 100.00 %
from 2,117.26 £/mo
Est rental Yield
3.33 %
Decreased by 14.83 %
from 3.91 %
Crime Rate
62.00 %
Unchanged by 0.00 %
from 62.00 %

Agent Activity

  • Seymours created the listing.

Nearby Schools

NameTypeOfstedDistance
Papillon HouseOther Independent Special SchoolOutstanding2.41 KM
Betchworth & Buckland Sure Start Children'S CentreChildren's Centre Linked Site2.56 KM
North Downs Primary SchoolCommunity SchoolGood2.57 KM
St Michael'S Cofe Aided Infant SchoolVoluntary Aided SchoolGood4.36 KM
Eagle House School (Bramley)Other Independent Special School4.71 KM

Images

DSC00471 DSC00491 DSC00490 DSC00465 DSC00497 DSC00492 DSC00469 DSC00487 DSC00485 DSC00463 DSC00459 DSC00503 DSC00503 DSC00471 DSC00491 DSC00466 DSC00482 DSC00490 DSC00494 DSC00480 DSC00465 DSC00463 DSC00468 DSC00459 DSC00488 DSC00487 DSC00485 DSC00492 DSC00483 DSC00469 DSC00493 DSC00495 DSC00497 DSC00477

Nearby Streets

NameAverage PriceAverage SqftDistance
Holly Hough £ 000.00 KM
Devonshire Avenue £ 000.00 KM
Beech Crescent £ 000.00 KM
Chalkpit Lane £ 585,00000.00 KM
FP 583 £ 000.00 KM

Nearby Transport

NameNLCTLCDistance
Betchworth5472BTO2.02 KM
Dorking5357DKG4.67 KM
Dorking (Deepdene)5412DPD4.79 KM
Box Hill And Westhumble5403BXW4.90 KM
Dorking West5297DKT6.49 KM

Nearby Listings

AddressPriceTypeScoreDistance
Ashurst Drive, Box Hill £ 899,950BUY6 / 100.00 KM
Surrey Hills Residential Park, Boxhill Road, Tadworth, Surrey, KT20 £ 290,000BUY7 / 100.26 KM
Surrey Hills Residential Park, Boxhill Road, Tadworth, Surrey, KT20 £ 199,950BUYUnknown0.26 KM
Surrey Hills Residential Park, Boxhill Road, Tadworth, Surrey, KT20 £ 310,000BUY7 / 100.26 KM
Boxhill Road, Tadworth £ 1,050,000BUY7 / 100.26 KM

Nearby Properties

AddressPriceDistance
Woodcote £ 767,5000.15 KM
East Lodge £ 490,0000.21 KM
Yew Tree Hollow £ 780,0000.26 KM
The Stables £ 1,170,0000.26 KM
Little Whispers £ 900,0000.26 KM