eXp UK says ..
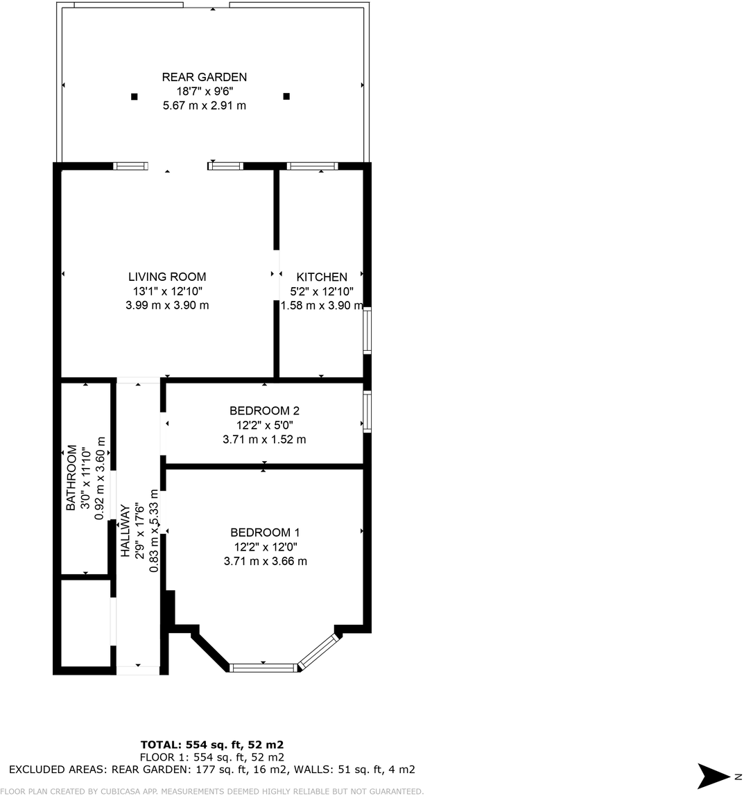
This fantastic two bedroomed period garden flat, with private patio, has recently undergone a light refurbishment and is offered to market chain-free.
Property Oracle says ..
Therefore, we give this property 7 / 10. *Disclaimer: This is our option and does constitute a recommendation or financial advice. Do your own research. *
- Price
- 8
- Condition
- 8
- Location
- 7
- Land
- 7
- Bedrooms
- 2
- Bathrooms
- 1
- Sqft (est)
- 554.00
The heatmap indicates the level of crime in the area. The color of the heatmap indicates the crime severity and recency.
Metrics Year-on-Year
- Average area value
- 569,167.00 £Increased by 19.48 %
- Est sale value
- 337,386.00 £Increased by 8.17 %
- Average area rental value
- 1,814.00 £/moIncreased by 1.06 %
- Est letting value
- 554.00 £/moDecreased by 50.00 %
- Est rental Yield
- 3.82 %Decreased by 15.49 %
- Crime Rate
- 5.00 %Unchanged by 0.00 %
from 476,380.00 £
from 311,902.00 £
from 1,795.00 £/mo
from 1,108.00 £/mo
from 4.52 %
from 5.00 %
Agent Activity
eXp UK created the listing.
Nearby Schools
| Name | Type | Ofsted | Distance |
|---|---|---|---|
| Leigh Academy Blackheath | Free Schools | 0.27 KM | |
| Cherry Orchard Primary School | Community School | Good | 0.58 KM |
| Sherington Primary School | Community School | Outstanding | 0.65 KM |
| Sherington Primary School And Children'S Centre | Children's Centre | 0.70 KM | |
| Our Lady Of Grace Catholic Primary School | Voluntary Aided School | Outstanding | 0.70 KM |
Images
Nearby Streets
| Name | Average Price | Average Sqft | Distance |
|---|---|---|---|
| A102 | £ 1,700,000 | 0 | 0.00 KM |
| Bowater Place | £ 0 | 0 | 0.00 KM |
| Reynolds Place | £ 950,000 | 0 | 0.00 KM |
| Rochester Way | £ 1,000,000 | 0 | 0.00 KM |
| Old Dover Road | £ 0 | 0 | 0.00 KM |
Nearby Transport
| Name | NLC | TLC | Distance |
|---|---|---|---|
| Kidbrooke | 5108 | KDB | 1.38 KM |
| Charlton | 5144 | CTN | 1.45 KM |
| Westcombe Park | 5151 | WCB | 1.46 KM |
| Blackheath | 5095 | BKH | 2.25 KM |
| Maze Hill | 5149 | MZH | 2.84 KM |
Nearby Listings
| Address | Price | Type | Score | Distance |
|---|---|---|---|---|
| Eastbrook Road, London, SE3 | £ 325,000 | BUY | 7 / 10 | 0.00 KM |
| Woodville Close, SE3 | £ 450,000 | BUY | 7 / 10 | 0.10 KM |
| Shooters Hill Road, Blackheath, London, SE3 | £ 1,300,000 | BUY | Unknown | 0.11 KM |
| Shooters Hill Road, Blackheath, London, SE3 | £ 1,250,000 | BUY | 8 / 10 | 0.11 KM |
| Shooters Hill Road, Blackheath, London, SE3 | £ 475,000 | BUY | 7 / 10 | 0.11 KM |
Nearby Properties
| Address | Price | Distance |
|---|---|---|
| 8b East Brook Road | £ 325,000 | 0.01 KM |
| 6 East Brook Road | £ 1,423,040 | 0.01 KM |
| 12 East Brook Road | £ 1,380,000 | 0.01 KM |
| 9 East Brook Road | £ 700,000 | 0.01 KM |
| 10 East Brook Road | £ 930,000 | 0.01 KM |