Wilson Close, Weldon, Ebbsfleet Valley, Swanscombe, DA10
By Robinson Jackson
£ 290,000
Reviews
3 out of 5 stars
Robinson Jackson says ..
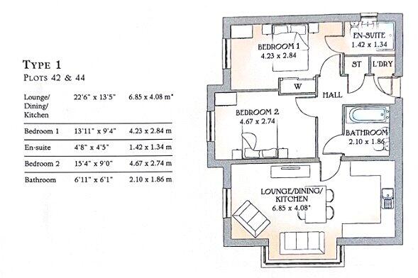
Robinson-Jackson are delighted to present this spacious ground-floor apartment located on Wilson Close in Ebbsfleet Valley. Featuring two generously sized double bedrooms, both accessible from the main entrance hall, and a stylish family bathroom, this home offers comfort and convenien...
Property Oracle says ..
This property is a two bedroom, two bathroom flat located in Ebbsfleet, Kent. The property is modern and well maintained, with a small garden. The location is convenient, with good access to transport links and local amenities. However, the average property price in the area is significantly higher than the list price of this property. This suggests that the property may be undervalued, making it potentially good value for money. More information on the plot size would improve the accuracy of this analysis.
Therefore, we give this property 6 / 10. *Disclaimer: This is our option and does constitute a recommendation or financial advice. Do your own research. *
- Price
- 8
- Condition
- 9
- Location
- 7
- Land
- 3
- Bedrooms
- 2
- Bathrooms
- 2
- Sqft (est)
- 631.84
The heatmap indicates the level of crime in the area. The color of the heatmap indicates the crime severity and recency.
Metrics Year-on-Year
- Average area value
- 333,285.00 £Decreased by 9.11 %
- Est sale value
- 243,258.40 £Decreased by 16.12 %
- Average area rental value
- 1,531.00 £/moDecreased by 16.61 %
- Est letting value
- 631.84 £/moDecreased by 50.00 %
- Est rental Yield
- 5.51 %Decreased by 8.32 %
- Crime Rate
- 20.00 %Unchanged by 0.00 %
Agent Activity
Robinson Jackson created the listing.
Nearby Schools
| Name | Type | Ofsted | Distance |
|---|---|---|---|
| The Ebbsfleet Academy | Academy Sponsor Led | Good | 0.88 KM |
| Manor Community Primary School | Academy Converter | Good | 1.08 KM |
| Swanscombe Children'S Centre | Children's Centre | 1.08 KM | |
| Cherry Orchard Primary Academy | Academy Sponsor Led | 1.19 KM | |
| Springhead Park Primary School | Free Schools | 1.58 KM |
Images
Nearby Streets
| Name | Average Price | Average Sqft | Distance |
|---|---|---|---|
| Wilson Close | £ 0 | 0 | 0.00 KM |
| Owen Close | £ 625,000 | 0 | 0.00 KM |
| Swanton House | £ 275,500 | 0 | 0.00 KM |
| Rixson Road | £ 0 | 0 | 0.00 KM |
| Village Green | £ 0 | 0 | 0.00 KM |
Nearby Transport
| Name | NLC | TLC | Distance |
|---|---|---|---|
| Ebbsfleet International | 5566 | EBD | 1.17 KM |
| Northfleet | 5120 | NFL | 1.65 KM |
| Swanscombe | 5156 | SWM | 1.79 KM |
| Greenhithe For Bluewater | 5138 | GNH | 4.29 KM |
| Longfield | 5114 | LGF | 4.53 KM |
Nearby Listings
| Address | Price | Type | Score | Distance |
|---|---|---|---|---|
| Wilson Close, Weldon, Ebbsfleet Valley, Swanscombe, DA10 | £ 290,000 | BUY | 6 / 10 | 0.00 KM |
| Hildefirth Close, Weldon, Ebbsfleet Valley, Swanscombe, DA10 | £ 450,000 | BUY | Unknown | 0.04 KM |
| Hildefirth Close, Weldon, Ebbsfleet Valley, Swanscombe, DA10 | £ 260,000 | BUY | 6 / 10 | 0.04 KM |
| Hildefirth Close, Weldon, Ebbsfleet Valley, Swanscombe, DA10 | £ 280,000 | BUY | 6 / 10 | 0.04 KM |
| Hildefirth Close, Ebbsfleet Valley, Swanscombe, Kent, DA10 1AU | £ 260,000 | BUY | 6 / 10 | 0.05 KM |
Nearby Properties
| Address | Price | Distance |
|---|---|---|
| 7 Candy Dene | £ 345,000 | 0.27 KM |
| 22 Candy Dene | £ 398,995 | 0.27 KM |
| 3 Candy Dene | £ 358,995 | 0.27 KM |
| 4 Candy Dene | £ 359,995 | 0.27 KM |
| 110 Lett Lane | £ 213,000 | 0.51 KM |