Summer Street, Slip End, Luton, LU1
By Ashtons
£ 350,000
Reviews
3 out of 5 stars
Ashtons says ..
Delightful three bedroom home with attractive south west facing rear garden, located in Slip End village close to amenities.
Property Oracle says ..
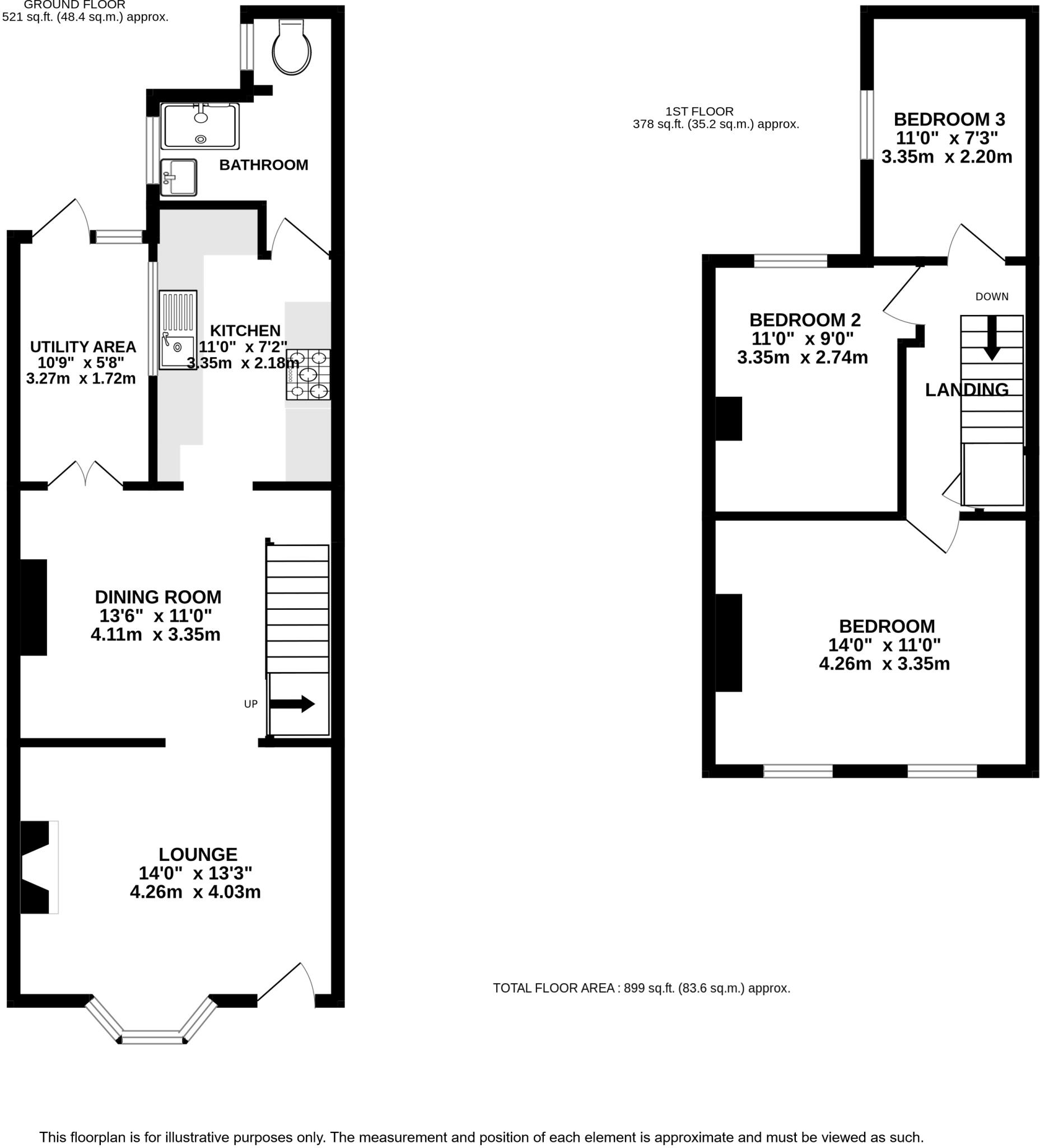
This three-bedroom end-of-terrace house in Slip End, Luton, is listed at £350,000. The property’s location in Slip End offers a balance between village life and convenient access to Luton and its amenities. The nearby Slip End Village School, rated ‘Good’ by Ofsted, is a significant advantage for families. Luton and Luton Airport Parkway train stations offer good transport links, although the exact commute times aren’t detailed.
The property appears well-maintained and presented from the provided photos. The interior is tastefully decorated and shows signs of recent renovations or upgrades to the kitchen and bathroom. The garden, though not expansive, provides outdoor space.
Given the location, apparent condition, and included garden, the listing price of £350,000 seems within the reasonable range for similar properties in the area. However, a more precise comparison is difficult without accurate square footage information for both the subject property and nearby comparable listings. The absence of plot size information further hinders a definitive analysis of the property’s value. The nearby streets provide some reference points with average prices, but without specific square footage data, a complete picture of value is impossible to form.
Therefore, we give this property 6 / 10. *Disclaimer: This is our option and does constitute a recommendation or financial advice. Do your own research. *
- Price
- 7
- Condition
- 7
- Location
- 7
- Land
- 4
- Bedrooms
- 3
- Bathrooms
- 1
- Sqft (est)
- 899.86
The heatmap indicates the level of crime in the area. The color of the heatmap indicates the crime severity and recency.
Metrics Year-on-Year
- Average area value
- 443,750.00 £Decreased by 18.92 %
- Est sale value
- 467,027.34 £Increased by 40.65 %
- Average area rental value
- 1,293.00 £/moDecreased by 31.77 %
- Est letting value
- 899.86 £/moUnchanged by 0.00 %
- Est rental Yield
- 3.50 %Decreased by 15.87 %
- Crime Rate
- 17.00 %Unchanged by 0.00 %
Agent Activity
Ashtons marked this listing as sold.
Ashtons created the listing.
Nearby Schools
| Name | Type | Ofsted | Distance |
|---|---|---|---|
| Slip End Village School | Community School | Good | 0.45 KM |
| The Stockwood Park Academy | Academy Sponsor Led | Requires improvement | 1.67 KM |
| Farley Junior Academy | Academy Converter | 1.99 KM | |
| St Margaret Of Scotland Catholic Primary School | Academy Converter | Requires improvement | 2.01 KM |
| Hillborough Junior School | Community School | Outstanding | 2.13 KM |
Images
Nearby Streets
| Name | Average Price | Average Sqft | Distance |
|---|---|---|---|
| The Oaks | £ 0 | 0 | 0.00 KM |
| Saint Andrews Close | £ 400,000 | 0 | 0.00 KM |
| M1 | £ 0 | 0 | 0.00 KM |
| Gorse Road | £ 0 | 0 | 0.00 KM |
| Lawn Path | £ 0 | 0 | 0.00 KM |
Nearby Transport
| Name | NLC | TLC | Distance |
|---|---|---|---|
| Luton | 1536 | LUT | 3.62 KM |
| Luton Airport Parkway | 3645 | LTN | 4.43 KM |
| Leagrave | 1534 | LEA | 6.32 KM |
| Harpenden | 1543 | HPD | 9.96 KM |
Nearby Listings
| Address | Price | Type | Score | Distance |
|---|---|---|---|---|
| Summer Street, Slip End, Luton, LU1 | £ 350,000 | BUY | 6 / 10 | 0.00 KM |
| Summer Street, Slip End, Luton, LU1 | £ 425,000 | BUY | Unknown | 0.07 KM |
| The Orchard, Slip End, Luton | £ 550,000 | BUY | 6 / 10 | 0.07 KM |
| Church Road, Slip End, LU1 | £ 335,000 | BUY | 6 / 10 | 0.08 KM |
| Church Road, Slip End, LU1 | £ 290,000 | BUY | 7 / 10 | 0.08 KM |
Nearby Properties
| Address | Price | Distance |
|---|---|---|
| 5 The Orchard | £ 55,000 | 0.07 KM |
| 2 The Orchard | £ 345,000 | 0.07 KM |
| 3 The Orchard | £ 302,500 | 0.07 KM |
| 4 The Orchard | £ 465,000 | 0.07 KM |
| 44 Church Road | £ 207,000 | 0.08 KM |