Main Street, Sutton On Derwent, York YO41 4BT
HU

Main Street, Sutton On Derwent, York YO41 4BT

By Hudson Moody

£ 950,000

Reviews

3 out of 5 stars

Hudson Moody says ..

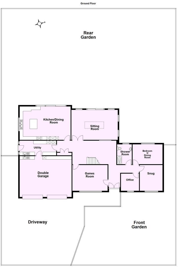
A WONDERFUL FAMILY SIZED PROPERTY including glorious OPEN COUNTRYSIDE VIEWS, located on the edge of a highly regarded village to the southeast of York. 4049ft2 including Integral double garage.

Property Oracle says ..

This detached property on Main Street in Sutton On Derwent presents a fantastic opportunity for buyers seeking a spacious family home in a desirable village location. The house features four bedrooms and three bathrooms, offering ample space for a growing family. The modern interiors, well-maintained garden, and convenient amenities such as a garage and utility room enhance its appeal. The property’s location in Sutton On Derwent provides a balance of rural tranquility and accessibility to nearby towns and cities. The house is in good condition, with modern fixtures and fittings throughout. The large garden is a standout feature, providing plenty of outdoor space for recreation and relaxation. While the price is higher than the local average, the property’s size, condition, and desirable location justify the premium.

Therefore, we give this property 7 / 10. *Disclaimer: This is our option and does constitute a recommendation or financial advice. Do your own research. *

Price
6
Condition
8
Location
7
Land
9
Bedrooms
4
Bathrooms
3
Sqft (est)
2,406.80
Lot (est)
4,049.90

The heatmap indicates the level of crime in the area. The color of the heatmap indicates the crime severity and recency.

Metrics Year-on-Year

Average area value
308,831.00 £
Decreased by 8.78 %
from 338,547.00 £
Est sale value
642,615.60 £
Decreased by 18.84 %
from 791,837.20 £
Average area rental value
1,274.00 £/mo
Increased by 16.24 %
from 1,096.00 £/mo
Est letting value
2,406.80 £/mo
Unchanged by 0.00 %
from 2,406.80 £/mo
Est rental Yield
4.95 %
Increased by 27.58 %
from 3.88 %
Crime Rate
0.00 %
from 0.00 %

Agent Activity

  • Hudson Moody created the listing.

Nearby Schools

NameTypeOfstedDistance
Sutton Upon Derwent Church Of England Voluntary Controlled Primary SchoolVoluntary Controlled SchoolGood0.79 KM
Elvington Church Of England Voluntary Controlled Primary SchoolVoluntary Controlled SchoolGood2.44 KM
Wheldrake With Thorganby Church Of England Primary SchoolAcademy Converter4.51 KM
Wilberfoss Church Of England Voluntary Controlled Primary SchoolVoluntary Controlled SchoolGood6.15 KM
Melbourne Community Primary SchoolAcademy Converter7.62 KM

Images

Games Room En-Suite Bedroom 2 Bedroom 3 Garden Garden Garden Living Room Living Room Kitchen Dining Room / Bedroom 5 Ground Floor Shower Room Landing Bedroom 1 View Entrance Hallway Living Room Living Room Kitchen Diner Kitchen Kitchen Kitchen Diner Utility Snug Bedroom 1 View Study En-suite Intgeral Double Garage House Bathroom House Bathroom Front Garden Garden Garden Patio Sun Patio 3D Floor Plan Bedroom 2

Nearby Streets

NameAverage PriceAverage SqftDistance
Wynam Lane £ 000.00 KM
Southwood Road £ 1,312,50000.00 KM
Sandhill Lane £ 1,000,00000.00 KM
Church Green £ 000.00 KM

Nearby Listings

AddressPriceTypeScoreDistance
Main Street, Sutton On Derwent, York YO41 4BT £ 950,000BUY7 / 100.00 KM
Main Street, Sutton On Derwent, York £ 200,000BUY7 / 100.15 KM
Main Street, Sutton On Derwent £ 375,000BUYUnknown0.17 KM
Main Street, Sutton on Derwent, York, YO41 4BT £ 785,000BUY7 / 100.20 KM
Derwent Park Close, Sutton On Derwent, York, YO41 4BQ £ 425,000BUY7 / 100.50 KM

Nearby Properties

AddressPriceDistance
Wisteria £ 390,0000.14 KM
Willow Garth £ 310,0000.14 KM
Derwent Stables £ 359,0000.14 KM
Swallow Barn £ 355,0000.14 KM
Peace Cottage £ 198,0000.14 KM