Ellis & Co says ..
Requiring full refurbishment, this three bedroom semi-detached house is in a pleasant and quiet cul-de-sac location within walking distance of Whitchurch Primary School & Nursery, Avanti House and Stanburn Primary Schools all of which have current “Good” Ofsted rating. ...
Property Oracle says ..
This three-bedroom semi-detached house in Stanmore, HA7, presents a mixed bag for potential buyers. The property’s location is a strong point, situated within easy reach of well-regarded schools and multiple underground stations, making it attractive to families. The proximity to local amenities and a pleasant, quiet cul-de-sac setting further enhance its appeal. However, the condition of the property significantly impacts its overall value. The images reveal a house that needs extensive renovation and modernisation, with outdated interior design and fittings throughout. The garden, while present, appears to need considerable work. The £650,000 asking price warrants careful consideration; while the area is sought after, the cost of bringing the property up to a modern standard should be factored into any potential offer. A thorough survey is crucial to assess any underlying structural issues before committing to a purchase. Ultimately, the property presents an opportunity for a buyer who is looking for a project and willing to invest time and money to restore it to its full potential. The lack of plot size information and the absence of price per square foot data for most comparable properties hinders a more precise financial analysis.
Therefore, we give this property 5 / 10. *Disclaimer: This is our option and does constitute a recommendation or financial advice. Do your own research. *
- Price
- 6
- Condition
- 4
- Location
- 7
- Land
- 5
- Bedrooms
- 3
- Bathrooms
- 1
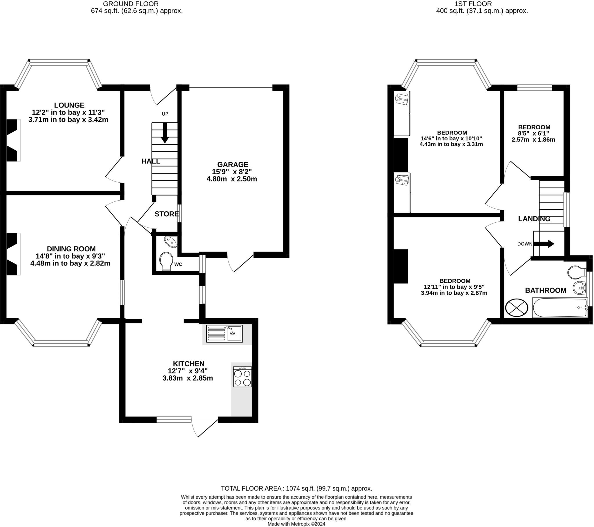
- Sqft (est)
- 1,074.00
The heatmap indicates the level of crime in the area. The color of the heatmap indicates the crime severity and recency.
Metrics Year-on-Year
- Average area value
- 426,436.00 £Decreased by 1.59 %
- Est sale value
- 516,594.00 £Increased by 21.77 %
- Average area rental value
- 1,587.00 £/moDecreased by 7.46 %
- Est letting value
- 1,074.00 £/moUnchanged by 0.00 %
- Est rental Yield
- 4.47 %Decreased by 5.89 %
- Crime Rate
- 3.00 %Unchanged by 0.00 %
Agent Activity
Ellis & Co marked this listing as sold.
Ellis & Co created the listing.
Nearby Schools
| Name | Type | Ofsted | Distance |
|---|---|---|---|
| Whitchurch Primary School & Nursery | Community School | Good | 0.37 KM |
| Avanti House School | Free Schools | Good | 0.39 KM |
| Stanburn Primary School | Community School | Good | 0.39 KM |
| Park High School | Academy Converter | Outstanding | 0.72 KM |
| Stanmore College | Further Education | Good | 1.02 KM |
Images
Nearby Streets
| Name | Average Price | Average Sqft | Distance |
|---|---|---|---|
| Alcuin Court | £ 0 | 0 | 0.00 KM |
| Peters Close | £ 654,875 | 0 | 0.00 KM |
| Marsh Lane | £ 0 | 0 | 0.00 KM |
| Clifton Avenue | £ 0 | 0 | 0.00 KM |
| Greenacres Drive | £ 0 | 0 | 0.00 KM |
Nearby Transport
| Name | NLC | TLC | Distance |
|---|---|---|---|
| Kenton | 1399 | KNT | 2.90 KM |
| Harrow And Wealdstone | 1397 | HRW | 3.52 KM |
| South Kenton | 1453 | SOK | 3.92 KM |
| Harrow-On-The-Hill | 598 | HOH | 4.55 KM |
| North Wembley | 1422 | NWB | 4.76 KM |
Nearby Listings
| Address | Price | Type | Score | Distance |
|---|---|---|---|---|
| Home Mead, Stanmore, HA7 | £ 750,000 | BUY | 7 / 10 | 0.00 KM |
| Bush Grove, Stanmore, HA7 | £ 950,000 | BUY | Unknown | 0.12 KM |
| Gyles Park, Stanmore, HA7 | £ 625,000 | BUY | Unknown | 0.12 KM |
| Bush Grove, Stanmore | £ 725,000 | BUY | 7 / 10 | 0.13 KM |
| Wemborough Road, Stanmore, Middlesex, HA7 | £ 650,000 | BUY | 6 / 10 | 0.14 KM |
Nearby Properties
| Address | Price | Distance |
|---|---|---|
| 11 Home Mead | £ 670,000 | 0.01 KM |
| 2 Home Mead | £ 370,000 | 0.01 KM |
| 16 Home Mead | £ 372,000 | 0.01 KM |
| 1 Home Mead | £ 360,000 | 0.01 KM |
| 5 Home Mead | £ 470,000 | 0.01 KM |