Harple Lane, Detling
MA

Harple Lane, Detling

By Martin & Co

£ 950,000

Reviews

4 out of 5 stars

Martin & Co says ..

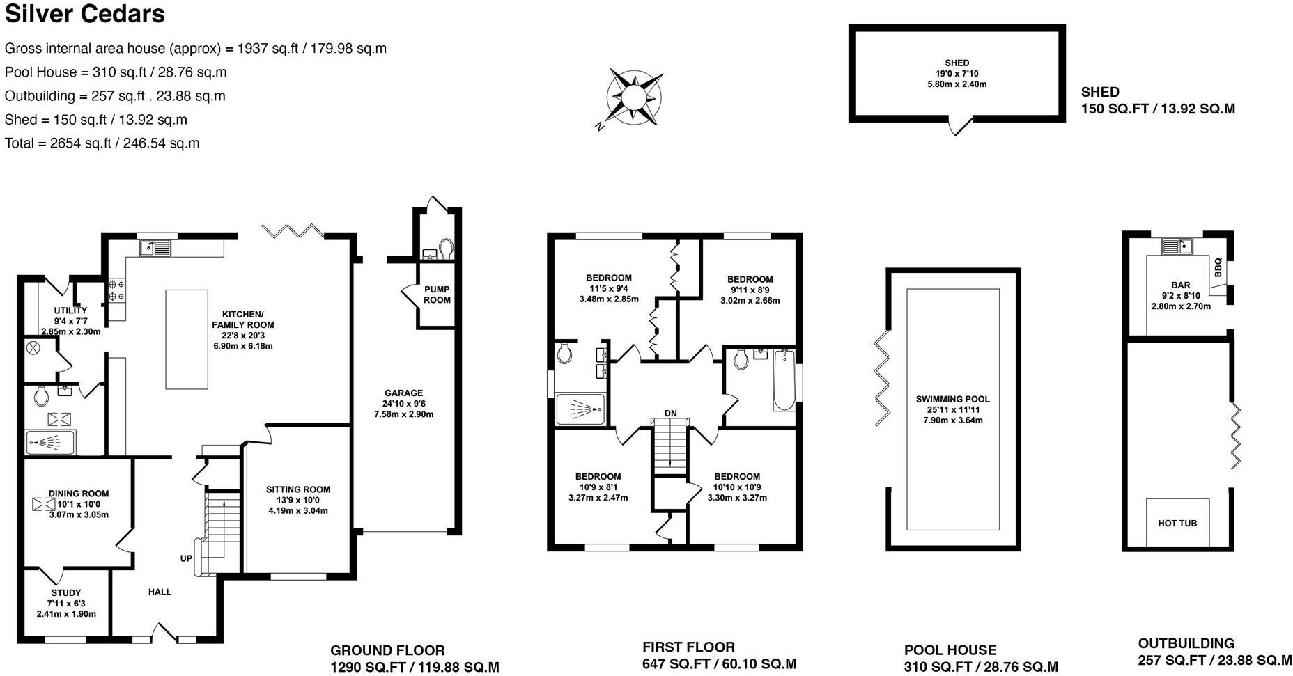
Thrilled to present this unique, immaculate recently renovated detached house for sale, chain free! This stunning property is nestled amidst green spaces, providing an excellent backdrop for a peaceful home. It is an ideal residence for families seeking comfort, convenience, with an added benefit...

Property Oracle says ..

Location: Detling is a village located close to Maidstone, a larger town with good transportation links and amenities. The property’s proximity to several Southeastern train stations (Bearsted, Maidstone East, Maidstone Barracks, Maidstone West, and Hollingbourne) provides convenient access to commuting routes. Furthermore, the presence of several well-regarded schools within a reasonable distance (e.g., Roseacre Junior School, Thurnham Church of England Infant School, Maidstone, St John’s Church of England Primary School) adds to the desirability of the location for families. The nearby streets, such as Pope’s Wood, suggest a high-value residential area.

Condition: The property appears to be in excellent condition based on the provided images. The interior is modern, recently renovated, and well-maintained. The kitchen and bathrooms are contemporary and high-quality, suggesting recent upgrades. The exterior also presents a well-maintained and modern aesthetic.

Land: The property includes a substantial garden, providing ample outdoor space. The presence of a children’s play area and outdoor entertaining spaces (including a pergola and outdoor kitchen) further enhances the appeal of the land.

Price: The list price of £950,000 is significantly higher than the average house price in the area (£621,053). However, this property is considerably larger (6,545 sqft compared to the average of 1,292 sqft) and boasts high-end finishes and extensive outdoor amenities, including a pool and hot tub. While the average price per sqft in the area is £480, this property’s unique features and substantial size justify a premium price. The nearby listing of a detached property for £1,500,000 also supports the higher price point, although a direct sqft comparison is not possible due to missing data in the nearby listings. Considering the property’s condition, location, and the size of the land, the list price, while high, appears relatively reasonable within the context of its unique features and the local market for larger, high-end properties.

Therefore, we give this property 8 / 10. *Disclaimer: This is our option and does constitute a recommendation or financial advice. Do your own research. *

Price
7
Condition
10
Location
9
Land
8
Bedrooms
4
Bathrooms
3
Sqft (est)
6,545.00
Lot (est)
2,654.00

The heatmap indicates the level of crime in the area. The color of the heatmap indicates the crime severity and recency.

Metrics Year-on-Year

Average area value
812,500.00 £
Increased by 46.80 %
from 553,478.00 £
Est sale value
3,527,755.00 £
Increased by 8.67 %
from 3,246,320.00 £
Average area rental value
1,223.00 £/mo
Decreased by 43.04 %
from 2,147.00 £/mo
Est letting value
0.00 £/mo
Decreased by 100.00 %
from 6,545.00 £/mo
Est rental Yield
1.81 %
Decreased by 61.08 %
from 4.65 %
Crime Rate
4.00 %
Unchanged by 0.00 %
from 4.00 %

Agent Activity

  • Martin & Co created the listing.

Nearby Schools

NameTypeOfstedDistance
Bearsted Primary AcademyFree Schools1.72 KM
Snowfields AcademyFree Schools Special1.72 KM
Roseacre Junior SchoolFoundation SchoolOutstanding2.80 KM
Thurnham Church Of England Infant SchoolVoluntary Controlled SchoolOutstanding2.84 KM
Maidstone, St John'S Church Of England Primary SchoolAcademy ConverterOutstanding2.84 KM

Images

FRONT 2.jpg IMG_4181_pe.jpg Lounge.jpg Kitchen (5).jpg IMG_4157_pe.jpg Kitchen (4).jpg Kitchen (6).jpg Kitchen (2).jpg Kitchen.jpg Kitchen (3).jpg Dining (2).jpg Dining.jpg Sitting (2).jpg Hall 2.jpg Landing.jpg Bedroom (2).jpg Bedroom (6)_pe.jpg IMG_4150_pe.jpg Shower_pe.jpg IMG_4175_pe.jpg IMG_4162_pe.jpg IMG_4164_pe.jpg Sitting.jpg Office.jpg IMG-123.jpg Hall.jpg Bedroom.jpg Bedroom (5).jpg Bedroom (4).jpg Bathroom (2).jpg Lounge (2).jpg IMG_4170_pe.jpg IMG_4177_pe.jpg IMG_4179_pe.jpg IMG_4180_pe.jpg Bathroom.jpg IMG_4161_pe.jpg Hot Tub Area.jpg Swimming Pool.jpg

Nearby Streets

NameAverage PriceAverage SqftDistance
Chiltern Place £ 647,50000.00 KM
St Martin's Close £ 000.00 KM
The Street £ 000.00 KM
Pope's Wood £ 987,50000.00 KM
Ash Tree Gardens £ 585,00000.00 KM

Nearby Transport

NameNLCTLCDistance
Bearsted5091BSD2.75 KM
Maidstone East5115MDE5.17 KM
Maidstone Barracks5237MDB5.95 KM
Maidstone West5222MDW6.08 KM
Hollingbourne5141HBN7.87 KM

Nearby Listings

AddressPriceTypeScoreDistance
Harple Lane, Detling £ 950,000BUY8 / 100.00 KM
Harple Lane, Detling, ME14 £ 500,000BUY6 / 100.07 KM
Harple Lane, Maidstone £ 750,000BUY7 / 100.09 KM
Harple Lane, Detling, Maidstone £ 495,000BUY8 / 100.15 KM
Pilgrims Way, Detling, ME14 £ 450,000BUY6 / 100.27 KM

Nearby Properties

AddressPriceDistance
Higham £ 295,0000.07 KM
Greystoke £ 320,0000.07 KM
Glenwood £ 375,0000.07 KM
Beech Grove £ 283,5000.07 KM
Hampton £ 300,0000.07 KM