EL
The Close, Wembley, Middlesex, HA9
By Ellis & Co
£ 375,000
Reviews
3 out of 5 stars
Ellis & Co says ..
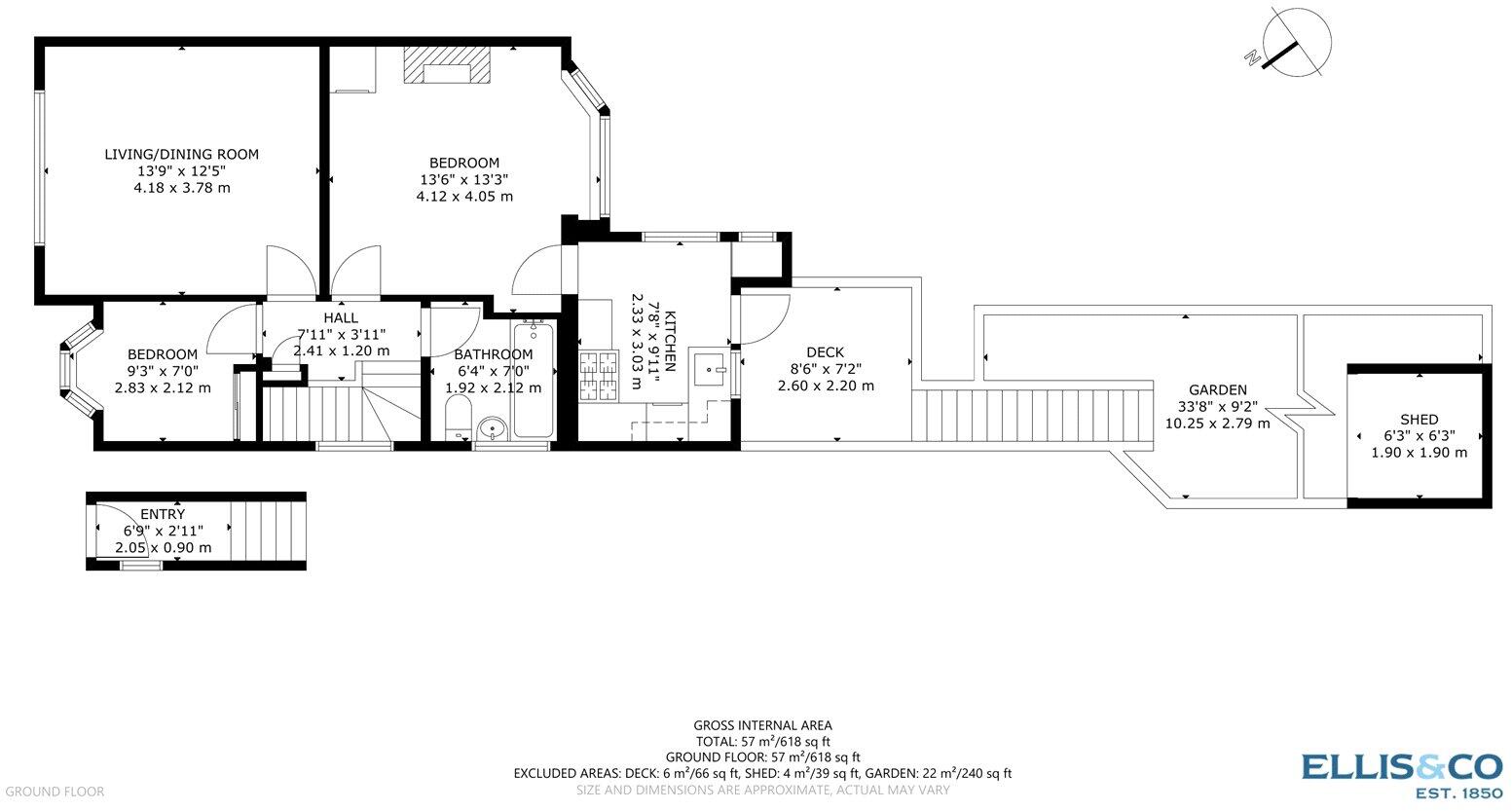
Stunning 2-bedroom first-floor maisonette with 618 sq ft of living space, boasting a modern interior and off-street parking. The property features a well-maintained garden, perfect for relaxing or entertaining outdoors. Located in a desirable neighbourhood, this home offers both comfort and conve...
Property Oracle says ..
Therefore, we give this property 6 / 10. *Disclaimer: This is our option and does constitute a recommendation or financial advice. Do your own research. *
- Price
- 8
- Condition
- 5
- Location
- 7
- Land
- 6
- Bedrooms
- 2
- Bathrooms
- 1
- Sqft (est)
- 613.54
The heatmap indicates the level of crime in the area. The color of the heatmap indicates the crime severity and recency.
Metrics Year-on-Year
- Average area value
- 626,246.00 £Increased by 2.14 %
- Est sale value
- 370,578.16 £Increased by 5.78 %
- Average area rental value
- 2,336.00 £/moIncreased by 26.00 %
- Est letting value
- 1,227.08 £/moIncreased by 100.00 %
- Est rental Yield
- 4.48 %Increased by 23.42 %
- Crime Rate
- 4.00 %Unchanged by 0.00 %
from 613,151.00 £
from 350,331.34 £
from 1,854.00 £/mo
from 613.54 £/mo
from 3.63 %
from 4.00 %
Agent Activity
Ellis & Co created the listing.
Nearby Schools
| Name | Type | Ofsted | Distance |
|---|---|---|---|
| St Margaret Clitherow Rc Primary School | Academy Converter | 0.35 KM | |
| St Nicholas School | Other Independent School | 0.62 KM | |
| Willows Children'S Centre | Children's Centre | 0.76 KM | |
| Chalkhill Primary School | Community School | Good | 0.76 KM |
| Wykeham Children'S Centre | Children's Centre | 0.99 KM |
Images
Nearby Streets
| Name | Average Price | Average Sqft | Distance |
|---|---|---|---|
| Ken Way | £ 365,000 | 0 | 0.00 KM |
| Neasden Lane North | £ 0 | 0 | 0.00 KM |
| Daisy Close | £ 0 | 0 | 0.00 KM |
| Chesham Street | £ 190,000 | 0 | 0.00 KM |
| Arran Court | £ 0 | 0 | 0.00 KM |
Nearby Transport
| Name | NLC | TLC | Distance |
|---|---|---|---|
| Stonebridge Park | 1454 | SBP | 2.46 KM |
| Wembley Stadium | 1509 | WCX | 2.58 KM |
| Harlesden | 1521 | HDN | 3.01 KM |
| Hendon | 1522 | HEN | 3.38 KM |
| Wembley Central | 1423 | WMB | 3.79 KM |
Nearby Listings
| Address | Price | Type | Score | Distance |
|---|---|---|---|---|
| The Close, Wembley, Middlesex, HA9 | £ 375,000 | BUY | 6 / 10 | 0.00 KM |
| Poplar Grove, Wembley Park, Wembley, HA9 | £ 365,000 | BUY | Unknown | 0.03 KM |
| Wembley Park | £ 325,000 | BUY | 7 / 10 | 0.05 KM |
| Poplar Grove, Wembley | £ 325,000 | BUY | 5 / 10 | 0.06 KM |
| Poplar Grove, London, HA9 | £ 325,000 | BUY | Unknown | 0.06 KM |
Nearby Properties
| Address | Price | Distance |
|---|---|---|
| 37 Poplar Grove | £ 210,000 | 0.04 KM |
| 50 Poplar Grove | £ 120,000 | 0.04 KM |
| 36 Poplar Grove | £ 174,000 | 0.04 KM |
| 41 Poplar Grove | £ 153,000 | 0.04 KM |
| 33 Poplar Grove | £ 230,000 | 0.04 KM |