Fallowfield, Yateley, Hampshire, GU46
By Mackenzie Smith
£ 335,000
Reviews
3 out of 5 stars
Mackenzie Smith says ..
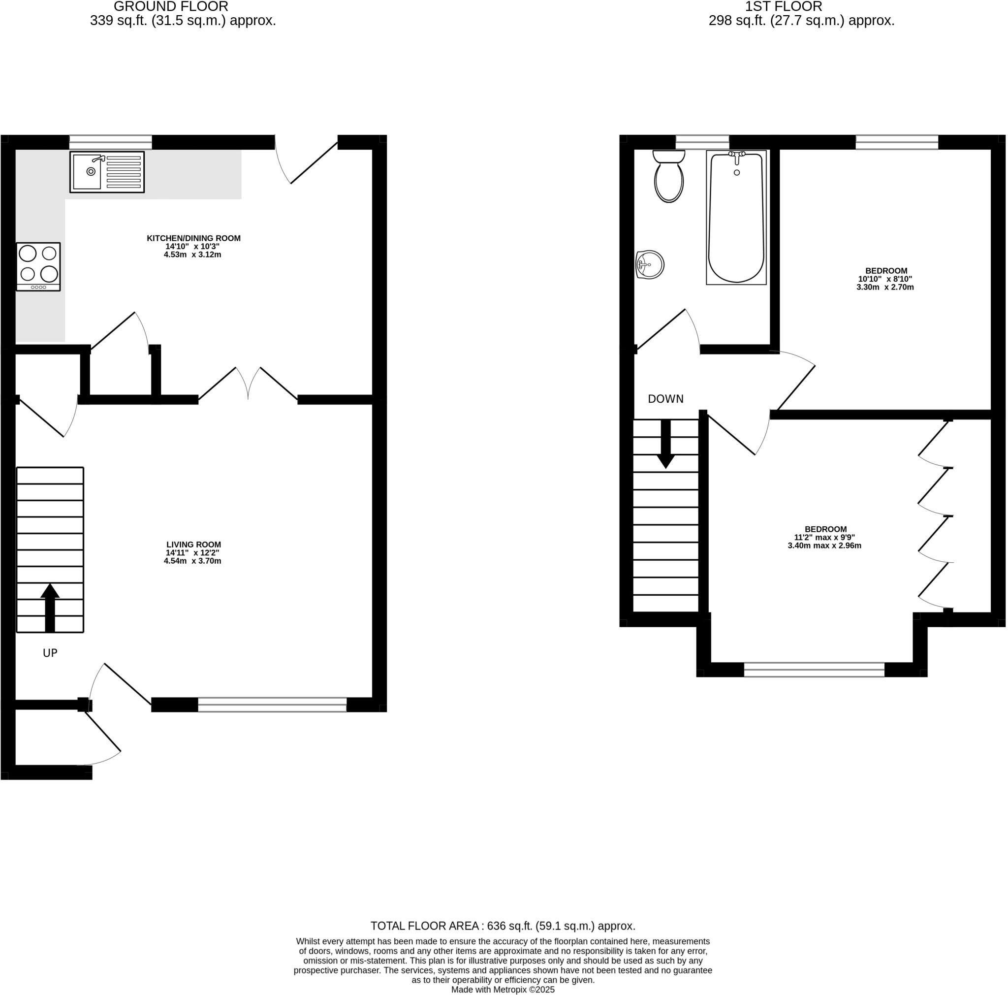
With a cul de sac setting in this popular location, this two double bedroom house features a lounge with double doors to a kitchen/diner and a larger than average garden, as well as allocated parking.
Property Oracle says ..
The property is a terraced house located in Fallowfield, Yateley, Hampshire. It has two bedrooms and one bathroom, with a total area of 636 sqft. The property benefits from a small, enclosed rear garden with a shed. The property appears to be in good condition. The interior is clean and well-maintained, with modern fixtures and fittings in the kitchen and bathroom. There is no visible evidence of significant repairs or renovations needed. The location is good, with nearby schools (Westfields Infant School, Westfields Junior School, and Yateley School) all within a reasonable distance. Several train stations are also within a reasonable commute, providing access to other towns and cities. Considering the average price per sqft in the area is £239 and this property is listed at £335,000, the price seems slightly high. However, the lack of sqft data for comparable properties makes a definitive statement on value difficult. The list price is above the average price for the area (£220,958), which may reflect the property’s condition and the desirable location. Further analysis of comparable properties with sqft data would be beneficial to determine a more accurate assessment of value.
Therefore, we give this property 6 / 10. *Disclaimer: This is our option and does constitute a recommendation or financial advice. Do your own research. *
- Price
- 6
- Condition
- 8
- Location
- 7
- Land
- 4
- Bedrooms
- 2
- Bathrooms
- 1
- Sqft (est)
- 636.00
The heatmap indicates the level of crime in the area. The color of the heatmap indicates the crime severity and recency.
Metrics Year-on-Year
- Average area value
- 239,000.00 £Increased by 24.44 %
- Est sale value
- 171,084.00 £Increased by 15.95 %
- Average area rental value
- 850.00 £/moDecreased by 8.60 %
- Est letting value
- 0.00 £/moDecreased by 100.00 %
- Est rental Yield
- 4.27 %Decreased by 26.51 %
- Crime Rate
- 5.00 %Unchanged by 0.00 %
Agent Activity
Mackenzie Smith created the listing.
Nearby Schools
| Name | Type | Ofsted | Distance |
|---|---|---|---|
| Westfields Infant School | Community School | Good | 0.78 KM |
| Westfields Junior School | Community School | Outstanding | 0.85 KM |
| Woodlark And Water Lilies Children'S Centre | Children's Centre | 1.10 KM | |
| Yateley School | Community School | Good | 1.10 KM |
| Newlands Primary School | Community School | Good | 1.79 KM |
Images
Nearby Streets
| Name | Average Price | Average Sqft | Distance |
|---|---|---|---|
| Fox Lane | £ 1,750,000 | 0 | 0.00 KM |
| Gale Close | £ 0 | 0 | 0.00 KM |
| Harvest Close | £ 0 | 0 | 0.00 KM |
| Keats Way | £ 0 | 0 | 0.00 KM |
| Blackbushe Park | £ 0 | 0 | 0.00 KM |
Nearby Transport
| Name | NLC | TLC | Distance |
|---|---|---|---|
| Crowthorne | 5628 | CRN | 3.80 KM |
| Sandhurst (Berks) | 5646 | SND | 4.46 KM |
| Fleet | 5522 | FLE | 6.13 KM |
| Wokingham | 5696 | WKM | 7.50 KM |
| Blackwater | 5625 | BAW | 7.65 KM |
Nearby Listings
| Address | Price | Type | Score | Distance |
|---|---|---|---|---|
| Fallowfield, Yateley, Hampshire, GU46 | £ 335,000 | BUY | 6 / 10 | 0.00 KM |
| Fallowfield, Yateley, Hampshire, GU46 | £ 350,000 | BUY | 6 / 10 | 0.04 KM |
| Fallowfield, Yateley, Hampshire | £ 325,000 | BUY | Unknown | 0.07 KM |
| Fallowfield, Yateley, Hampshire, GU46 | £ 320,000 | BUY | 6 / 10 | 0.07 KM |
| Celandine Court, Yateley, Hampshire, GU46 | £ 335,000 | BUY | 6 / 10 | 0.10 KM |
Nearby Properties
| Address | Price | Distance |
|---|---|---|
| 48 Fallowfield | £ 188,500 | 0.07 KM |
| 72 Fallowfield | £ 160,000 | 0.07 KM |
| 20 Fallowfield | £ 230,000 | 0.07 KM |
| 100 Fallowfield | £ 229,950 | 0.07 KM |
| 42 Fallowfield | £ 180,000 | 0.07 KM |