New Church Road, Wellington, Telford, TF1 1JX
By Barbers
£ 177,500
Reviews
3 out of 5 stars
Barbers says ..
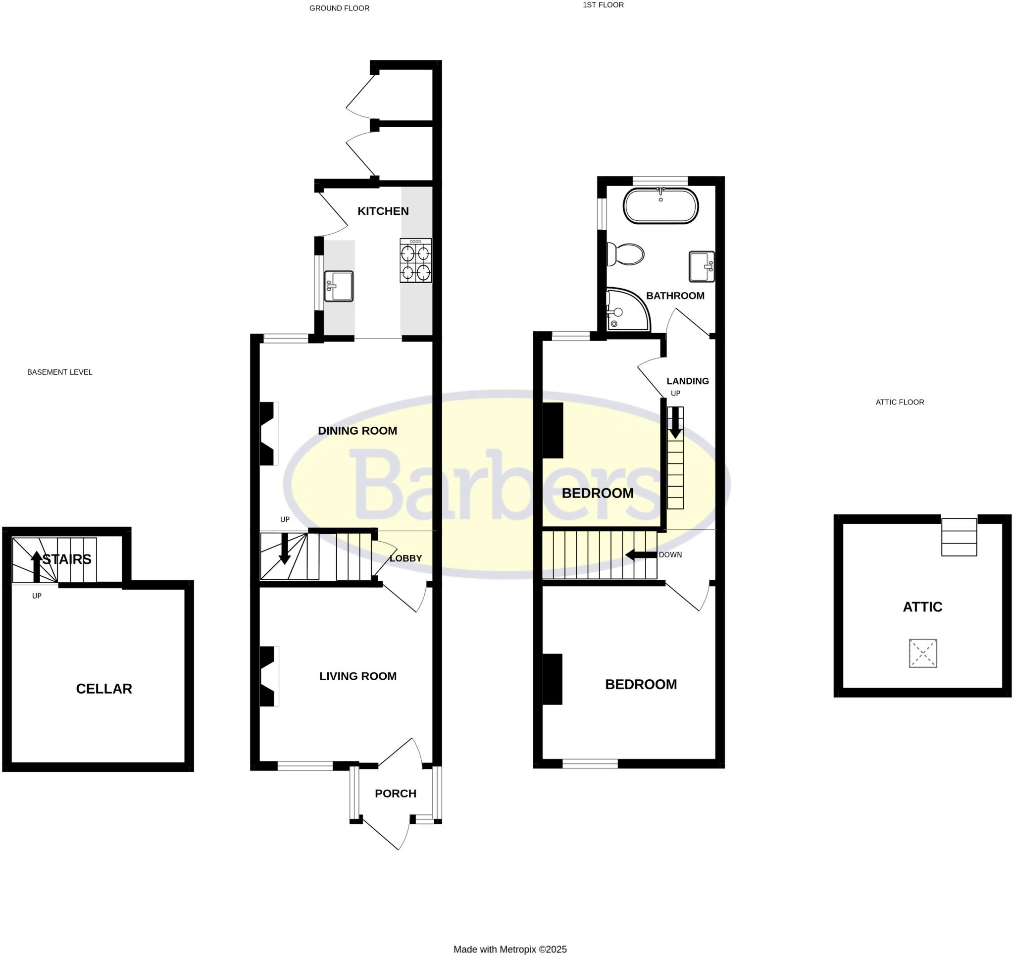
A charming character Cottage style Terraced House with Two Bedrooms, Two Reception Rooms and a traditional cottage style garden. Conveniently located on the edge of the historic Town Of Wellington which offers a range of shops, amenities and education facilities.
Property Oracle says ..
This is a terraced property located on New Church Road, Haygate, Wellington, Telford. It features two bedrooms and one bathroom. The property benefits from its proximity to local schools and transportation links, with Wellington train station nearby. While the property appears to be in generally good condition, some areas could benefit from modernization. It includes a garden with a shed, offering outdoor space and storage. The asking price of £177,500 seems reasonable given the location and square footage, presenting a good opportunity for potential buyers. The property retains some traditional features.
Therefore, we give this property 7 / 10. *Disclaimer: This is our option and does constitute a recommendation or financial advice. Do your own research. *
- Price
- 8
- Condition
- 7
- Location
- 7
- Land
- 6
- Bedrooms
- 2
- Bathrooms
- 1
- Sqft (est)
- 1,616.00
The heatmap indicates the level of crime in the area. The color of the heatmap indicates the crime severity and recency.
Metrics Year-on-Year
- Average area value
- 382,875.00 £Decreased by 13.12 %
- Est sale value
- 837,088.00 £Decreased by 4.43 %
- Average area rental value
- 1,824.00 £/moIncreased by 43.40 %
- Est letting value
- 3,232.00 £/moIncreased by 100.00 %
- Est rental Yield
- 5.72 %Increased by 65.32 %
- Crime Rate
- 12.00 %Unchanged by 0.00 %
Agent Activity
Barbers created the listing.
Nearby Schools
| Name | Type | Ofsted | Distance |
|---|---|---|---|
| Short Wood Primary School | Foundation School | Good | 0.43 KM |
| Shortwood School & Children Centre | Children's Centre | 0.43 KM | |
| Wrekin College | Other Independent School | 0.64 KM | |
| Ercall Wood Academy | Academy Converter | 0.73 KM | |
| Kickstart | Academy Alternative Provision Sponsor Led | Requires improvement | 0.76 KM |
Images
Nearby Streets
| Name | Average Price | Average Sqft | Distance |
|---|---|---|---|
| High Street | £ 0 | 0 | 0.00 KM |
| New Church Road | £ 357,500 | 0 | 0.00 KM |
| Priory Close | £ 235,000 | 0 | 0.00 KM |
| Prince's Street | £ 172,500 | 0 | 0.00 KM |
| Regent Street | £ 120,000 | 0 | 0.00 KM |
Nearby Transport
| Name | NLC | TLC | Distance |
|---|---|---|---|
| Wellington (Shropshire) | 4690 | WLN | 0.77 KM |
| Oakengates | 4689 | OKN | 6.81 KM |
| Telford Central | 4691 | TFC | 8.02 KM |
Nearby Listings
| Address | Price | Type | Score | Distance |
|---|---|---|---|---|
| New Church Road, Wellington, Telford, TF1 1JX | £ 177,500 | BUY | 7 / 10 | 0.00 KM |
| New Church Road Wellington TF1 1JH | £ 265,000 | BUY | 7 / 10 | 0.05 KM |
| New Church Road, Wellington, Telford, Shropshire, TF1 | £ 250,000 | BUY | 7 / 10 | 0.06 KM |
| New Church Road, Wellington, Telford, Shropshire | £ 600,000 | BUY | 7 / 10 | 0.07 KM |
| Rose Grove, Wellington, Telford, Shropshire, TF1 1JB | £ 330,000 | BUY | 7 / 10 | 0.11 KM |
Nearby Properties
| Address | Price | Distance |
|---|---|---|
| 31 New Church Road | £ 137,500 | 0.01 KM |
| 23 New Church Road | £ 116,500 | 0.01 KM |
| 55 New Church Road | £ 355,000 | 0.01 KM |
| 19 New Church Road | £ 142,000 | 0.01 KM |
| 19a New Church Road | £ 243,500 | 0.01 KM |