Links Estate Agents says ..
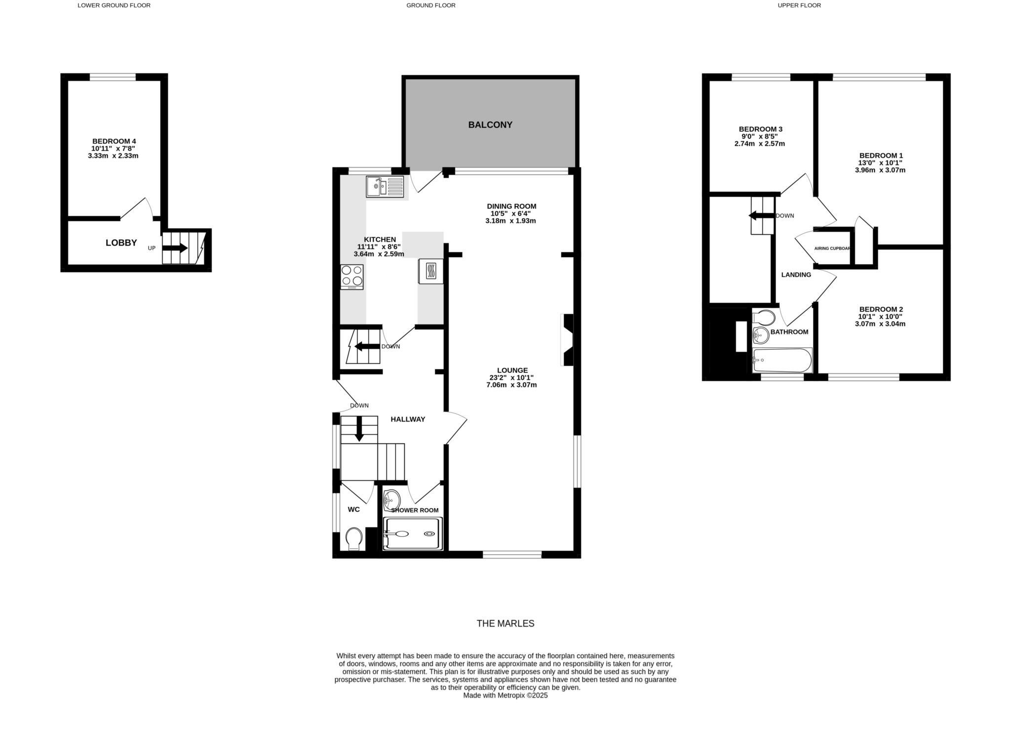
An immaculately presented extended 4 bedroom link detached family home with a wooded backdrop offering spacious accommodation arranged over three floors. Benefiting from having a delightful mature rear garden with a balcony this excellent property warrants and early viewing to avoid disappointment.
Property Oracle says ..
Therefore, we give this property 6 / 10. *Disclaimer: This is our option and does constitute a recommendation or financial advice. Do your own research. *
- Price
- 5
- Condition
- 7
- Location
- 7
- Land
- 8
- Bedrooms
- 3
- Bathrooms
- 1
- Sqft (est)
- 791.47
The heatmap indicates the level of crime in the area. The color of the heatmap indicates the crime severity and recency.
Metrics Year-on-Year
- Average area value
- 391,731.00 £Decreased by 6.30 %
- Est sale value
- 261,185.10 £Decreased by 27.79 %
- Average area rental value
- 1,432.00 £/moIncreased by 19.33 %
- Est letting value
- 791.47 £/moUnchanged by 0.00 %
- Est rental Yield
- 4.39 %Increased by 27.62 %
- Crime Rate
- 2.00 %Unchanged by 0.00 %
from 418,080.00 £
from 361,701.79 £
from 1,200.00 £/mo
from 791.47 £/mo
from 3.44 %
from 2.00 %
Agent Activity
Links Estate Agents created the listing.
Nearby Schools
| Name | Type | Ofsted | Distance |
|---|---|---|---|
| Brixington Primary Academy | Academy Sponsor Led | Requires improvement | 0.60 KM |
| Withycombe Raleigh Church Of England Primary School | Voluntary Controlled School | Good | 0.64 KM |
| Exmouth & District Children'S Centre | Children's Centre | 0.92 KM | |
| Marpool Primary School | Foundation School | Good | 0.94 KM |
| Exmouth Community College | Academy Converter | Requires improvement | 1.25 KM |
Images
Nearby Streets
| Name | Average Price | Average Sqft | Distance |
|---|---|---|---|
| Shackleton Close | £ 0 | 0 | 0.00 KM |
| Pound Lane | £ 0 | 0 | 0.00 KM |
| Broad Park Road | £ 350,000 | 0 | 0.00 KM |
| Brook Meadow | £ 0 | 0 | 0.00 KM |
| Chestnut Close | £ 385,000 | 0 | 0.00 KM |
Nearby Transport
| Name | NLC | TLC | Distance |
|---|---|---|---|
| Exmouth | 5756 | EXM | 2.37 KM |
| Lympstone Village | 5761 | LYM | 3.80 KM |
| Starcross | 3413 | SCS | 5.46 KM |
| Lympstone Commando | 5762 | LYC | 5.48 KM |
| Exton | 5760 | EXN | 6.16 KM |
Nearby Listings
| Address | Price | Type | Score | Distance |
|---|---|---|---|---|
| The Marles, Exmouth | £ 405,000 | BUY | 6 / 10 | 0.00 KM |
| Exmouth, Devon | £ 315,000 | BUY | 7 / 10 | 0.10 KM |
| Elizabeth Road, Exmouth, Devon | £ 400,000 | BUY | Unknown | 0.11 KM |
| Elizabeth Road, Exmouth, EX8 | £ 300,000 | BUY | 6 / 10 | 0.11 KM |
| The Marles, Exmouth, Devon, EX8 | £ 375,000 | BUY | 6 / 10 | 0.13 KM |
Nearby Properties
| Address | Price | Distance |
|---|---|---|
| 10 Grenville Road | £ 218,500 | 0.08 KM |
| 8 Grenville Road | £ 250,000 | 0.08 KM |
| 5 Grenville Road | £ 175,000 | 0.09 KM |
| 6 Grenville Road | £ 222,750 | 0.09 KM |
| 2 Grenville Road | £ 232,000 | 0.09 KM |