Pantera Property says ..
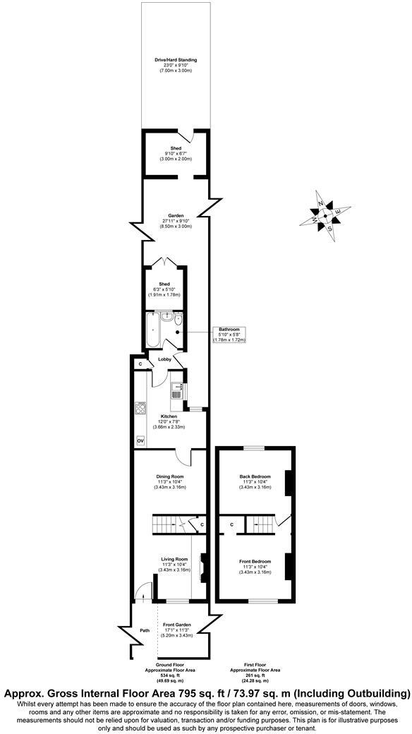
Pantera Property offer to the market, with no onward chain, a well presented two-bedroom, mid terraced house, benefitting from off street parking, a front patio garden and rear yard.
Property Oracle says ..
This two-bedroom terraced house in Swindon’s Eastcott area is listed at £175,000. The property requires modernisation, as evidenced by the images showing worn carpets, dated fixtures, and a bathroom in need of repair. The kitchen shows some updates but overall the property needs significant work. The small garden is a positive feature. The location is convenient with nearby schools and a train station. However, the price per square foot is slightly higher than the area average. Considering the necessary renovations, the asking price may be on the higher end compared to similar properties in the area. More information on the plot size would help to fully assess the value.
Therefore, we give this property 4 / 10. *Disclaimer: This is our option and does constitute a recommendation or financial advice. Do your own research. *
- Price
- 5
- Condition
- 4
- Location
- 7
- Land
- 3
- Bedrooms
- 2
- Bathrooms
- 1
- Sqft (est)
- 796.21
The heatmap indicates the level of crime in the area. The color of the heatmap indicates the crime severity and recency.
Metrics Year-on-Year
- Average area value
- 238,636.00 £Increased by 2.11 %
- Est sale value
- 247,621.31 £Increased by 16.04 %
- Average area rental value
- 982.00 £/moDecreased by 1.70 %
- Est letting value
- 796.21 £/moUnchanged by 0.00 %
- Est rental Yield
- 4.94 %Decreased by 3.70 %
- Crime Rate
- 7.00 %Unchanged by 0.00 %
Agent Activity
Pantera Property created the listing.
Nearby Schools
| Name | Type | Ofsted | Distance |
|---|---|---|---|
| Robert Le Kyng Primary School | Community School | Good | 0.38 KM |
| Utc Swindon | University Technical College | Requires improvement | 0.81 KM |
| The Commonweal School | Academy Converter | Good | 1.03 KM |
| East Wichel Primary School & Nursery | Community School | Good | 1.37 KM |
| King William Street Church Of England Primary School | Academy Converter | Good | 1.71 KM |
Images
Nearby Streets
| Name | Average Price | Average Sqft | Distance |
|---|---|---|---|
| Canal Cottages | £ 0 | 0 | 0.00 KM |
| Joseph Street | £ 0 | 0 | 0.00 KM |
| Marlborough Street | £ 0 | 0 | 0.00 KM |
| Turner Street | £ 0 | 0 | 0.00 KM |
| Bacon Close | £ 0 | 0 | 0.00 KM |
Nearby Transport
| Name | NLC | TLC | Distance |
|---|---|---|---|
| Swindon (Wilts) | 3333 | SWI | 1.63 KM |
Nearby Listings
| Address | Price | Type | Score | Distance |
|---|---|---|---|---|
| Kingshill Road, Swindon | £ 175,000 | BUY | 4 / 10 | 0.00 KM |
| Kingshill Road, Swindon | £ 250,000 | BUY | 6 / 10 | 0.03 KM |
| Kingshill Road, Swindon, Wiltshire | £ 250,000 | BUY | 6 / 10 | 0.03 KM |
| Kingshill Road, Old Town, Swindon, Wiltshire, SN1 | £ 300,000 | BUY | 7 / 10 | 0.04 KM |
| Kingshill Road, Old Town, Swindon, SN1 | £ 270,000 | BUY | 7 / 10 | 0.04 KM |
Nearby Properties
| Address | Price | Distance |
|---|---|---|
| 178 Kingshill Road | £ 163,650 | 0.04 KM |
| 175 Kingshill Road | £ 165,000 | 0.04 KM |
| 187 Kingshill Road | £ 230,000 | 0.04 KM |
| 171 Kingshill Road | £ 164,950 | 0.04 KM |
| 177 Kingshill Road | £ 181,000 | 0.04 KM |