AS
Meadway, Harpenden, Hertfordshire, AL5
By Ashtons
£ 875,000
Reviews
3 out of 5 stars
Ashtons says ..
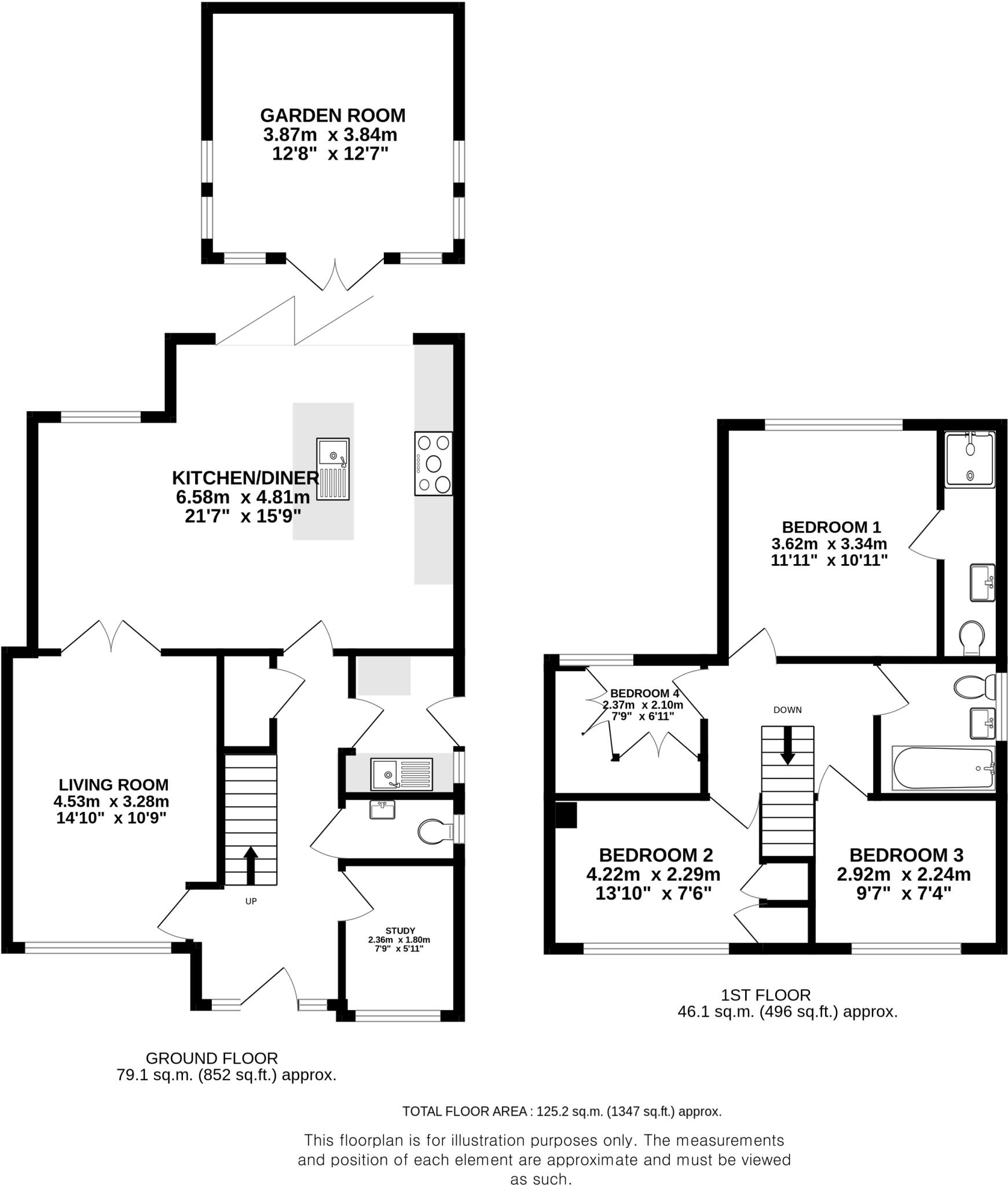
This beautifully presented four-bedroom semi-detached home offers generous and modern family living. It features a stylish, contemporary layout and a stunning 100ft south-facing garden, set in an extremely popular road in South Harpenden.
Property Oracle says ..
Therefore, we give this property 7 / 10. *Disclaimer: This is our option and does constitute a recommendation or financial advice. Do your own research. *
- Price
- 6
- Condition
- 8
- Location
- 8
- Land
- 8
- Bedrooms
- 4
- Bathrooms
- 2
- Sqft (est)
- 1,064.12
The heatmap indicates the level of crime in the area. The color of the heatmap indicates the crime severity and recency.
Metrics Year-on-Year
- Average area value
- 1,332,494.00 £Increased by 19.68 %
- Est sale value
- 1,485,511.52 £Increased by 164.90 %
- Average area rental value
- 1,800.00 £/moDecreased by 54.11 %
- Est letting value
- 1,064.12 £/moUnchanged by 0.00 %
- Est rental Yield
- 1.62 %Decreased by 61.70 %
- Crime Rate
- 8.00 %Unchanged by 0.00 %
from 1,113,335.00 £
from 560,791.24 £
from 3,922.00 £/mo
from 1,064.12 £/mo
from 4.23 %
from 8.00 %
Agent Activity
Ashtons created the listing.
Nearby Schools
| Name | Type | Ofsted | Distance |
|---|---|---|---|
| Aldwickbury School | Other Independent School | 0.48 KM | |
| The Grove Infant And Nursery School | Community School | Outstanding | 0.65 KM |
| The Grove Junior School | Community School | Good | 0.76 KM |
| Sa3 Southdown Family Centre | Children's Centre | 0.88 KM | |
| High Beeches Primary School | Community School | Outstanding | 0.95 KM |
Images
Nearby Streets
| Name | Average Price | Average Sqft | Distance |
|---|---|---|---|
| Alzey Gardens | £ 0 | 0 | 0.00 KM |
| Fairfield Close | £ 625,000 | 0 | 0.00 KM |
| Cross Lane | £ 0 | 0 | 0.00 KM |
| Courtfields | £ 0 | 0 | 0.00 KM |
| Marquis Close | £ 0 | 0 | 0.00 KM |
Nearby Transport
| Name | NLC | TLC | Distance |
|---|---|---|---|
| Harpenden | 1543 | HPD | 2.42 KM |
| St Albans City | 1548 | SAC | 6.32 KM |
| St Albans Abbey | 1562 | SAA | 7.06 KM |
| Park Street | 1561 | PKT | 9.15 KM |
Nearby Listings
| Address | Price | Type | Score | Distance |
|---|---|---|---|---|
| Meadway, Harpenden, Hertfordshire, AL5 | £ 875,000 | BUY | 7 / 10 | 0.00 KM |
| Sibley Avenue, Harpenden, Hertfordshire, AL5 | £ 1,150,000 | BUY | 7 / 10 | 0.08 KM |
| Grove Avenue, Harpenden | £ 895,000 | BUY | 7 / 10 | 0.13 KM |
| Grove Avenue, Harpenden, Hertfordshire, AL5 | £ 825,000 | BUY | Unknown | 0.15 KM |
| Meadway, Harpenden | £ 715,000 | BUY | 7 / 10 | 0.20 KM |
Nearby Properties
| Address | Price | Distance |
|---|---|---|
| 12 Leycroft Way | £ 755,000 | 0.10 KM |
| 16 Leycroft Way | £ 445,000 | 0.10 KM |
| 10 Leycroft Way | £ 827,500 | 0.10 KM |
| 6 Leycroft Way | £ 665,000 | 0.10 KM |
| 18 Leycroft Way | £ 782,500 | 0.10 KM |