Hunters says ..
Welcome to this semi-detached house located on Harpswood Lane in the desirable area of Saltwood, This delightful property boasts two spacious reception rooms, providing ample space for both relaxation and entertaining. With four well-proportioned bedrooms, it is perfect for families or those seek...
Property Oracle says ..
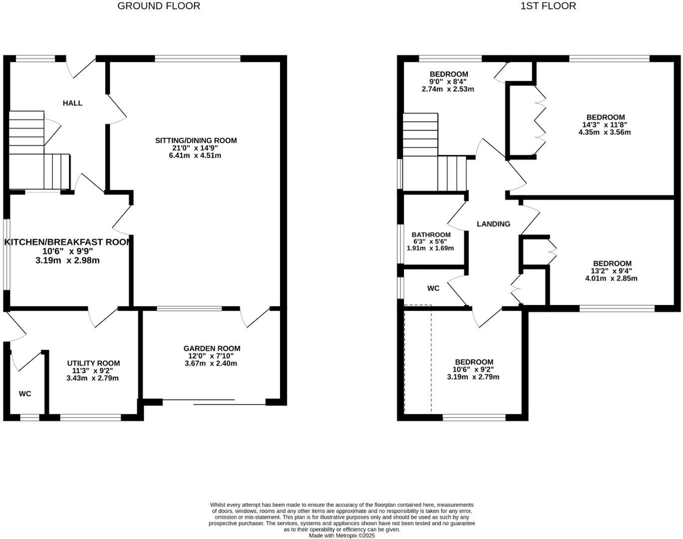
This semi-detached property is located on Harpswood Lane in Hythe. The property has four bedrooms and one bathroom, with a square footage of 989.59 sqft. The property has a good sized garden and a detached garage. The property is in reasonable condition, but would benefit from modernisation. The property is located close to local schooling and amenities. The nearest train station is Sandling, which is 1.64 KM away.
Therefore, we give this property 6 / 10. *Disclaimer: This is our option and does constitute a recommendation or financial advice. Do your own research. *
- Price
- 7
- Condition
- 5
- Location
- 7
- Land
- 7
- Bedrooms
- 4
- Bathrooms
- 1
- Sqft (est)
- 989.59
The heatmap indicates the level of crime in the area. The color of the heatmap indicates the crime severity and recency.
Metrics Year-on-Year
- Average area value
- 695,750.00 £Increased by 35.80 %
- Est sale value
- 576,930.97 £Increased by 15.22 %
- Average area rental value
- 1,400.00 £/moDecreased by 11.56 %
- Est letting value
- 989.59 £/moUnchanged by 0.00 %
- Est rental Yield
- 2.41 %Decreased by 35.04 %
- Crime Rate
- 7.00 %Unchanged by 0.00 %
Agent Activity
Hunters created the listing.
Nearby Schools
| Name | Type | Ofsted | Distance |
|---|---|---|---|
| St Augustine'S Catholic Primary School | Voluntary Aided School | Good | 0.35 KM |
| Saltwood Cofe Primary School | Voluntary Aided School | Outstanding | 0.55 KM |
| Brockhill Park Performing Arts College | Academy Converter | Good | 1.08 KM |
| Hythe Bay Cofe Primary School | Voluntary Controlled School | Good | 1.18 KM |
| Hythe Bay Children'S Centre | Children's Centre | 1.20 KM |
Images
Nearby Streets
| Name | Average Price | Average Sqft | Distance |
|---|---|---|---|
| Lea Close | £ 400,000 | 0 | 0.00 KM |
| Victoria Place | £ 0 | 0 | 0.00 KM |
| London Road | £ 480,000 | 0 | 0.00 KM |
| Castle Crescent | £ 0 | 0 | 0.00 KM |
| Quarry Road | £ 0 | 0 | 0.00 KM |
Nearby Transport
| Name | NLC | TLC | Distance |
|---|---|---|---|
| Sandling | 5025 | SDG | 1.64 KM |
| Westenhanger | 5030 | WHA | 4.47 KM |
| Folkestone West | 5027 | FKW | 8.75 KM |
Nearby Listings
| Address | Price | Type | Score | Distance |
|---|---|---|---|---|
| Harpswood Lane, Hythe | £ 475,000 | BUY | 6 / 10 | 0.00 KM |
| Harpswood Lane, Hythe, CT21 | £ 300,000 | BUY | Unknown | 0.03 KM |
| Harpswood Lane, Hythe, CT21 | £ 600,000 | BUY | 6 / 10 | 0.10 KM |
| Hythe/Saltwood | £ 535,000 | BUY | 7 / 10 | 0.10 KM |
| Bartholomew Close, Hythe, CT21 | £ 825,000 | BUY | 8 / 10 | 0.14 KM |
Nearby Properties
| Address | Price | Distance |
|---|---|---|
| 56 Harpswood Lane | £ 360,000 | 0.06 KM |
| 71 Harpswood Lane | £ 69,250 | 0.06 KM |
| 61 Harpswood Lane | £ 62,750 | 0.06 KM |
| 64 Harpswood Lane | £ 30,000 | 0.06 KM |
| 19 Harpswood Lane | £ 323,000 | 0.06 KM |